Prodej bytu 2+1, Rybitví, Činžovních domů, 58 m2

Činžovních domů, Rybitví

3 790 000 Kč /za nemovitost HYPOTÉKA od 16 939 Kč /za měsíc

(včetně poplatků, včetně provize, včetně právního servisu)

Prémioví partneři v Rybitví

Informace k bytu

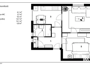
Nabízím vám ke koupi byt o celkové výměře 57,48 m², umístěný v prvním nadzemním podlaží, vyvýšeném nad úroveň terénu. Je v osobním vlastnictví a v původním stavu, což z něj dělá ideální projekt pro rekonstrukci. Dům samotný prošel revitalizací – má novou zateplenou fasádu, což zlepšuje tepelný komfort i celkový vzhled budovy. Okna v tomto bytě zůstala zachovalá původní dřevěná.

Duši bytu tvoří dva pokoje, které jsou samostatné, ale zároveň vzájemně průchozí, což ponechává budoucímu řešení příjemnou variabilitu. První pokoj je orientovaný na východ a přímo navazuje na kuchyň. Je tak ideálním místem pro obývací prostor – místo, kde se potká denní světlo, rodina i návštěvy. Druhý pokoj směřuje na jih, je zalitý světlem a teplem po většinu dne. Je menší a situovaný dále od kuchyně, vybízí tak k vytvoření tichého útočiště – ložnice s postelí u okna, šatní skříní a čtecím koutkem. Kuchyně je samostatná a orientovaná na sever. Je bez kuchyňské linky, což znamená čistý list papíru – můžete si ji navrhnout přesně podle svého vkusu. Koupelna je společná s toaletou a čeká na kompletní proměnu. Hned vedle koupelny se nachází malá komora, která může sloužit jako praktická spíž, technická místnost nebo místo na pračku a úklidové potřeby. Vše propojuje vstupní prostorná předsíň. Díky své velikosti to není jenom průchozí prostor, ale místo, kde si můžete vytvořit praktické úložné zázemí – velkou šatní skříň s botníkem, věšáky apod. Tento prostor dává bytu příjemný pocit vzdušnosti již od prvního kroku dovnitř.

V pokojích se nacházejí původní dřevěné parkety, které dodávají interiéru charakter a mohou být krásným základem pro citlivou rekonstrukci. Chodbu s kuchyní pak pokrývá lino a v koupelně je dlažba. Vytápění bylo doposud řešeno plynovými vafkami v kuchyni, ohřev vody zajišťovala plynová karma. To vše lze při rekonstrukci modernizovat a přizpůsobit současným standardům bydlení.

K bytu náleží hned dva sklepy v suterénu domu, což je nadstandardní výhoda. Poskytují dostatek úložného prostoru na kola, sezónní věci, sportovní vybavení nebo třeba dílnu.

Náklady na bydlení zahrnují poplatek do fondu oprav 1 954 Kč, zálohy na vodu, společnou elektřinu a poplatky 424 Kč, a dále elektřinu a plyn dle spotřeby.

Tento byt není dokonalý v současném stavu – je dokonalý ve svém potenciálu. Může se stát útulným prvním bydlením pro pár či malou rodinu, anebo chytrou investicí k pronájmu díky blízkosti Pardubic. Rybitví je malá a klidná obec na okraji Pardubic, která si zachovává příjemnou atmosféru, ale zároveň nabízí překvapivě široké zázemí pro každodenní život. V místě najdete mateřskou i základní školu, několik středních škol, obecní knihovnu, lékařské služby včetně praktického a zubního lékaře, poštu, kadeřnictví, manikúru, pedikúru a dvě prodejny potravin. Nechybí ani restaurace, dětské hřiště, fotbalový areál, multifunkční hřiště, beach volejbal, tenisové kurty či tělocvična. Dopravní spojení je velmi pohodlné — do Rybitví jezdí několik linek MHD z Pardubic i pravidelné autobusové spoje, a autem jste v centru města během pár minut. Díky tomu zde získáte klidné bydlení s kompletní občanskou vybaveností na místě a město doslova na dosah ruky.

Pokud hledáte byt, který vám dá svobodu tvořit, kde můžete vtisknout svůj styl a kde budete mít město na dosah, ale domov v klidném prostředí, pak vás tato nabídka osloví. Přijďte se podívat osobně – možná právě tady začíná váš nový příběh.

Parametry bytu

Cena
3 790 000 Kč /za nemovitost Spočítat hypotéku
Poznámka k ceně
včetně poplatků, včetně provize, včetně právního servisu
Aktualizováno
12. 2. 2026
Adresa
Činžovních domů, Rybitví
ID
00253
Stavba
Cihlová
Stav objektu
Velmi dobrý
Patro
1. z 3
Vybaveno
Ne
Lokalita objektu
Klidná část obce
Vlastnictví
Osobní
Užitná plocha
58 m2
Třída energetické náročnosti
E - Nehospodárná
Ukazatel energetické náročnosti
136 kWh/m2 za rok
Elektřina
230V
Plyn
Plynovod
Odpad
Veřejná kanalizace
Komunikace
Asfaltová
Doprava
Silnice, MHD, Autobus
Voda
Vodovod
Topné těleso
WAW
Zdroj topení
WAW
Zdroj teplé vody
Plynová karma
Sklep
Výtah
Parkování

Kontaktovat makléře

Realitní kancelář

FIRST HOLD INVEST s.r.o.

Za Pasáží 1429, Pardubice, Zelené Předměstí

Chystáte se prodat nemovitost?
Pomůžeme Vám!

Máte zájem o tento byt?

Tímto, v souladu s nařízením Evropského parlamentu a Rady (EU) 2016/679, v platném znění, prohlašuji, že mi je alespoň 16 let a uděluji tak svůj souhlas se zpracováním zadaných údajů (jméno, telefon, e-mail, ip adresa) společnosti B3 Technology, s.r.o., IČ: 07330600, se sídlem Novostavby 126/23, 435 11 Lom (správce dat), za účelem předání dotazu z tohoto formuláře Vámi vybranému inzerentovi a zpětného kontaktování mé osoby. Osobní údaje bude správce zpracovávat manuálně i automaticky přímo prostřednictvím svých zaměstnanců. Informace předané tímto formulářem budou uloženy v databázi správce maximálně po dobu 10 let. Odvolání souhlasu s uložením a zpracováním poskytnutých dat lze e-mailem na info@videobydleni.cz. V případě podezření na neoprávněné použití Vámi poskytnutých údajů máte právo předat podnět k šetření Úřadu pro ochranu osobních údajů. Více informací
Chystáte se prodat nemovitost?
Pomůžeme Vám!

Inzerát si prohlédlo 0 lidí

Prodejce

Kryštof Kalhous

Kryštof Kalhous

Hlídací pes

Chcete dostávat emailem podobné nabídky prodeje bytů 2+1 v Rybitví?

Podobné nemovitosti


Nevyhovuje Vám typ bytu? Podívejte se na jiné kategorie bytů.


Vybrané články z našeho blogu