Prodej rodinného domu, Praha - Újezd nad Lesy, Netušilská, 270 m2 (ID: 4179875)

Netušilská, Praha, Újezd nad Lesy

19 990 000 Kč /za nemovitost HYPOTÉKA od 89 343 Kč /za měsíc
Prémioví partneři v Praze

Stěhovací služby

Výkup a prodej starého nábytku

Informace k domu

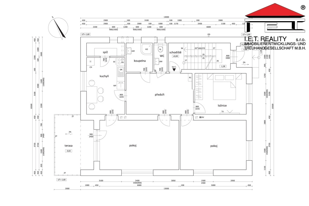
Nabízíme exkluzivně k prodeji dvougenerační rodinný dům s dalšími obytnými či pracovními prostory v polosuterénu. Dům je prostorný a velmi dobře řešený. Nachází se v klidné části na okraji Prahy, konkrétně v Újezdě nad Lesy. Objekt prošel kompletní rekonstrukcí, zahrnující mimo jiné novou zateplenou fasádu, výměnu oken a obnovu elektroinstalace, vodovodních a topných rozvodů včetně radiátorů. Teplo a ohřev vody zajišťuje moderní plynový kotel. Dům má tři podlaží, ve kterých se nacházejí dvě samostatné bytové jednotky 3+1, každá o přibližné ploše 90 m2. Obě jednotky disponují prostornou vstupní halou a buď terasou, nebo balkonem.

Polosuterén, odpovídající výměrou vyšším podlažím, nabízí široké možnosti využití – pro podnikatelské účely, kancelář, skladování, domácí fitness, hudební zkušebnu nebo jako obytný prostor. Je zde koupelna s WC a sprchou. Nechybí ani příprava na kuchyňskou linku. Většina interiérů je ve stavu shell & core, což dává novému majiteli svobodu individuálně si zařídit podlahy, kuchyňskou linku či dveře dle vlastních představ.

Nemovitost je připojena na obecní vodovod, plynovod a kanalizaci. Navíc je vybavena vlastní studnou. Střechu s minimálním sklonem lze snadno využít pro instalaci solárních panelů. Parkování je k dispozici přímo na pozemku. Zahrada poskytuje dostatek prostoru pro zbudování bazénu. Dům lze využívat jako dvougenerační nebo ho rozdělit a prodat jednotlivé bytové jednotky samostatně – každá jednotka má vlastní vstup ze společného schodiště.

V lokalitě Újezd nad Lesy najdete základní školu, několik mateřských školek a množství dětských hřišť. Také fotbalové hřiště. V místě se nachází Penny Market, Albert, Lidl a řada dalších obchodů, restaurací, kaváren, lékárna a knihovna. Tato oblast je vyhledávaná díky příjemnému a tichému prostředí, množství zeleně a blízkosti Klánovického lesa (200 m od domu). Obyvatelé oceňují velmi dobrou dopravní dostupnost do centra Prahy, což činí Újezd nad Lesy ideálním místem pro pohodlné a kvalitní rodinné bydlení. Do r. 2027 má být dokončen obchvat kolem Běchovic, Újezda a Úval směrem od okruhu na Kolín.

Z důvodu nepředložení průkazu energetické náročnosti budovy uvádíme energetickou třídu G. Za zprostředkování prodeje neplatíte provizi.

Parametry domu

Cena
19 990 000 Kč /za nemovitost Spočítat hypotéku
Aktualizováno
20. 2. 2026
Adresa
Netušilská, Praha, Újezd nad Lesy
ID
IETP838534
Stavba
Cihlová
Stav objektu
Po rekonstrukci
Vybaveno
Ne
Typ objektu
Patrový
Druh objektu
Samostatný
Užitná plocha
270 m2
Zastavěná plocha
151 m2
Plocha pozemku
645 m2
Plocha zahrady
494 m2
Třída energetické náročnosti
G - Mimořádně nehospodárná
Balkon
Sklep
Terasa
Výtah
Parkování

Kontaktovat makléře

Máte zájem o tento dům?

Tímto, v souladu s nařízením Evropského parlamentu a Rady (EU) 2016/679, v platném znění, prohlašuji, že mi je alespoň 16 let a uděluji tak svůj souhlas se zpracováním zadaných údajů (jméno, telefon, e-mail, ip adresa) společnosti B3 Technology, s.r.o., IČ: 07330600, se sídlem Novostavby 126/23, 435 11 Lom (správce dat), za účelem předání dotazu z tohoto formuláře Vámi vybranému inzerentovi a zpětného kontaktování mé osoby. Osobní údaje bude správce zpracovávat manuálně i automaticky přímo prostřednictvím svých zaměstnanců. Informace předané tímto formulářem budou uloženy v databázi správce maximálně po dobu 10 let. Odvolání souhlasu s uložením a zpracováním poskytnutých dat lze e-mailem na info@videobydleni.cz. V případě podezření na neoprávněné použití Vámi poskytnutých údajů máte právo předat podnět k šetření Úřadu pro ochranu osobních údajů. Více informací
Chystáte se prodat nemovitost?
Pomůžeme Vám!

Inzerát si prohlédlo 28 lidí

Prodejce

Lukáš Pecháček

Lukáš Pecháček

Hlídací pes

Chcete dostávat emailem podobné nabídky prodeje rodinných domů v Praze?

Podobné nemovitosti


Nevyhovuje Vám typ domu? Podívejte se na jiné kategorie domů.


Vybrané články z našeho blogu