Pronájem vily, Praha - Nebušice, Nebušická, 255 m2 (ID: 4180515)

Nebušická, Praha, Nebušice

110 000 Kč /za měsíc Získejte výhodnou HYPOTÉKU
Prémioví partneři v Praze

Stěhovací služby

Výkup a prodej starého nábytku

Informace k domu

ID zakázky: V3555-3

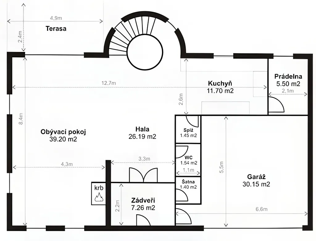
Stylová samostatně stojící vila se nachází v prestižním uzavřeném areálu v pražských Nebušicích. Nabízí obytnou plochu 243 m², dvojgaráž a terasu o rozloze 12 m². K vile náleží soukromá zahrada, jejíž součástí je vyhřívaný bazén o rozměrech 5 x 3,1 x 1,5 m.

V prestižním rezidenčním areálu Villas Šárka o rozloze 5 500 m² je umístěno celkem sedm moderních rodinných vil, z nichž každá nabízí obytnou plochu 243 m², dvougaráž a terasu o velikosti 12 m². Součástí každé vily je i soukromá zahrada s vyhřívaným bazénem, ideální pro odpočinek i aktivní relaxaci.

Vily se čtyřmi ložnicemi jsou navrženy s důrazem na pohodlí a moderní standardy bydlení – nechybí podlahové vytápění ani klimatizace. Vysoký standard bydlení doplňují tři elegantní koupelny a tři toalety, z nichž dvě jsou samostatné.

Plně zařízená kuchyně je vybavena sklokeramickou varnou deskou, horkovzdušnou troubou, myčkou, lednicí s mrazákem a digestoří. Otevřený koncept propojuje kuchyň s prostorným obývacím pokojem, jehož dominantou je krb a přímý vstup na zahradu.

Rezidenční projekt „Villas Šárka“ se nachází v bezprostřední blízkosti prestižní mezinárodní školy The International School of Prague. V okolí je k dispozici kompletní občanská vybavenost – základní a mateřská škola, zdravotní středisko, obchody, sportovní hala, tenisové kurty a golfový klub. Milovníky přírody potěší blízkost chráněné krajinné oblasti Divoká Šárka. Kompletní městskou infrastrukturu nabízí nedaleké centrum Dejvic.

Nájemné je ve výši 110.000,- Kč
K nastěhovaní ihned.

Jelikož není známa energetická třída PENB, v souladu s novelou zákona 406/2000 uvádíme energetickou třídu G.

Pro více informací a sjednání prohlídky kontaktujte prosím realitního makléře.

Parametry domu

Cena
110 000 Kč /za měsíc
Aktualizováno
13. 2. 2026
Adresa
Nebušická, Praha, Nebušice
ID
V3555-3
Stavba
Cihlová
Stav objektu
Velmi dobrý
Typ objektu
Patrový
Druh objektu
Samostatný
Užitná plocha
255 m2
Plocha pozemku
780 m2
Třída energetické náročnosti
G - Mimořádně nehospodárná
Garáž
Terasa
Bazén

Kontaktovat makléře

Realitní kancelář

Logo Makers Reality

Makers Reality

Vinohradská 2133/138, Praha

Chystáte se prodat nemovitost?
Pomůžeme Vám!

Máte zájem o tento dům?

Tímto, v souladu s nařízením Evropského parlamentu a Rady (EU) 2016/679, v platném znění, prohlašuji, že mi je alespoň 16 let a uděluji tak svůj souhlas se zpracováním zadaných údajů (jméno, telefon, e-mail, ip adresa) společnosti B3 Technology, s.r.o., IČ: 07330600, se sídlem Novostavby 126/23, 435 11 Lom (správce dat), za účelem předání dotazu z tohoto formuláře Vámi vybranému inzerentovi a zpětného kontaktování mé osoby. Osobní údaje bude správce zpracovávat manuálně i automaticky přímo prostřednictvím svých zaměstnanců. Informace předané tímto formulářem budou uloženy v databázi správce maximálně po dobu 10 let. Odvolání souhlasu s uložením a zpracováním poskytnutých dat lze e-mailem na info@videobydleni.cz. V případě podezření na neoprávněné použití Vámi poskytnutých údajů máte právo předat podnět k šetření Úřadu pro ochranu osobních údajů. Více informací
Chystáte se prodat nemovitost?
Pomůžeme Vám!

Inzerát si prohlédlo 30 lidí

Prodejce

Makers Reality

Makers Reality

Hlídací pes

Chcete dostávat emailem podobné nabídky pronájmu vil v Praze?

Podobné nemovitosti


Nevyhovuje Vám typ domu? Podívejte se na jiné kategorie domů.


Vybrané články z našeho blogu