Prodej rodinného domu, Praha - Točná, U Čihadel, 183 m2 (ID: 4180866)

U Čihadel, Praha, Točná

27 557 222 Kč /za nemovitost HYPOTÉKA od 123 164 Kč /za měsíc
Prémioví partneři v Praze 4

Stěhovací služby

Výkup a prodej starého nábytku

Informace k domu

Nabízíme moderní dvoupodlažní rodinný dům situovaný v nově vznikajícím rezidenčním projektu v atraktivní lokalitě Praha 4 – Točná. Soubor tvoří pouhých dvanáct rodinných domů zasazených do klidného prostředí obklopeného zelení. Rezidence Točná spojuje soukromí, kvalitní architektonické řešení a blízkost přírody do harmonického celku, který vytváří ideální podmínky pro komfortní rodinné bydlení.

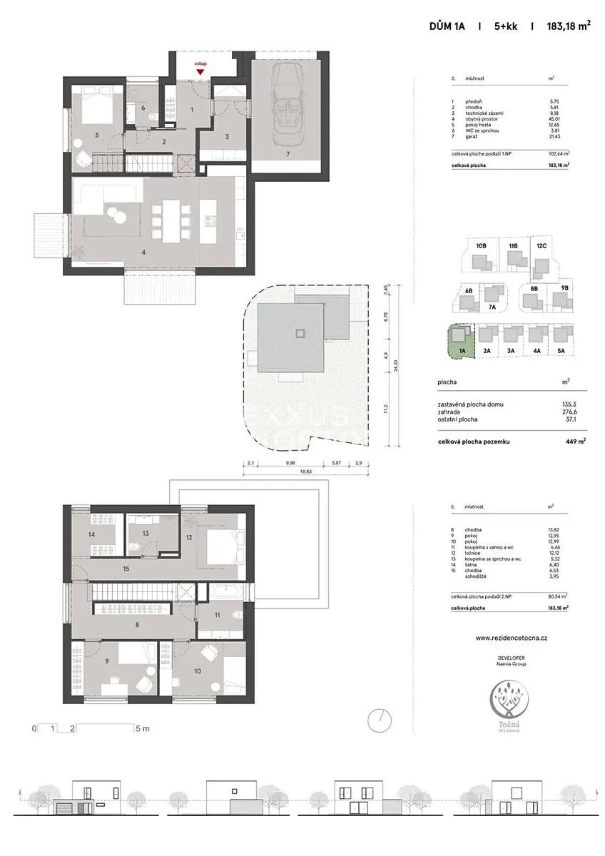
Celková užitná plocha dispozice 5+kk činí 183 m² a je účelně rozvržena do dvou nadzemních podlaží. Při vstupu se nachází prostorná hala s technickou místností a přímým vstupem do garáže, na ni navazuje otevřený obývací prostor s kuchyní a jídelnou o velikosti 45 m². Obytná část je vybavena velkoformátovými hliníkovými okny orientovanými na dvě světové strany, která přirozeně propojují interiér s terasami a jižně orientovanou zahradou. Na tomto podlaží je rovněž samostatný pokoj a koupelna, vhodné jako pracovna nebo pokoj pro hosty.

V horním patře se nachází hlavní ložnice s vlastní šatnou a koupelnou, dvě další ložnice, prostorná rodinná koupelna a dostatek úložných prostor. 


Každý dům disponuje tepelným čerpadlem vzduch–voda, podlahovým vytápěním a rekuperací, které zajišťují vysoký komfort i nízké provozní náklady. Standard zahrnuje hliníková okna s trojsklem, dřevěné podlahy, kvalitní koupelnový nábytek, venkovní žaluzie, přípravu na fotovoltaiku a zásuvku pro nabíjení elektromobilu v garáži. Nemovitost splňuje energetickou třídu A.


Točná nabízí mimořádně klidné a zelené prostředí s rychlým spojením do centra města a je ideální volbou pro rodiny hledající bezpečné a kvalitní bydlení mimo ruch metropole. Projekt zároveň podporuje rozvoj lokální infrastruktury. V blízkosti vznikne komunitní centrum pro setkávání obyvatel, společenské akce i rodinné oslavy, doplněné o samoobslužné potraviny. Nedaleko se nachází také prestižní Prague British International School.

Parametry domu

Cena
27 557 222 Kč /za nemovitost Spočítat hypotéku
Aktualizováno
13. 2. 2026
Adresa
U Čihadel, Praha, Točná
ID
533273
Stavba
Smíšená
Stav objektu
Ve výstavbě
Vybaveno
Ne
Užitná plocha
183 m2
Plocha pozemku
449 m2
Plocha zahrady
276 m2
Třída energetické náročnosti
A - Mimořádně úsporná
Garáž
Výtah
Parkování

Kontaktovat makléře

Realitní kancelář

LEXXUS, a.s.

Na Poříčí 2090/2, Praha, Nové Město

Chystáte se prodat nemovitost?
Pomůžeme Vám!

Máte zájem o tento dům?

Tímto, v souladu s nařízením Evropského parlamentu a Rady (EU) 2016/679, v platném znění, prohlašuji, že mi je alespoň 16 let a uděluji tak svůj souhlas se zpracováním zadaných údajů (jméno, telefon, e-mail, ip adresa) společnosti B3 Technology, s.r.o., IČ: 07330600, se sídlem Novostavby 126/23, 435 11 Lom (správce dat), za účelem předání dotazu z tohoto formuláře Vámi vybranému inzerentovi a zpětného kontaktování mé osoby. Osobní údaje bude správce zpracovávat manuálně i automaticky přímo prostřednictvím svých zaměstnanců. Informace předané tímto formulářem budou uloženy v databázi správce maximálně po dobu 10 let. Odvolání souhlasu s uložením a zpracováním poskytnutých dat lze e-mailem na info@videobydleni.cz. V případě podezření na neoprávněné použití Vámi poskytnutých údajů máte právo předat podnět k šetření Úřadu pro ochranu osobních údajů. Více informací
Chystáte se prodat nemovitost?
Pomůžeme Vám!

Inzerát si prohlédlo 0 lidí

Prodejce

Adéla Bukovská - recepce

Adéla Bukovská - recepce

Hlídací pes

Chcete dostávat emailem podobné nabídky prodeje rodinných domů v Praze 4?

Podobné nemovitosti


Nevyhovuje Vám typ domu? Podívejte se na jiné kategorie domů.


Vybrané články z našeho blogu