Pronájem bytu 3+kk, Praha - Kunratice, Za valem, 88 m2

Za Valem, Praha, Kunratice

32 000 Kč /za měsíc Získejte výhodnou HYPOTÉKU

(včetně garáž. stání + poplatky 4.000, Kč (2 os.) + elektřina, internet)

Prémioví partneři v Praze 4

Stěhovací služby

Výkup a prodej starého nábytku

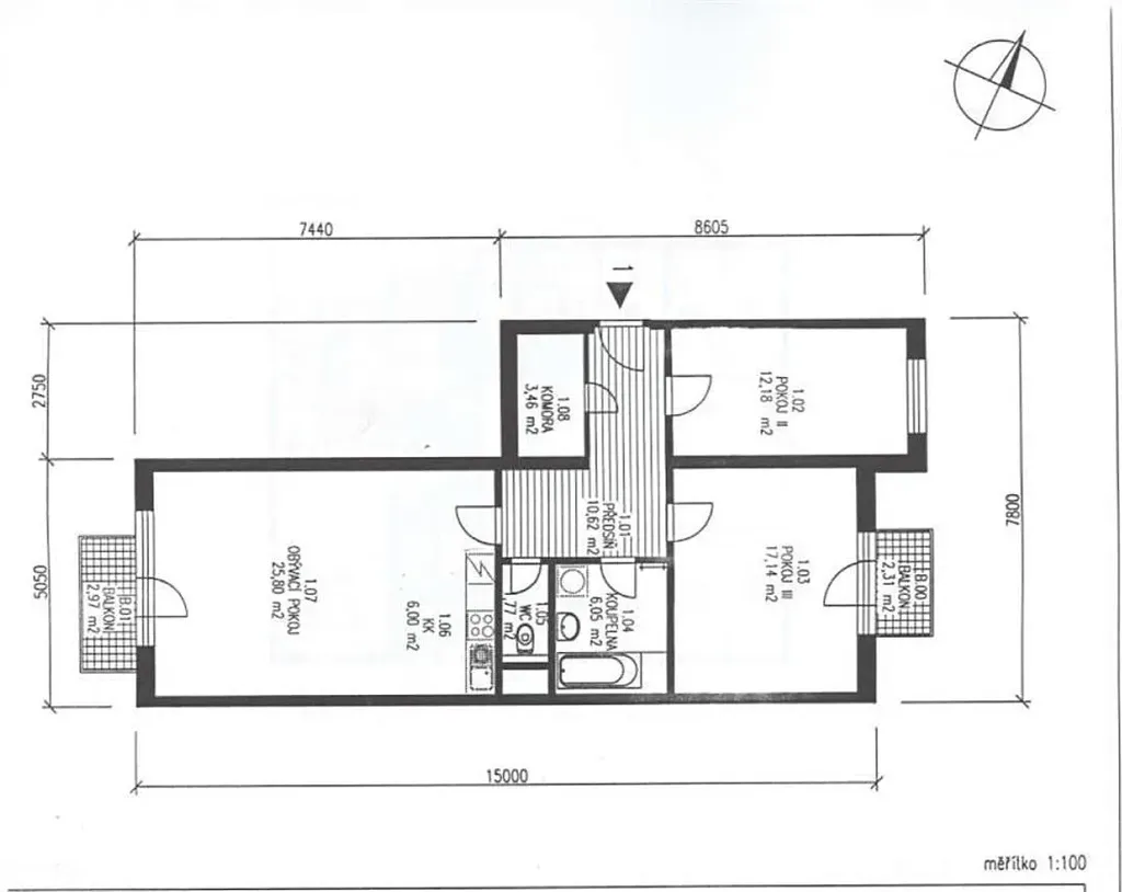
Informace k bytu

Prostorný byt 3+kk (82 m2) se 2 balkony (3 m2 a 2,3 m2) na JZ a SV ve 2. patře novostavby v těsné blízkosti Kunratického lesa v nové zástavbě "Zelené údolí".
K bytu náleží garážové stání a sklep.
Nezařízeno, vybaveno kuchyňskou linkou se sklokeramickou varnou deskou, troubou, digestoří a myčkou. Součástí bytu velká komora/šatna.
Velmi dobrá dispozice bytu samostatné dva pokoje (17 m2 a 12 m2), prostorný obývací pokoj s kuch. koutem (31 m2) a balkonem. Koupelna s vanou, WC zvlášť. Plovoucí podlahy, rolety a žaluzie v oknech. Kabelová TV v domě Vodafone/02. V domě kolárna.
Přírodní lokalita oblíbená zejména pro klidné bydlení a možnosti sportovních aktivit.
Dobrá dostupnost autobusem na metro C (Kačerov, Budějovická); do 20 min. v centru. Volné ihned.
Poplatky včetně tepla při 2 os. 4.000,Kč/měs. + elektřina bytu, internet

Parametry bytu

Cena
32 000 Kč /za měsíc
Poznámka k ceně
včetně garáž. stání + poplatky 4.000, Kč (2 os.) + elektřina, internet
Aktualizováno
13. 2. 2026
Adresa
Za Valem, Praha, Kunratice
ID
000453
Stavba
Cihlová
Stav objektu
Novostavba
Patro
3. z 7
Vybaveno
Ne
Vlastnictví
Osobní
Užitná plocha
88 m2
Podlahová plocha
83 m2
Třída energetické náročnosti
C - Úsporná
Elektřina
230V
Odpad
Veřejná kanalizace
Telekomunikace
Telefon, Internet, Kabelová televize
Doprava
MHD
Voda
Vodovod
Topné těleso
Radiátory
Zdroj topení
Ústřední dálkové
Balkon
Sklep
Lodžie
Výtah
Parkování

Kontaktovat makléře

Máte zájem o tento byt?

Tímto, v souladu s nařízením Evropského parlamentu a Rady (EU) 2016/679, v platném znění, prohlašuji, že mi je alespoň 16 let a uděluji tak svůj souhlas se zpracováním zadaných údajů (jméno, telefon, e-mail, ip adresa) společnosti B3 Technology, s.r.o., IČ: 07330600, se sídlem Novostavby 126/23, 435 11 Lom (správce dat), za účelem předání dotazu z tohoto formuláře Vámi vybranému inzerentovi a zpětného kontaktování mé osoby. Osobní údaje bude správce zpracovávat manuálně i automaticky přímo prostřednictvím svých zaměstnanců. Informace předané tímto formulářem budou uloženy v databázi správce maximálně po dobu 10 let. Odvolání souhlasu s uložením a zpracováním poskytnutých dat lze e-mailem na info@videobydleni.cz. V případě podezření na neoprávněné použití Vámi poskytnutých údajů máte právo předat podnět k šetření Úřadu pro ochranu osobních údajů. Více informací
Chystáte se prodat nemovitost?
Pomůžeme Vám!

Inzerát si prohlédlo 0 lidí

Prodejce

Ing. Andrea Hrubcová

Ing. Andrea Hrubcová

Hlídací pes

Chcete dostávat emailem podobné nabídky pronájmu bytů 3+kk v Praze 4?

Podobné nemovitosti


Nevyhovuje Vám typ bytu? Podívejte se na jiné kategorie bytů.


Vybrané články z našeho blogu