Prodej bytu 3+kk, České Budějovice, Rudolfovská tř., 66 m2 (ID: 4181091)

Rudolfovská tř., České Budějovice 3

6 690 000 Kč /za nemovitost HYPOTÉKA od 29 900 Kč /za měsíc

(včetně provize, včetně právního servisu)

Prémioví partneři v Českých Budějovicích

Výkup a prodej starého nábytku

Pojištění a finance

Informace k bytu

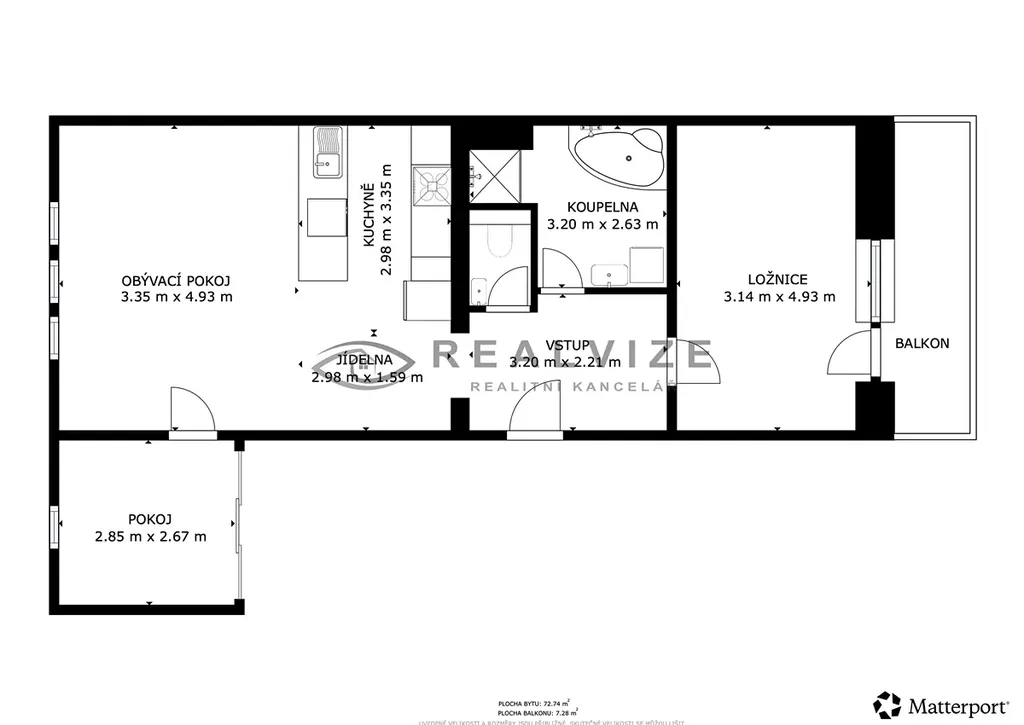
Bydlení téměř v centru Českých Budějovic s výhledem na Černou věž, vlastním parkovacím místem v uzavřeném dvoře a terasou orientovanou do vnitrobloku pro relaxaci po práci. Tento byt 3+kk je právě na prodej a ideální příležitostí pro aktivní jednotlivce či páry, kteří chtějí bydlet v centru bez kompromisů a kvalitně.
Byt se nachází ve 4. patře (5) zděného bytového domu bez výtahu, což oceníte ve smyslu klidu v domě bez slyšitelného ježdění výtahu a s nízkými náklady na správu domu.
Koupelna disponuje rohovou vanou a sprchovým koutem, WC je samostatné. V ložnici je vestavěná prostorná skříň.
Střešní okna do ulice jsou dřevěná zn. Velux, v pokoji s terasou jsou okna plastová. Nabízí se s vybavením, které je vidět na fotkách, ale po dohodě s budoucím kupujícím je možné byt vyklidit.
Byt je vytápěn pomocí radiátorů přes centrální plynový kotel pro celý dům, který zajišťuje rovněž ohřev vody.
V koupelně je navíc podlahové topení (elektrický rošt) s vlastním ovladačem. Do budoucna se řeší možnost napojení na teplárnu.
K dispozici je společný sklep a kolárna.
Součástí kupní ceny je podíl na pozemku v uzavřeném dvoře, kde se nachází parkovací stání k bytu, což je v této lokalitě obrovskou výhodou.
Na náměstí Přemysla Otakara II. dojdete pohodlně za 5 minut.
Byt je volný ihned.
V případě zájmu vám zajistíme výhodné financování.
Pro více informací a termín prohlídky volejte makléřce.

Parametry bytu

Cena
6 690 000 Kč /za nemovitost Spočítat hypotéku
Poznámka k ceně
včetně provize, včetně právního servisu
Aktualizováno
18. 5. 2026
Adresa
Rudolfovská tř., České Budějovice 3
ID
00716
Stavba
Cihlová
Stav objektu
Velmi dobrý
Patro
5. z 6
Vybaveno
Ano
Lokalita objektu
Centrum obce
Vlastnictví
Osobní
Užitná plocha
66 m2
Podlahová plocha
73 m2
Třída energetické náročnosti
C - Úsporná
Ukazatel energetické náročnosti
93 kWh/m2 za rok
Elektřina
230V
Plyn
Plynovod
Odpad
Veřejná kanalizace
Komunikace
Asfaltová
Telekomunikace
Internet
Doprava
Vlak, Silnice, MHD, Autobus
Voda
Vodovod
Topné těleso
Radiátory
Zdroj topení
Centrální dálkové
Zdroj teplé vody
Centrální dálkový ohřev
Terasa
Výtah
Parkování

Kontaktovat makléře

Máte zájem o tento byt?

Tímto, v souladu s nařízením Evropského parlamentu a Rady (EU) 2016/679, v platném znění, prohlašuji, že mi je alespoň 16 let a uděluji tak svůj souhlas se zpracováním zadaných údajů (jméno, telefon, e-mail, ip adresa) společnosti B3 Technology, s.r.o., IČ: 07330600, se sídlem Novostavby 126/23, 435 11 Lom (správce dat), za účelem předání dotazu z tohoto formuláře Vámi vybranému inzerentovi a zpětného kontaktování mé osoby. Osobní údaje bude správce zpracovávat manuálně i automaticky přímo prostřednictvím svých zaměstnanců. Informace předané tímto formulářem budou uloženy v databázi správce maximálně po dobu 10 let. Odvolání souhlasu s uložením a zpracováním poskytnutých dat lze e-mailem na info@videobydleni.cz. V případě podezření na neoprávněné použití Vámi poskytnutých údajů máte právo předat podnět k šetření Úřadu pro ochranu osobních údajů. Více informací
Chystáte se prodat nemovitost?
Pomůžeme Vám!
Theleadway banner

Inzerát si prohlédlo 12 lidí

Prodejce

Mgr. Michaela Šlencová

Mgr. Michaela Šlencová

Hlídací pes

Chcete dostávat emailem podobné nabídky prodeje bytů 3+kk v Českých Budějovicích?

Podobné nemovitosti


Nevyhovuje Vám typ bytu? Podívejte se na jiné kategorie bytů.


Vybrané články z našeho blogu