Pronájem bytu 2+kk, Praha - Modřany, Komořanská, 52 m2

Komořanská, Praha, Modřany

24 500 Kč /za měsíc Získejte výhodnou HYPOTÉKU

(+ 4400 Kč zálohy na služby včetně internetu + elektřina, vratná jistota 28900 Kč, provize 28900 Kč + DPH)

Prémioví partneři v Praze 4

Stěhovací služby

Výkup a prodej starého nábytku

Informace k bytu

K nastěhování ihned.

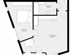
Nabízíme k pronájmu krásny, světlý byt 2+kk o velikosti 52m², situovaný v novostavbě v Modřanech. K dispozici je balkon, prostorná sklep a garážové parkovací stání.

Dispozice bytu:
• Vstupní předsíň s komodou a botníkem
• Koupelna s vanou, toaletou, umyvadlem a pračkou
• Obývací pokoj se vstupem na balkon
• Kuchyňská linka je vybavena lednicí, elektrickou troubou, mikrovlnou troubou, myčkou a digestoří
• Samostatná ložnice disponuje velkou šatní skříní a dvojpostelí
• Součástí bytu je prostorný sklep a parkovací stání


Lokalita:
Byt se nachází v rychle se rozvíjející části Prahy - Modřany s výbornou občanskou vybaveností v okolí (obchody, služby, školy, MHD) a zároveň spoustou zeleně v dochozí vzdálenosti.


Měsíční nájem činí 24500 Kč. Poplatky za služby 4400 Kč + elektrická energie. Vratná kauce 28900 Kč. Provize RK 28900 Kč + DPH.

Pozor, velkou výhodou pro potenciální nájemce je, že byt je v profesionální správě společnosti Bohemian Estates, jenž správu pro majitele tohoto bytu vykonává. Nájemci je k dispozici kontaktní osoba, která řeší veškeré záležitosti s nájmem spojené (údržba, platby nájemného, vyúčtování, dodatky, a pod.). Nájemci je tak zajištěno bezproblémové užívání bytu s kompletním servisem.

Parametry bytu

Cena
24 500 Kč /za měsíc
Poznámka k ceně
+ 4400 Kč zálohy na služby včetně internetu + elektřina, vratná jistota 28900 Kč, provize 28900 Kč + DPH
Aktualizováno
14. 2. 2026
Adresa
Komořanská, Praha, Modřany
ID
N08824
Stavba
Cihlová
Stav objektu
Novostavba
Patro
4. z 6
Vybaveno
Částečně
Vlastnictví
Osobní
Užitná plocha
52 m2
Třída energetické náročnosti
B - Velmi úsporná
Ukazatel energetické náročnosti
80 kWh/m2 za rok
Topné těleso
Radiátory
Balkon
Sklep
Výtah
Bezbarierový přístup

Kontaktovat makléře

Máte zájem o tento byt?

Tímto, v souladu s nařízením Evropského parlamentu a Rady (EU) 2016/679, v platném znění, prohlašuji, že mi je alespoň 16 let a uděluji tak svůj souhlas se zpracováním zadaných údajů (jméno, telefon, e-mail, ip adresa) společnosti B3 Technology, s.r.o., IČ: 07330600, se sídlem Novostavby 126/23, 435 11 Lom (správce dat), za účelem předání dotazu z tohoto formuláře Vámi vybranému inzerentovi a zpětného kontaktování mé osoby. Osobní údaje bude správce zpracovávat manuálně i automaticky přímo prostřednictvím svých zaměstnanců. Informace předané tímto formulářem budou uloženy v databázi správce maximálně po dobu 10 let. Odvolání souhlasu s uložením a zpracováním poskytnutých dat lze e-mailem na info@videobydleni.cz. V případě podezření na neoprávněné použití Vámi poskytnutých údajů máte právo předat podnět k šetření Úřadu pro ochranu osobních údajů. Více informací
Chystáte se prodat nemovitost?
Pomůžeme Vám!

Inzerát si prohlédlo 0 lidí

Prodejce

Adam Kubeš

Adam Kubeš

Hlídací pes

Chcete dostávat emailem podobné nabídky pronájmu bytů 2+kk v Praze 4?

Podobné nemovitosti


Nevyhovuje Vám typ bytu? Podívejte se na jiné kategorie bytů.


Vybrané články z našeho blogu