Prodej obchodního prostoru, Chrášťany, 105 m2 (ID: 4181306)

Chrášťany, Chotouň

3 700 000 Kč /za nemovitost HYPOTÉKA od 16 537 Kč /za měsíc

(včetně DPH, včetně poplatků, včetně provize, včetně právního servisu)

Prémioví partneři v Chrášťanech

Informace k nemovitosti

Jedinečný dům s historickým kouzlem a schváleným projektem rekonstrukce – Chotouň, okr. Kolín

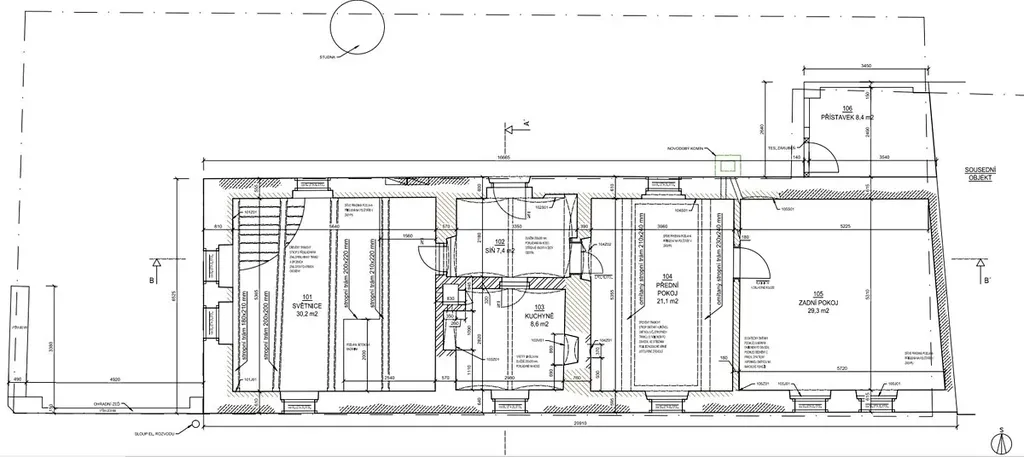
Představujeme dům, který v sobě spojuje autentickou historii, atmosféru venkova a obrovský potenciál pro nový začátek. Tento objekt, stojící na pozemku o velikosti 293 m² (zastavěná plocha 147 m²), je součástí bývalé zemědělské usedlosti v malebné obci Chotouň. Součástí prodeje je již schválený projekt a stavební povolení na kompletní obnovu domu – ideální příležitost pro ty, kteří chtějí tvořit bez zdlouhavého vyřizování.

Stavba s tradičním obdélným půdorysem a sedlovou střechou je orientována západ–východ a zachovává si původní venkovský ráz. Ačkoliv vyžaduje rekonstrukci, nevykazuje zásadní statické poruchy, což z ní činí skvělý základ pro budoucí domov, ateliér či podnikatelský záměr.
Současný interiér zahrnuje vstupní chodbu, kuchyň, tři pokoje a přístavek.
Interiér zdobí kamenné zdi s obložením z nepálených cihel, které dodávají prostoru rustikální atmosféru, a dřevěné trámové stropy, jež podtrhují historický charakter domu.
Kompletní projekt rekonstrukce i stavební povolení ráda zašlu vážným zájemcům.

Chotouň – místo s duší a výbornou dostupností, je známá svou bohatou historií – podle legend je rodištěm sv. Prokopa. Obec si dodnes uchovává klidnou atmosféru, přátelské sousedství a krásné okolí plné přírody a památek.

Dopravní dostupnost je jedním z hlavních benefitů:
-Praha autem cca 25 minut
-Autobusová zastávka přímo u domu – spojení do Českého Brodu a Říčan
-Vlakové stanice Klučov a Poříčany – cca 8 km

Občanská vybavenost v okolí:
-MŠ Chrášťany (2 km)
-ZŠ Bylany (4 km)
-Kompletní služby v Českém Brodě – obchody, lékaři, restaurace, sportoviště, kultura
- Okolí nabízí také množství výletních cílů – zámek Konopiště, zámek Jemniště, hrad Český Šternberk a další.

Hledáte místo, kde můžete vytvořit rodinný domov, stylový venkovský ateliér, dílnu, kavárnu nebo komunitní prostor? Tento dům nabízí neomezené možnosti a díky schválenému projektu můžete začít téměř okamžitě.

Ráda vám nemovitost osobně představím a poskytnu veškeré podklady.
Neváhejte mě kontaktovat – možná právě tady začíná váš nový příběh.


Uvedené výměry jsou orientační. V případě více zájemců bude nemovitost prodána nejlepší nabídce a majitel si vyhrazuje právo vybrat kupujícího na základě jim zvolených kritérií. Veškeré zveřejněné údaje obsažené v tomto inzerátu mají pouze informativní charakter a nejsou nabídkou ve smyslu §1731 nebo §1732 občanského zákoníku, ani se nejedná o veřejný příslib dle §1733 občanského zákoníku.

Parametry nemovitosti

Cena
3 700 000 Kč /za nemovitost Spočítat hypotéku
Poznámka k ceně
včetně DPH, včetně poplatků, včetně provize, včetně právního servisu
Aktualizováno
31. 3. 2026
Adresa
Chrášťany, Chotouň
ID
29659
Stavba
Cihlová
Stav objektu
Před rekonstrukcí
Lokalita objektu
Klidná část obce
Užitná plocha
105 m2
Zastavěná plocha
147 m2
Třída energetické náročnosti
G - Mimořádně nehospodárná
Elektřina
230V
Komunikace
Asfaltová
Doprava
Dálnice, Silnice, Autobus
Voda
Studna

Kontaktovat makléře

Máte zájem o tuto nemovistost?

Tímto, v souladu s nařízením Evropského parlamentu a Rady (EU) 2016/679, v platném znění, prohlašuji, že mi je alespoň 16 let a uděluji tak svůj souhlas se zpracováním zadaných údajů (jméno, telefon, e-mail, ip adresa) společnosti B3 Technology, s.r.o., IČ: 07330600, se sídlem Novostavby 126/23, 435 11 Lom (správce dat), za účelem předání dotazu z tohoto formuláře Vámi vybranému inzerentovi a zpětného kontaktování mé osoby. Osobní údaje bude správce zpracovávat manuálně i automaticky přímo prostřednictvím svých zaměstnanců. Informace předané tímto formulářem budou uloženy v databázi správce maximálně po dobu 10 let. Odvolání souhlasu s uložením a zpracováním poskytnutých dat lze e-mailem na info@videobydleni.cz. V případě podezření na neoprávněné použití Vámi poskytnutých údajů máte právo předat podnět k šetření Úřadu pro ochranu osobních údajů. Více informací
Chystáte se prodat nemovitost?
Pomůžeme Vám!

Inzerát si prohlédlo 8 lidí

Prodejce

Maria Čerkašina

Maria Čerkašina

Hlídací pes

Chcete dostávat emailem podobné nabídky prodeje obchodních prostor v Chrášťanech (okr. Kolín)?

Podobné nemovitosti


Nevyhovuje Vám typ nemovitosti? Podívejte se na jiné kategorie komerčních.


Vybrané články z našeho blogu