Prodej rodinného domu, Zruč nad Sázavou, Vlašimská, 119 m2

Vlašimská, Zruč nad Sázavou

Prémioví partneři v Zruči nad Sázavou

Informace k domu

Prodej rodinného domu 4+kk ve fázi výstavby s garáží a terasou

Nabízíme k prodeji rozestavěný rodinný dům o dispozici 4+kk s garáží a prostornou terasou, situovaný v klidné a vyhledávané lokalitě Zruče nad Sázavou.
Nemovitost představuje ideální příležitost pro klienty, kteří hledají moderní bydlení s krásným výhledem a současně chtějí finální podobu domu přizpůsobit vlastním představám.
Dům je realizován na základě kompletní projektové dokumentace s platným stavebním povolením (2025). Stavbu je možné převzít okamžitě a plynule pokračovat v dokončení.
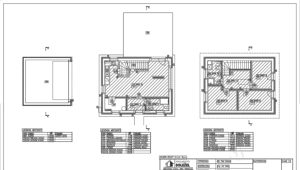
Dispoziční řešení 4+kk nabízí komfortní a funkční prostor pro rodinné bydlení. Podlahová (užitná) plocha domu činí 118,58 m², zastavěná plocha domu je 80 m². Součástí projektu je garáž o velikosti 36 m² a prostorná terasa o výměře 42,78 m², která přirozeně navazuje na obytnou část domu.
Architektonické řešení citlivě pracuje se svažitým terénem a klade důraz na dostatek denního světla, soukromí a maximální využití krásného otevřeného výhledu do okolní krajiny.
Pozemek o velikosti 479 m² je řešen účelně a efektivně, s minimálními nároky na údržbu, což ocení zejména klienti preferující moderní a bezstarostný životní styl.
Součástí prezentace nemovitosti je promo video s vloženou vizualizací budoucí podoby domu a rovněž vizualizační fotografie zpracované dle projektové dokumentace, která je samozřejmě k dispozici.
Inženýrské sítě: elektrická přípojka je hotová, voda vedena v komunikaci (připojení schváleno ve stavebním povolení), odpad řešen jímkou (alternativně možnost ČOV)

Hlavní přednosti nemovitosti:
-moderní rodinný dům 4+kk
-podlahová / užitná plocha domu 118,58 m², garáž o velikosti 36 m² a terasa 42,78 m²
-krásný otevřený výhled
-vysoká míra soukromí
-klidná slepá ulice s minimálním provozem
-možnost dokončení dle vlastních představ
-možnost okamžitého pokračování ve výstavbě
-nízké nároky na údržbu pozemku

Nemovitost se nachází v atraktivní a klidné lokalitě Zruč nad Sázavou, která nabízí ideální kombinaci přírody, občanské vybavenosti a kvalitního životního stylu.

V okolí naleznete: zámek a zámecký park, turistické a cyklistické trasy Posázaví, sportovní i rekreační vyžití podél řeky Sázavy, kompletní občanskou vybavenost (školy, obchody, služby, zdravotní péče).

Lokalita je dobře dostupná veřejnou dopravou i vlakovým spojením.
Nemovitost představuje ideální příležitost pro klienty hledající moderní bydlení v klidném prostředí s možností dokončení domu podle vlastních představ.

Parametry domu

Cena
4 470 000 Kč Spočítat hypotéku
Aktualizováno
14. 2. 2026
Adresa
Vlašimská, Zruč nad Sázavou
ID
00104
Stavba
Cihlová
Stav objektu
Ve výstavbě
Druh objektu
Samostatný
Užitná plocha
119 m2
Zastavěná plocha
80 m2
Plocha pozemku
479 m2
Třída energetické náročnosti
G - Mimořádně nehospodárná

Kontaktovat makléře

Máte zájem o tento dům?

Tímto, v souladu s nařízením Evropského parlamentu a Rady (EU) 2016/679, v platném znění, prohlašuji, že mi je alespoň 16 let a uděluji tak svůj souhlas se zpracováním zadaných údajů (jméno, telefon, e-mail, ip adresa) společnosti B3 Technology, s.r.o., IČ: 07330600, se sídlem Novostavby 126/23, 435 11 Lom (správce dat), za účelem předání dotazu z tohoto formuláře Vámi vybranému inzerentovi a zpětného kontaktování mé osoby. Osobní údaje bude správce zpracovávat manuálně i automaticky přímo prostřednictvím svých zaměstnanců. Informace předané tímto formulářem budou uloženy v databázi správce maximálně po dobu 10 let. Odvolání souhlasu s uložením a zpracováním poskytnutých dat lze e-mailem na info@videobydleni.cz. V případě podezření na neoprávněné použití Vámi poskytnutých údajů máte právo předat podnět k šetření Úřadu pro ochranu osobních údajů. Více informací
Chystáte se prodat nemovitost?
Pomůžeme Vám!

Inzerát si prohlédlo 1 lidí

Prodejce

Stanislava Vondráková

Stanislava Vondráková

Hlídací pes

Chcete dostávat emailem podobné nabídky prodeje rodinných domů v Zruči nad Sázavou?

Podobné nemovitosti


Nevyhovuje Vám typ domu? Podívejte se na jiné kategorie domů.


Vybrané články z našeho blogu