Soccer reality

Prodej bytu 2+kk, Praha - Vysočany, Pod Harfou, 43 m2 (ID: 4183348)

Pod Harfou, Praha, Vysočany

10 550 000 Kč /za nemovitost HYPOTÉKA od 47 152 Kč /za měsíc
Prémioví partneři v Praze 9

Stěhovací služby

Výkup a prodej starého nábytku

Informace k bytu

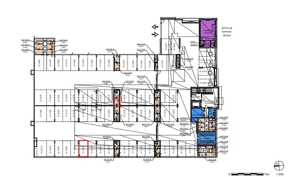
Nabízíme postoupení smlouvy na budoucí byt 2+kk o ploše 43 m v přízemí zděné novostavby s fasádním zateplovacím systémem, která se nachází v oblíbené části Prahy 9 Vysočany. K bytu náleží terasa/zahrádka (28,6 m), sklep (3,8 m) a garážové stání (12,5 m). Projekt je aktuálně ve výstavbě, plánovaná kolaudace je na konec roku 2026 až začátek roku 2027. Dům má 7 nadzemních a 2 podzemní podlaží a je vybaven moderním lanovým výtahem.

V tuto chvíli se hradí pouze odstupné, doplatek kupní ceny je splácen postupně během výstavby přímo developerovi dle splátkového kalendáře.

Dispozice: vstupní chodba (5,9 m), obývací pokoj s přípravou na kuchyň (19,6 m), ložnice (12,5 m), koupelna s vanou a WC (5 m). Byt je orientován na východ do klidného vnitrobloku. Celková plocha včetně konstrukcí činí 44,8 m.

Standard zahrnuje např. plastová vícekomorová okna s přípravou na venkovní rolety, bezpečnostní vstupní dveře, keramické obklady a dlažbu RAKO, přípravu na pračku i datové rozvody. Vytápění je ústřední s radiátory a termohlavicemi.

Terasa/předzahrádka je oplocená a kombinuje mrazuvzdornou dlažbu s vegetační vrstvou určenou pro extenzivní zeleň (bez možnosti výsadby stromů či vzrostlých keřů, únosnost 200 kg/m). Sklepní kóje jsou zděné, bez omítek, oddělené kovovými příčkami.

Lokalita nabízí kompletní občanskou vybavenost i výborné spojení MHD tramvajová zastávka Kabešova s návazností na metro B (Palmovka, Českomoravská). V pěší vzdálenosti je Galerie Harfa, O2 arena či park Podvinní.

Energetická náročnost budovy: třída B (odhad).

Vhodné jak pro vlastní bydlení, tak jako investice.

Parametry bytu

Cena
10 550 000 Kč /za nemovitost Spočítat hypotéku
Aktualizováno
17. 2. 2026
Adresa
Pod Harfou, Praha, Vysočany
ID
1111-34813
Stavba
Smíšená
Stav objektu
Novostavba
Patro
1. z 7
Vybaveno
Ne
Vlastnictví
Osobní
Užitná plocha
43 m2
Podlahová plocha
44 m2
Třída energetické náročnosti
B - Velmi úsporná
Topení
Ústřední elektrické
Komunikace
Asfaltová
Doprava
Vlak, MHD
Voda
Vodovod
Topné těleso
Radiátory
Garáž
Sklep
Terasa
Výtah
Bezbarierový přístup

Kontaktovat makléře

Máte zájem o tento byt?

Tímto, v souladu s nařízením Evropského parlamentu a Rady (EU) 2016/679, v platném znění, prohlašuji, že mi je alespoň 16 let a uděluji tak svůj souhlas se zpracováním zadaných údajů (jméno, telefon, e-mail, ip adresa) společnosti B3 Technology, s.r.o., IČ: 07330600, se sídlem Novostavby 126/23, 435 11 Lom (správce dat), za účelem předání dotazu z tohoto formuláře Vámi vybranému inzerentovi a zpětného kontaktování mé osoby. Osobní údaje bude správce zpracovávat manuálně i automaticky přímo prostřednictvím svých zaměstnanců. Informace předané tímto formulářem budou uloženy v databázi správce maximálně po dobu 10 let. Odvolání souhlasu s uložením a zpracováním poskytnutých dat lze e-mailem na info@videobydleni.cz. V případě podezření na neoprávněné použití Vámi poskytnutých údajů máte právo předat podnět k šetření Úřadu pro ochranu osobních údajů. Více informací
Chystáte se prodat nemovitost?
Pomůžeme Vám!

Inzerát si prohlédlo 0 lidí

Prodejce

Oleksandra Šarnova

Oleksandra Šarnova

Hlídací pes

Chcete dostávat emailem podobné nabídky prodeje bytů 2+kk v Praze 9?

Podobné nemovitosti


Nevyhovuje Vám typ bytu? Podívejte se na jiné kategorie bytů.


Vybrané články z našeho blogu