Pronájem bytu 2+1, Praha - Vinohrady, náměstí Jiřího z Lobkovic, 62 m2

náměstí Jiřího z Lobkovic, Praha 3

24 800 Kč /za měsíc Získejte výhodnou HYPOTÉKU
Prémioví partneři v Praze 3

Stěhovací služby

Výkup a prodej starého nábytku

Informace k bytu

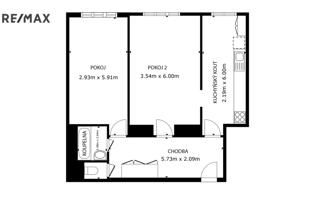
Nabízíme k pronájmu světlý byt 2+1 v oblíbené části Vinohrad. Klidné bydlení s okny na východ do vnitrobloku, tj. na opačnou stranu, než je ulice, zajišťují tiché prostředí a příjemné ranní světlo. Byt se nachází na náměstí Jiřího z Lobkovic 2458/17 v Praze 3, ve 4. patře udržovaného domu s výtahem. Celková plocha bytu je 62,5 m² a poskytuje dostatek prostoru pro pohodlné bydlení.
Po vstupu do bytu je před Vámi prostorná předsíň se šatními skříněmi, ze které se vstupuje do kuchyně a do prvního neprůchozího pokoje. Druhý neprůchozí pokoj má samostatný vstup také z předsíně.

Kuchyň je prakticky vybavena lednicí s mrazákem, sporákem, myčkou a kuchyňskou linkou s přípravou na pračku a úložným prostorem. Koupelna je vybavena menší vanou se sprchovací zástěnou a velkým žebříkem na sušení ručníků.
Toaleta je samostatná. V obytných pokojích jsou renovované parketové podlahy, které bytu dodávají příjemný charakter.
Dispozice bytu je praktická a vhodná pro pár i rodinu s dětmi. Výhodou je blízkost základní i mateřské školy přímo na náměstí.
Součástí bydlení je možnost využívat uzavřenou zahradu a dětské hřiště s pískovištěm a prolézačkami, které se nachází přímo pod okny bytu. V okolí jsou k dispozici také volnočasové kluby a sportoviště včetně tenisové školy při místní základní škole.

Lokalita nabízí výbornou dopravní dostupnost i kompletní občanskou vybavenost. V docházkové vzdálenosti se je obchodní centrum Flora s obchody a službami pro každodenní potřeby.

Měsíční nájemné - 24 800 Kč.
Zálohy na služby pro dvě osoby - 4 500 Kč měsíčně
Elektřina se převádí na nájemce.
Vratná kauce odpovídá dvěma měsíčním nájmům - 2 x 24 800 Kč
Rezervační poplatek ve výši jednoho nájmu (24 800 Kč) se po podpisu nájemní smlouvy
započítává na první měsíc nájmu.
Nájemce neplatí provizi RK

V případě zájmu o prohlídku nás neváhejte kontaktovat, rádi vám byt osobně ukážeme. Prodávající si vyhrazuje právo vybrat kupujícího na základě jím zvolených kritérií.

Parametry bytu

Cena
24 800 Kč /za měsíc
Aktualizováno
12. 3. 2026
Adresa
náměstí Jiřího z Lobkovic, Praha 3
ID
262-NP00588
Stavba
Cihlová
Stav objektu
Velmi dobrý
Patro
5. z 6
Vybaveno
Částečně
Lokalita objektu
Klidná část obce
Vlastnictví
Osobní
Užitná plocha
62 m2
Zastavěná plocha
315 m2
Podlahová plocha
62 m2
Plocha zahrady
382 m2
Třída energetické náročnosti
D - Méně úsporná
Ukazatel energetické náročnosti
172 kWh/m2 za rok
Elektřina
230V
Odpad
Veřejná kanalizace
Komunikace
Asfaltová
Telekomunikace
Internet
Doprava
Silnice, MHD, Autobus
Voda
Vodovod
Sklep
Výtah

Kontaktovat makléře

Realitní kancelář

Logo RE/MAX Scopus

RE/MAX Scopus

Olbrachtova 1065/46, Praha, Krč

Chystáte se prodat nemovitost?
Pomůžeme Vám!

Máte zájem o tento byt?

Tímto, v souladu s nařízením Evropského parlamentu a Rady (EU) 2016/679, v platném znění, prohlašuji, že mi je alespoň 16 let a uděluji tak svůj souhlas se zpracováním zadaných údajů (jméno, telefon, e-mail, ip adresa) společnosti B3 Technology, s.r.o., IČ: 07330600, se sídlem Novostavby 126/23, 435 11 Lom (správce dat), za účelem předání dotazu z tohoto formuláře Vámi vybranému inzerentovi a zpětného kontaktování mé osoby. Osobní údaje bude správce zpracovávat manuálně i automaticky přímo prostřednictvím svých zaměstnanců. Informace předané tímto formulářem budou uloženy v databázi správce maximálně po dobu 10 let. Odvolání souhlasu s uložením a zpracováním poskytnutých dat lze e-mailem na info@videobydleni.cz. V případě podezření na neoprávněné použití Vámi poskytnutých údajů máte právo předat podnět k šetření Úřadu pro ochranu osobních údajů. Více informací
Chystáte se prodat nemovitost?
Pomůžeme Vám!

Inzerát si prohlédlo 12 lidí

Prodejce

Petr Vančura

Petr Vančura

Hlídací pes

Chcete dostávat emailem podobné nabídky pronájmu bytů 2+1 v Praze 3?

Podobné nemovitosti


Nevyhovuje Vám typ bytu? Podívejte se na jiné kategorie bytů.


Vybrané články z našeho blogu