Remax Monarcha

Prodej bytu 3+kk, Olomouc - Nová Ulice, Horní lán, 82 m2

Horní lán, Olomouc, Nová Ulice

6 999 000 Kč HYPOTÉKA od 31 281 Kč /za měsíc

(včetně provize RK)

Prémioví partneři v Olomouci

Informace k bytu

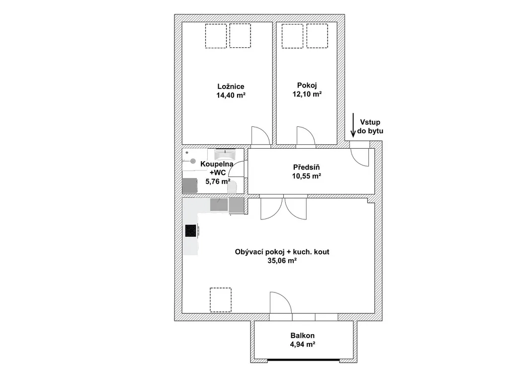
Prodej zařízené 3+kk

Olomouc – Nová Ulice, Horní lán |Prostorný 3+kk 83 m² | 2 neprůchozí pokoje | klimatizace | markýza| balkon | parkovací stání | sklep |

Nabízíme ke koupi světlý a velmi dobře řešený byt 3+kk v jedné z dlouhodobě nejžádanějších částí Olomouce – Nová Ulice, ulice Horní lán.
Byt se nachází ve 3. patře cihlového domu bez výtahu a díky orientaci i otevřenému obytnému prostoru působí vzdušně a příjemně.
Dominantou bytu je prostorný obývací pokoj s kuchyňským koutem (35,06 m²), který nabízí pohodlné místo pro jídelní část i obývací zónu. Navazuje na balkon o velikosti 4,94 m² orientovaný do klidné části domu.

Ložnice (14,40 m²) je samostatná a klidná. Druhý pokoj (12,10 m²) je plnohodnotný – vhodný jako dětský pokoj, pracovna nebo pokoj pro hosty.
Koupelna s WC (5,76 m²). Předsíň (10,55 m²) nabízí dostatek úložných možností. Byt je vybaven klimatizační jednotkou, která výrazně zvyšuje komfort bydlení, zejména v letním období.Velkou výhodou je zděný sklep o velikosti 6,20 m² vhodný pro kola, kočárek, sportovní vybavení i sezónní věci.
Byt je ve velmi dobrém stavu a připraven k okamžitému bydlení bez nutnosti větších investic.
Parkovací stání v domě je možné dokoupit za 590 000 Kč (není podmínkou koupě bytu).

Horní lán patří dlouhodobě mezi nejvyhledávanější části Olomouce — klidné bydlení se zelení, kompletní občanská vybavenost, MHD v docházkové vzdálenosti a rychlá dostupnost do centra i Fakultní nemocnice.

Hlavní výhody
• obývací prostor 35 m²
• 2 samostatné neprůchozí pokoje
• balkon do klidné části
• zděný sklep 6,2 m²
• možnost parkovacího stání
• dlouhodobě velmi dobře pronajímatelná dispozice i lokalita

Parametry bytu

Cena
6 999 000 Kč Spočítat hypotéku
Poznámka k ceně
včetně provize RK
Aktualizováno
17. 2. 2026
Adresa
Horní lán, Olomouc, Nová Ulice
ID
OL559
Stavba
Cihlová
Vybaveno
Ano
Lokalita objektu
Okraj obce
Vlastnictví
Osobní
Užitná plocha
82 m2
Třída energetické náročnosti
C - Úsporná

Kontaktovat makléře

Máte zájem o tento byt?

Tímto, v souladu s nařízením Evropského parlamentu a Rady (EU) 2016/679, v platném znění, prohlašuji, že mi je alespoň 16 let a uděluji tak svůj souhlas se zpracováním zadaných údajů (jméno, telefon, e-mail, ip adresa) společnosti B3 Technology, s.r.o., IČ: 07330600, se sídlem Novostavby 126/23, 435 11 Lom (správce dat), za účelem předání dotazu z tohoto formuláře Vámi vybranému inzerentovi a zpětného kontaktování mé osoby. Osobní údaje bude správce zpracovávat manuálně i automaticky přímo prostřednictvím svých zaměstnanců. Informace předané tímto formulářem budou uloženy v databázi správce maximálně po dobu 10 let. Odvolání souhlasu s uložením a zpracováním poskytnutých dat lze e-mailem na info@videobydleni.cz. V případě podezření na neoprávněné použití Vámi poskytnutých údajů máte právo předat podnět k šetření Úřadu pro ochranu osobních údajů. Více informací
Chystáte se prodat nemovitost?
Pomůžeme Vám!

Inzerát si prohlédlo 0 lidí

Prodejce

Forjoko s.r.o.

Forjoko s.r.o.

Hlídací pes

Chcete dostávat emailem podobné nabídky prodeje bytů 3+kk v Olomouci?

Podobné nemovitosti


Nevyhovuje Vám typ bytu? Podívejte se na jiné kategorie bytů.


Vybrané články z našeho blogu