Pronájem bytu 2+kk, Strakonice - Strakonice II, Dukelská, 47 m2

Dukelská, Strakonice II

11 000 Kč /za měsíc Získejte výhodnou HYPOTÉKU

(Záloha na služby: 5 000 Kč, kauce: 25 000 Kč, provize RK: 11 000 Kč)

Prémioví partneři v Strakonicích

Výkup a prodej starého nábytku

Informace k bytu

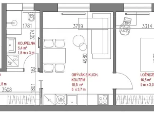
Nabízíme k pronájmu podkrovní byt s dispozicí 2+KK o ploše 46,7 m² ve 4. nadzemním podlaží

Nabízíme k pronájmu podkrovní byt s dispozicí 2+KK o ploše 46,7 m² ve 4. nadzemním podlaží bytového domu v centru města v docházkové vzdálenosti do školky, školy, zdravotnického zařízení, nákupních možností a vlakového a autobusového nádraží.

dispozice bytu: pokoj + KK 18,3 m², ložnice 16,3 m², koupelna + WC 5,9 m², předsíň 6,3 m²
celkem podlahová plocha 46,7 m²

Vstupní protipožární dveře a ocelová zárubeň s jednobodovým bezpečnostním kováním. Okna pokoje + KK a ložnice jsou situována na západní stranu.
Otvíravé dveře v bytech mají bezfalcová křídla a obložkové zárubně. Odvětrání WC přímo otevíravým oknem. Kuchyňská linka s vestavěnými spotřebiči od firmy Elektrolux (varná deska, vestavěná trouba, mikrovlnná trouba, vestavěná lednička, myčka). Podlaha kromě WC a koupelny plovoucí laminátová. WC a koupelny jsou obloženy keramickým kalibrovaným obkladem a dlažbou 600/300 mm v matném provedení. Velký sprchový kout s nerezovým odvodňovacím žlábkem. Příprava pro instalaci pračky a sušičky. Vyšší teplotu při hygieně zaručuje topné těleso ve formě velkého žebříku. WC závěsné pro snadnou údržbu. Nadstandartní zateplení zaručuje nízké provozní náklady a příjemné klima v teplých dnech. Bytový dům má vlastní výměníkovou stanici ve správě Teplárny Strakonice pro teplovodní vytápění a ohřev TUV. K bytu náleží sklepní koje. V domě není výtah. Vytápění v bytech je řešeno deskovými radiátory. V bytě je napojení na internet.

Parametry bytu

Cena
11 000 Kč /za měsíc
Poznámka k ceně
Záloha na služby: 5 000 Kč, kauce: 25 000 Kč, provize RK: 11 000 Kč
Aktualizováno
19. 2. 2026
Adresa
Dukelská, Strakonice II
ID
Dukelská 337 18
Stavba
Cihlová
Lokalita objektu
Centrum obce
Vlastnictví
Osobní
Užitná plocha
47 m2
Třída energetické náročnosti
B - Velmi úsporná

Kontaktovat makléře

Máte zájem o tento byt?

Tímto, v souladu s nařízením Evropského parlamentu a Rady (EU) 2016/679, v platném znění, prohlašuji, že mi je alespoň 16 let a uděluji tak svůj souhlas se zpracováním zadaných údajů (jméno, telefon, e-mail, ip adresa) společnosti B3 Technology, s.r.o., IČ: 07330600, se sídlem Novostavby 126/23, 435 11 Lom (správce dat), za účelem předání dotazu z tohoto formuláře Vámi vybranému inzerentovi a zpětného kontaktování mé osoby. Osobní údaje bude správce zpracovávat manuálně i automaticky přímo prostřednictvím svých zaměstnanců. Informace předané tímto formulářem budou uloženy v databázi správce maximálně po dobu 10 let. Odvolání souhlasu s uložením a zpracováním poskytnutých dat lze e-mailem na info@videobydleni.cz. V případě podezření na neoprávněné použití Vámi poskytnutých údajů máte právo předat podnět k šetření Úřadu pro ochranu osobních údajů. Více informací
Chystáte se prodat nemovitost?
Pomůžeme Vám!

Inzerát si prohlédlo 0 lidí

Prodejce

Ing. Miroslav Kučera MBA

Ing. Miroslav Kučera MBA

Hlídací pes

Chcete dostávat emailem podobné nabídky pronájmu bytů 2+kk v Strakonicích?

Podobné nemovitosti


Nevyhovuje Vám typ bytu? Podívejte se na jiné kategorie bytů.


Vybrané články z našeho blogu