Soccer reality

Prodej kanceláře, Praha - Vysočany, Kolbenova, 181 m2

Kolbenova, Praha, Vysočany

30 634 000 Kč /za nemovitost HYPOTÉKA od 136 915 Kč /za měsíc
Prémioví partneři v Praze 9

Stěhovací služby

Výkup a prodej starého nábytku

Informace k nemovitosti

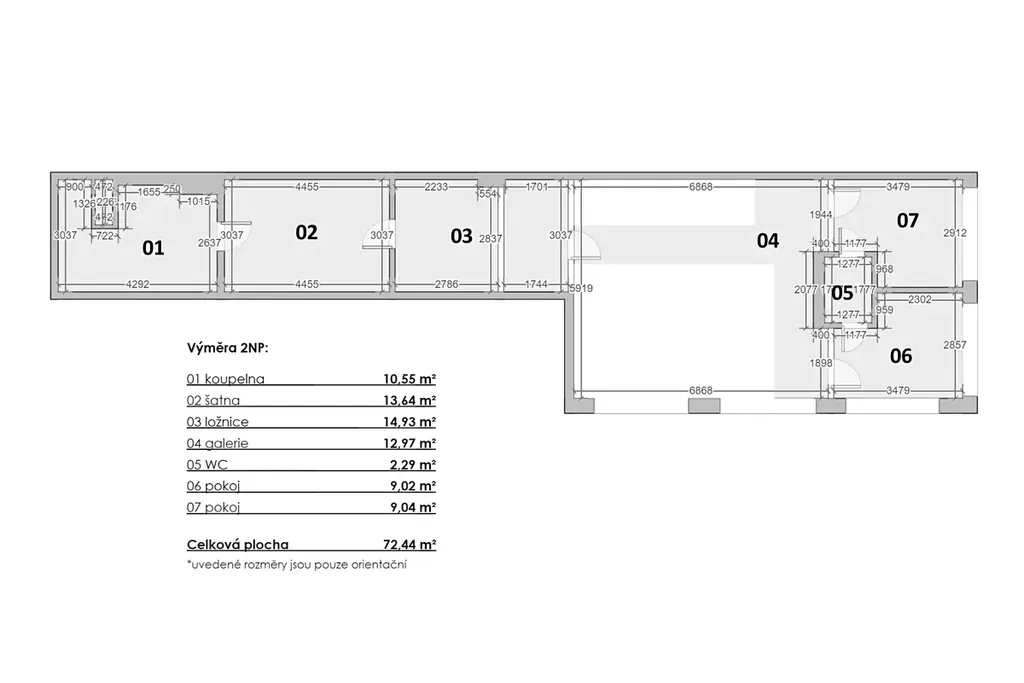
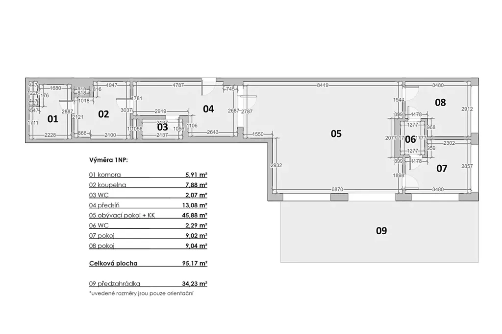
Hledáte prestižní prostor pro vaši firmu? Chcete ohromit své klienty případně zaměstnance? Nebo hledáte jedinečný prostor pro vaše podnikání jako v americkém filmu? V tom případě nabízíme k prodeji zcela unikátní ateliér s dispozicí 6+kk o celkové výměře 181 m2. Tento prostor v nově vzniklém developerském projektu je ideální pro firemní využití, nachází se hned v přízemí budovy vedle vchodu. Tento exkluzivní ateliér s rozlohou nabízí nejen luxusní prostor, ale také předzahrádku o velikosti 34 m², ideální pro firemní posezení u grilu.

Vybavení a standardy:
Rekuperace – zajišťuje čerstvý a zdravý vzduch po celý rok
Klimatizace – pro příjemné klima ve všech ročních obdobích
Podlahové topení – maximální komfort a efektivní vytápění
Předokenní žaluzie – pro dokonalé stínění a soukromí

Industriální styl celého projektu kombinuje přiznaný beton a původní konstrukci, celý dojem podtrhují velkoplošná hliníková okna.

Fotky s vybavením slouží jako inspirace k vytvoření vlastní kanceláře.

Lokalita:
Projekt Lofty Kolbenova je situován v jedné z nejvíce rostoucích a perspektivních lokalit v Praze. Nabízí rychlou dostupnost do centra města, bohatou infrastrukturu a pestré možnosti pro volnočasové aktivity. Tramvajovou zastávku a metro máte přímo před domem (metro B Kolbenova). Pro milovníky umění nesmíme opomenout Prágovku přímo naproti domu. Skoro za rohem se nacházejí obchodní centra jako Fénix a Galerie Harfa. Pro fanoušky sportovních zápasů a velkých koncertů ideální bydlení v blízkosti O2 arény a zároveň v blízkosti přírody jako Klíčovské sady. Za 10 minut se tak můžete ocitnout jak v centru Prahy, tak na D10 nebo D11 při cestě do Krkonoš, Jizerských nebo Orlických hor, popřípadě na D8 do Krušných hor. Potenciál lokality dělá z bytu skvělou investiční příležitost. Investujte do luxusu, pohodlí a prestiže s Lofty Kolbenova.

Jedná se o již hotový ateliér k předání. Pro víc informací o objektu a jiných dispozic bytů/ateliérů mě prosím kontaktujte.

Parametry nemovitosti

Cena
30 634 000 Kč /za nemovitost Spočítat hypotéku
Aktualizováno
20. 2. 2026
Adresa
Kolbenova, Praha, Vysočany
ID
960125
Stavba
Smíšená
Stav objektu
Novostavba
Patro
1. z 5
Užitná plocha
181 m2
Podlahová plocha
181 m2
Třída energetické náročnosti
B - Velmi úsporná
Ukazatel energetické náročnosti
75 kWh/m2 za rok
Elektřina
230V
Odpad
Veřejná kanalizace
Komunikace
Asfaltová
Telekomunikace
Telefon, Internet, Kabelová televize
Doprava
Silnice, MHD, Autobus
Voda
Vodovod
Garáž
Výtah
Bezbarierový přístup
Parkování

Kontaktovat makléře

Máte zájem o tuto nemovistost?

Tímto, v souladu s nařízením Evropského parlamentu a Rady (EU) 2016/679, v platném znění, prohlašuji, že mi je alespoň 16 let a uděluji tak svůj souhlas se zpracováním zadaných údajů (jméno, telefon, e-mail, ip adresa) společnosti B3 Technology, s.r.o., IČ: 07330600, se sídlem Novostavby 126/23, 435 11 Lom (správce dat), za účelem předání dotazu z tohoto formuláře Vámi vybranému inzerentovi a zpětného kontaktování mé osoby. Osobní údaje bude správce zpracovávat manuálně i automaticky přímo prostřednictvím svých zaměstnanců. Informace předané tímto formulářem budou uloženy v databázi správce maximálně po dobu 10 let. Odvolání souhlasu s uložením a zpracováním poskytnutých dat lze e-mailem na info@videobydleni.cz. V případě podezření na neoprávněné použití Vámi poskytnutých údajů máte právo předat podnět k šetření Úřadu pro ochranu osobních údajů. Více informací
Chystáte se prodat nemovitost?
Pomůžeme Vám!

Inzerát si prohlédlo 0 lidí

Prodejce

Erika Mezková

Erika Mezková

Hlídací pes

Chcete dostávat emailem podobné nabídky prodeje kanceláří v Praze 9?

Podobné nemovitosti


Nevyhovuje Vám typ nemovitosti? Podívejte se na jiné kategorie komerčních.


Vybrané články z našeho blogu