Prodej - jiné, Krňany, 54 m2

Krňany, Teletín

Cena na vyžádání /za nemovitost Získejte výhodnou HYPOTÉKU
Prémioví partneři v Krňanech

Informace k nemovitosti

Nabízíme k prodeji nově zrekonstruovanou rekreační chatu s výjimečnou polohou přímo nad nádrží přehrady Štěchovice s výhledem na skalní stěny Vltavského kaňonu. Chata prošla kompletní přestavbou s důrazem na kvalitní materiály a propojení interiéru s okolní přírodou. Interiér je obložen přírodním smrkovým dřevem, objekt je postaven jako dřevěná sendvičová konstrukce s tepelnou izolací.

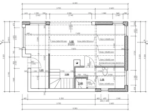
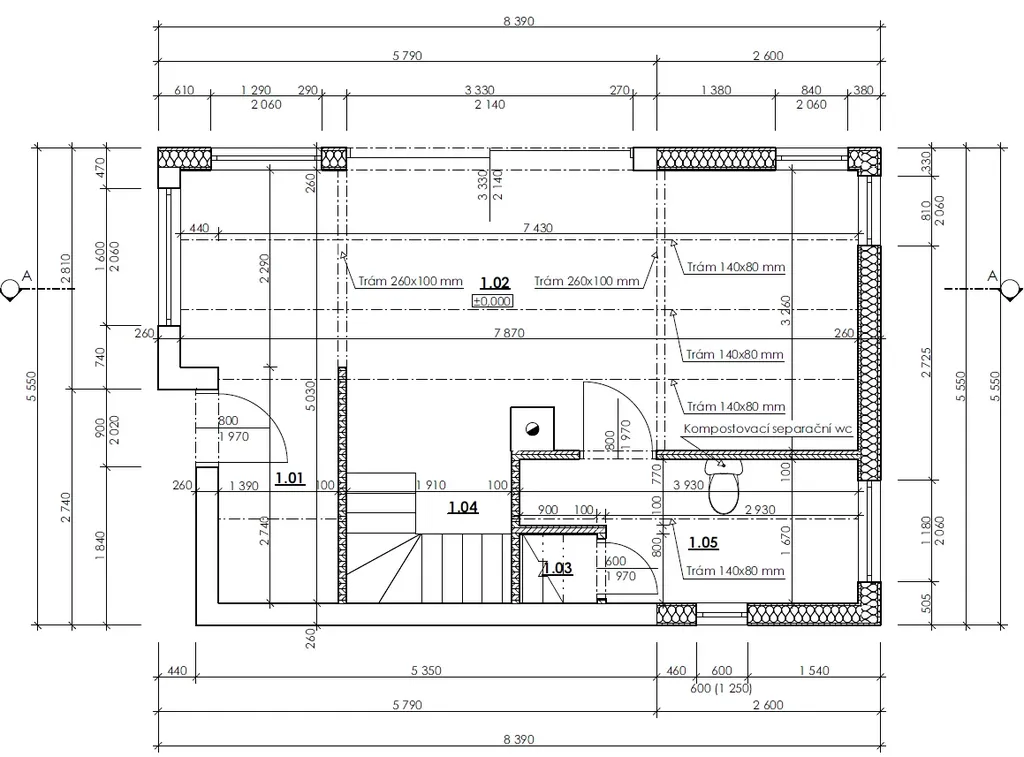
Dispozice: 1+kk s podkrovní ložnicí | užitná plocha 53,57 m²

Přízemí: obývací prostor s kuchyňskou linkou, koupelna se sprchovým koutem a WC, schodiště

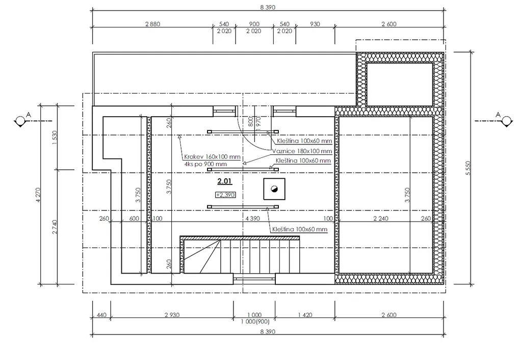
Podkroví: ložnice s manželskou postelí a výhledem přímo na skály

Vybavení: krbová kamna na dřevo, plynový vařič, lednice, kávovar, ohniště, plynový gril, wifi, parkování u chaty, molo u přehrady.

Součástí nemovitosti je soukromá sudová sauna s kruhovým oknem s přímým výhledem na skalní stěny — kamna na dřevo, lavice pro 4 osoby.

Chata funguje v ostrovním provozu. Elektrická energie je zajištěna solárními panely s akumulátory. Užitková voda je čerpána z vlastního vrtu. Odpadní voda je řešena přes vlastní čistírnu odpadních vod. Pitná voda není přivedena do objektu.

Součástí chaty je pozemek o výměře 2 828 m², který je ze značné části svažitý, což odpovídá charakteru skalnaté přírodní lokality nad přehradou.

Chata se nachází v klidné přírodní lokalitě nedaleko obce Štěchovice, cca 30 km od Prahy. V okolí jsou příležitosti k turistice, cyklistice a vodáctví na Vltavě.
Příjezd k chatě je po lesní cestě. Přesná adresa a GPS souřadnice poskytnuty po dohodě.

Pro domluvení termínu prohlídky nás neváhejte kdykoli kontaktovat.

Parametry nemovitosti

Cena
Cena na vyžádání Spočítat hypotéku
Aktualizováno
26. 2. 2026
Adresa
Krňany, Teletín
Stavba
Dřevěná
Stav objektu
Po rekonstrukci
Užitná plocha
54 m2

Kontaktovat makléře

Máte zájem o tuto nemovistost?

Tímto, v souladu s nařízením Evropského parlamentu a Rady (EU) 2016/679, v platném znění, prohlašuji, že mi je alespoň 16 let a uděluji tak svůj souhlas se zpracováním zadaných údajů (jméno, telefon, e-mail, ip adresa) společnosti B3 Technology, s.r.o., IČ: 07330600, se sídlem Novostavby 126/23, 435 11 Lom (správce dat), za účelem předání dotazu z tohoto formuláře Vámi vybranému inzerentovi a zpětného kontaktování mé osoby. Osobní údaje bude správce zpracovávat manuálně i automaticky přímo prostřednictvím svých zaměstnanců. Informace předané tímto formulářem budou uloženy v databázi správce maximálně po dobu 10 let. Odvolání souhlasu s uložením a zpracováním poskytnutých dat lze e-mailem na info@videobydleni.cz. V případě podezření na neoprávněné použití Vámi poskytnutých údajů máte právo předat podnět k šetření Úřadu pro ochranu osobních údajů. Více informací
Chystáte se prodat nemovitost?
Pomůžeme Vám!

Inzerát si prohlédlo 0 lidí

Prodejce

Bc. Jakub Tupý

Bc. Jakub Tupý

Hlídací pes

Chcete dostávat emailem podobné nabídky prodeje ostatních nemovitostí v Krňanech?


Nevyhovuje Vám typ nemovitosti? Podívejte se na jiné kategorie ostatních.


Vybrané články z našeho blogu