Pronájem bytu 1+kk, Praha - Stodůlky, Holýšovská, 34 m2

Holýšovská, Praha, Stodůlky

16 500 Kč /za měsíc Získejte výhodnou HYPOTÉKU

(bez poplatků, + provize RK)

Prémioví partneři v Praze 5

Stěhovací služby

Výkup a prodej starého nábytku

Informace k bytu

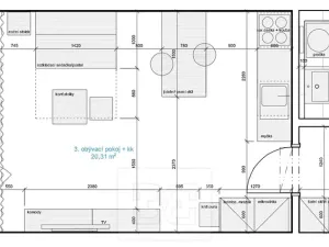
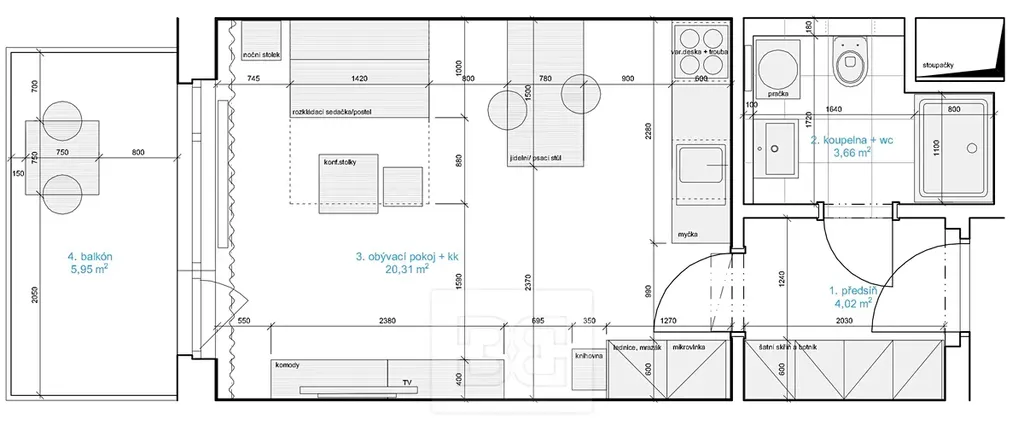
Volné od 1/5/2026. Nabízíme Vám krásný, částečně vybavený byt 1+kk/B/PS situovaný v 9.podlaží novostavby v Praze 5 – Stodůlky, ul. Holýšovská č.or.4. Bytová jednotka s celkovou plochou 28m2 se sestává z předsíně (vybavená skříní se šatním systémem), koupelny, jež je vybavena pračkou, sprchovým koutem, umyvadlem se skříňkou a zrcadlem. Obytný prostor je vybaven kuchyňskou linkou (vybavena sklokeramickým dvouvařičem, pečící a mikrovlnnou troubou, lednice s mrazákem, myčka), klimatizací a dalšími movitými věcmi - viz.foto (vyjma sedací soupravy, modré skříňky/TV stolku, stolu a židlí). Z obývacího pokoje se dostane na balkon o ploše 6m2 nabízející hezký výhled na okolí.. Poplatky činí 2.000,- Kč + spotřeba elektrické energie, jež bude převedena na nájemce. K bytu náleží parkovací stání a sklep. Kauce činí 18.500,- Kč, provize RK 18.500,- Kč + DPH.

Jedná se o velmi dobře dostupnou lokalitu, 5 minut od metra B Luka s veškerou občanskou vybaveností v pěší vzdálenosti.

V případě zájmu o tuto nemovitost prosíme o uvedení základních informací (zda Vám vyhovuje počátek nájmu; počet osob, které by byt obývaly, zaměstnání, zda máte domácího mazlíčka).

Dle požadavků majitele musí mít nájemce trvalý pobyt v ČR a rejstřík exekucí/trestů/insolvencí bez záznamu. Dlouhodobý pronájem vítán.

Parametry bytu

Cena
16 500 Kč /za měsíc
Poznámka k ceně
bez poplatků, + provize RK
Aktualizováno
20. 2. 2026
Adresa
Holýšovská, Praha, Stodůlky
ID
N08856
Stavba
Skeletová
Stav objektu
Novostavba
Patro
9. z 10
Vybaveno
Částečně
Vlastnictví
Osobní
Užitná plocha
34 m2
Třída energetické náročnosti
B - Velmi úsporná
Ukazatel energetické náročnosti
61 kWh/m2 za rok
Balkon
Sklep
Lodžie
Terasa
Výtah
Parkování

Kontaktovat makléře

Máte zájem o tento byt?

Tímto, v souladu s nařízením Evropského parlamentu a Rady (EU) 2016/679, v platném znění, prohlašuji, že mi je alespoň 16 let a uděluji tak svůj souhlas se zpracováním zadaných údajů (jméno, telefon, e-mail, ip adresa) společnosti B3 Technology, s.r.o., IČ: 07330600, se sídlem Novostavby 126/23, 435 11 Lom (správce dat), za účelem předání dotazu z tohoto formuláře Vámi vybranému inzerentovi a zpětného kontaktování mé osoby. Osobní údaje bude správce zpracovávat manuálně i automaticky přímo prostřednictvím svých zaměstnanců. Informace předané tímto formulářem budou uloženy v databázi správce maximálně po dobu 10 let. Odvolání souhlasu s uložením a zpracováním poskytnutých dat lze e-mailem na info@videobydleni.cz. V případě podezření na neoprávněné použití Vámi poskytnutých údajů máte právo předat podnět k šetření Úřadu pro ochranu osobních údajů. Více informací
Chystáte se prodat nemovitost?
Pomůžeme Vám!

Inzerát si prohlédlo 0 lidí

Prodejce

Bc. Robert Poppl

Bc. Robert Poppl

Hlídací pes

Chcete dostávat emailem podobné nabídky pronájmu bytů 1+kk v Praze 5?

Podobné nemovitosti


Nevyhovuje Vám typ bytu? Podívejte se na jiné kategorie bytů.


Vybrané články z našeho blogu