Pronájem bytu 2+kk, Pardubice, Staňkova, 58 m2

Staňkova, Pardubice, Zelené Předměstí

15 000 Kč /za měsíc Získejte výhodnou HYPOTÉKU

(+ služby a elektřina)

Prémioví partneři v Pardubicích

Informace k bytu

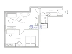
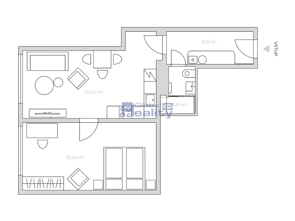
4712 - Pronájem velmi pěkně zrekonstruovaného bytu 2+kk, o výměře 58,6 m2, který je umístěn ve druhém patře zděného bytového domu.
Po kompletní rekonstrukci i celý bytový dům.
Dispozice bytu: vstupní chodba, prostorný obývací pokoj s kuchyňským koutem, ložnice, koupelna a WC. Byt je vybaven kuchyňskou linkou včetně elektrospotřebičů.
Byt se nachází v lokalitě se skvělou dostupností do centra. V okolí naleznete veškerou občanskou vybavenost, ať už MHD, školy či obchody, k nastěhování ihned.

V ceně nájmu nejsou zahrnuty zálohy na služby ve výši 500,-Kč/měsíc + elektřina bude přepsána na nájemce.


Podrobnější informace a prohlídky u makléře.

Parametry bytu

Cena
15 000 Kč /za měsíc
Poznámka k ceně
+ služby a elektřina
Aktualizováno
20. 2. 2026
Adresa
Staňkova, Pardubice, Zelené Předměstí
ID
4712
Stavba
Cihlová
Stav objektu
Velmi dobrý
Patro
3. z 4
Vybaveno
Ne
Lokalita objektu
Centrum obce
Vlastnictví
Osobní
Užitná plocha
58 m2
Podlahová plocha
65 m2
Třída energetické náročnosti
G - Mimořádně nehospodárná
Odpad
Veřejná kanalizace
Voda
Vodovod
Topné těleso
Radiátory
Zdroj topení
Elektrokotel
Zdroj teplé vody
Bojler - elektro

Kontaktovat makléře

Máte zájem o tento byt?

Tímto, v souladu s nařízením Evropského parlamentu a Rady (EU) 2016/679, v platném znění, prohlašuji, že mi je alespoň 16 let a uděluji tak svůj souhlas se zpracováním zadaných údajů (jméno, telefon, e-mail, ip adresa) společnosti B3 Technology, s.r.o., IČ: 07330600, se sídlem Novostavby 126/23, 435 11 Lom (správce dat), za účelem předání dotazu z tohoto formuláře Vámi vybranému inzerentovi a zpětného kontaktování mé osoby. Osobní údaje bude správce zpracovávat manuálně i automaticky přímo prostřednictvím svých zaměstnanců. Informace předané tímto formulářem budou uloženy v databázi správce maximálně po dobu 10 let. Odvolání souhlasu s uložením a zpracováním poskytnutých dat lze e-mailem na info@videobydleni.cz. V případě podezření na neoprávněné použití Vámi poskytnutých údajů máte právo předat podnět k šetření Úřadu pro ochranu osobních údajů. Více informací
Chystáte se prodat nemovitost?
Pomůžeme Vám!

Inzerát si prohlédlo 0 lidí

Prodejce

Mgr. Nela Hrnčířová

Mgr. Nela Hrnčířová

Hlídací pes

Chcete dostávat emailem podobné nabídky pronájmu bytů 2+kk v Pardubicích?

Podobné nemovitosti


Nevyhovuje Vám typ bytu? Podívejte se na jiné kategorie bytů.


Vybrané články z našeho blogu