Pronájem bytu 3+1, Praha - Vršovice, Bělocerkevská, 81 m2

Bělocerkevská, Praha, Vršovice

28 000 Kč /za měsíc Získejte výhodnou HYPOTÉKU

(+ 6.400,-Kč/měs. poplatky (3.os.) + převod elektroměru a plynoměru, vratná kauce 1.nájem, provize rk 1.nájem)

Prémioví partneři v Praze 10

Stěhovací služby

Výkup a prodej starého nábytku

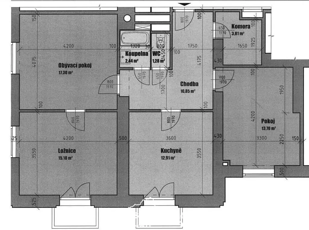
Informace k bytu

Nabízíme pronájem prostorného, světlého bytu 3+1 o velikosti 81 m2 ve třetím patře s výtahem v udržovaném cihlovém činžovním domě na Praze 10 Vršovice v Bělocerkevské ulici.
K příslušenství patří dva balkony (v kuchyni a ložnici), velká komora v bytě, která může sloužit jako sklep, nebo jako pracovna. Dva pokoje ze tří jsou neprůchozí a nabízí možnost spolubydlení. V průchozím obývacím pokoji je zánovní sedací souprava, která je součástí pronájmu. Orientace je na jihozápad - celý den sluníčko.
Byt je čerstvě po instalaci nové kuchyňské linky z IKEA s myčkou, elektrickou troubou, plynovou čtyřplotýnkou a novou lednicí s mrazákem. Také je nově vymalováno a došlo k repasi parketových podlah. V koupelně je vana a pračka, wc je samostatné s umyvadlem. Možnost vysokorychlostního internetu. Poplatky jsou uvedené na tři osoby a zahrnují veškeré platby včetně topení a vody + převod elektřiny (cca 1000,-Kč/měs) + plyn (cca 300,-Kč/měs).
Za domem je parková úprava s možností posezení, před domem zastávka autobusu s dojezdem na metro A Želivského do pěti minut. Byt je určen k dlouhodobému pronájmu, nastěhování možné ihned.

Parametry bytu

Cena
28 000 Kč /za měsíc
Poznámka k ceně
+ 6.400,-Kč/měs. poplatky (3.os.) + převod elektroměru a plynoměru, vratná kauce 1.nájem, provize rk 1.nájem
Aktualizováno
21. 2. 2026
Adresa
Bělocerkevská, Praha, Vršovice
ID
N05995
Stavba
Smíšená
Stav objektu
Velmi dobrý
Patro
4. z 5
Vybaveno
Ne
Vlastnictví
Osobní
Užitná plocha
81 m2
Podlahová plocha
81 m2
Třída energetické náročnosti
G - Mimořádně nehospodárná
Balkon
Výtah

Kontaktovat makléře

Máte zájem o tento byt?

Tímto, v souladu s nařízením Evropského parlamentu a Rady (EU) 2016/679, v platném znění, prohlašuji, že mi je alespoň 16 let a uděluji tak svůj souhlas se zpracováním zadaných údajů (jméno, telefon, e-mail, ip adresa) společnosti B3 Technology, s.r.o., IČ: 07330600, se sídlem Novostavby 126/23, 435 11 Lom (správce dat), za účelem předání dotazu z tohoto formuláře Vámi vybranému inzerentovi a zpětného kontaktování mé osoby. Osobní údaje bude správce zpracovávat manuálně i automaticky přímo prostřednictvím svých zaměstnanců. Informace předané tímto formulářem budou uloženy v databázi správce maximálně po dobu 10 let. Odvolání souhlasu s uložením a zpracováním poskytnutých dat lze e-mailem na info@videobydleni.cz. V případě podezření na neoprávněné použití Vámi poskytnutých údajů máte právo předat podnět k šetření Úřadu pro ochranu osobních údajů. Více informací
Chystáte se prodat nemovitost?
Pomůžeme Vám!

Inzerát si prohlédlo 1 lidí

Prodejce

Patrik Kubeš

Patrik Kubeš

Hlídací pes

Chcete dostávat emailem podobné nabídky pronájmu bytů 3+1 v Praze 10?

Podobné nemovitosti


Nevyhovuje Vám typ bytu? Podívejte se na jiné kategorie bytů.


Vybrané články z našeho blogu