Pronájem kanceláře, Jindřichův Hradec, Pravdova, 14 m2 (ID: 4187902)

Pravdova, Jindřichův Hradec II

Prodáno
2 040 Kč /za měsíc Získejte výhodnou HYPOTÉKU

(Záloha na dodávku služeb a energií +1.880,- Kč + DPH/měsíc. Vratná kauce 3.920,- Kč. Provize pro RK 4.000,- Kč.)

Prémioví partneři v Jindřichově Hradci

Výkup a prodej starého nábytku

Informace k nemovitosti

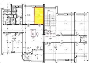
Pronájem slunné kanceláře ve 3. nadzemním podlaží kancelářské budovy s výtahem v Pravdově ulici, Jindřichův Hradec.
Podlahová plocha 14 m2 nabízí jednu místnost orientovanou na jihovýchod. Dále k užívání společné sociální zařízení a společná kuchyňka na patře. Možnost využití doplňkových služeb. Parkovací místo na pozemku přes ulici za příplatek 400,- Kč/měsíc dle volné kapacity, dále úklid kanceláře za příplatek 600,- Kč/měsíc.
Záloha na dodávku služeb a energií +1.880,- Kč + DPH/měsíc. Vratná kauce 3.920,- Kč. Provize pro RK 4.000,- Kč.
Pronajímatel si vyhrazuje výběr nájemce dle svých vlastních kritérií.
Ihned k užívání.

Parametry nemovitosti

Stav
Prodáno
Cena
2 040 Kč /za měsíc
Poznámka k ceně
Záloha na dodávku služeb a energií +1.880,- Kč + DPH/měsíc. Vratná kauce 3.920,- Kč. Provize pro RK 4.000,- Kč.
Aktualizováno
21. 2. 2026
Adresa
Pravdova, Jindřichův Hradec II
ID
2025118
Stavba
Cihlová
Stav objektu
Dobrý
Patro
3. z 5
Lokalita objektu
Rušná část obce
Užitná plocha
14 m2
Podlahová plocha
14 m2
Třída energetické náročnosti
G - Mimořádně nehospodárná
Elektřina
230V
Odpad
Veřejná kanalizace
Topení
Ústřední plynové
Komunikace
Asfaltová
Doprava
Vlak, Silnice, MHD
Voda
Vodovod
Výtah
Bezbarierový přístup

Kontaktovat makléře

Máte zájem o tuto nemovistost?

Tímto, v souladu s nařízením Evropského parlamentu a Rady (EU) 2016/679, v platném znění, prohlašuji, že mi je alespoň 16 let a uděluji tak svůj souhlas se zpracováním zadaných údajů (jméno, telefon, e-mail, ip adresa) společnosti B3 Technology, s.r.o., IČ: 07330600, se sídlem Novostavby 126/23, 435 11 Lom (správce dat), za účelem předání dotazu z tohoto formuláře Vámi vybranému inzerentovi a zpětného kontaktování mé osoby. Osobní údaje bude správce zpracovávat manuálně i automaticky přímo prostřednictvím svých zaměstnanců. Informace předané tímto formulářem budou uloženy v databázi správce maximálně po dobu 10 let. Odvolání souhlasu s uložením a zpracováním poskytnutých dat lze e-mailem na info@videobydleni.cz. V případě podezření na neoprávněné použití Vámi poskytnutých údajů máte právo předat podnět k šetření Úřadu pro ochranu osobních údajů. Více informací
Chystáte se prodat nemovitost?
Pomůžeme Vám!

Inzerát si prohlédlo 0 lidí

Prodejce

Filip Vereš

Filip Vereš

Hlídací pes

Chcete dostávat emailem podobné nabídky pronájmu kanceláří v Jindřichově Hradci?

Podobné nemovitosti


Nevyhovuje Vám typ nemovitosti? Podívejte se na jiné kategorie komerčních.


Vybrané články z našeho blogu