Prodej bytu 2+kk, Praha - Chodov, Bartůňkova, 39 m2 (ID: 4187987)

Bartůňkova, Praha, Chodov

2 890 000 Kč /za nemovitost HYPOTÉKA od 12 917 Kč /za měsíc

(+ anuita, včetně právního servisu)

Prémioví partneři v Praze 4

Stěhovací služby

Výkup a prodej starého nábytku

Informace k bytu

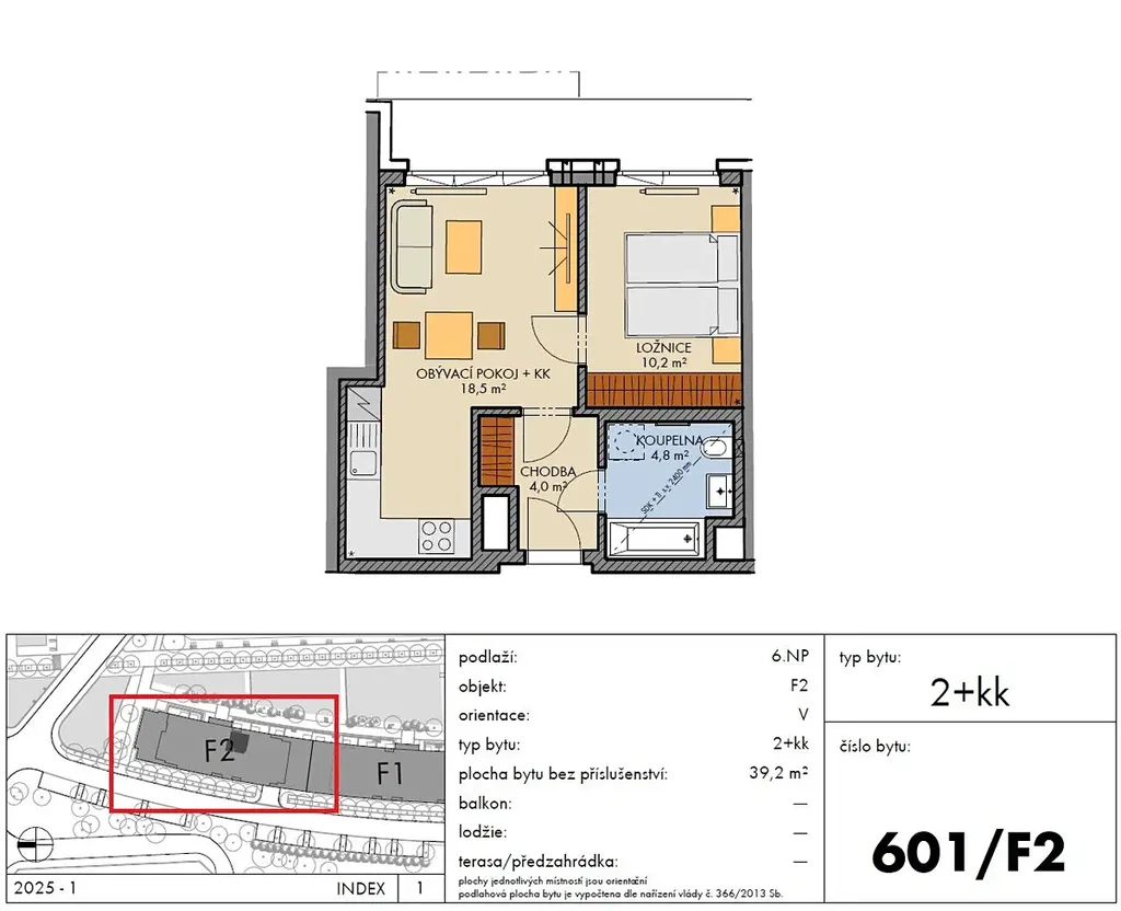
Nabízíme postoupení nového družstevního bytu 2+kk v projektu Nový Opatov II (dům F2) úspěšného developera FINEP v blízkosti ulice Chilská, Praha - Chodov.

Bytová jednotka 2+kk o velikosti 39,2 m2 se nachází v 6. nadzemním podlaží (z celkových dvanácti) s orientací na východ.

Dispozice bytu: obývací pokoj s kuchyňským koutem, ložnice, koupelna s WC, chodba.

Cena za postoupení bytu: 2 890 000 Kč (zaplatíte nyní z vlastních zdrojů)
Doplatek anuity za byt: 5 444 091 Kč (po kolaudaci a převzetí bytu)
Celková cena bytu = cena za postoupení plus doplatek anuity.

Nepotřebujete hypotéku, žádné schvalování bankou, bez dokazování příjmu, v jakémkoliv věku.

Anuita se splácí až po převzetí dokončeného bytu (předpoklad kolaudace 09/2028). Nyní zaplatíte pouze cenu za postoupení.

Aktuálně měsíční splátka anuity bytu činí 27 706 Kč.

V době výstavby nelze převést do osobního vlastnictví.

Přímo u stanice metra C - Opatov.
V blízkosti Milíčovský a Kunratický les.
OC Westfield Chodov - pouze jednu stanici metrem.

Kupující nad rámec výše uvedené ceny za postoupení družstevního podílu hradí vstupní poplatek do družstva 15 000 Kč a poplatek za převod družstevního podílu 50 000 Kč.

Parametry bytu

Cena
2 890 000 Kč /za nemovitost Spočítat hypotéku
Poznámka k ceně
+ anuita, včetně právního servisu
Aktualizováno
21. 2. 2026
Adresa
Bartůňkova, Praha, Chodov
ID
1255
Stavba
Cihlová
Stav objektu
Novostavba
Patro
6. z 12
Vybaveno
Ne
Vlastnictví
Družstevní
Užitná plocha
39 m2
Podlahová plocha
39 m2
Třída energetické náročnosti
B - Velmi úsporná
Odpad
Veřejná kanalizace
Topení
Ústřední dálkové
Komunikace
Asfaltová
Telekomunikace
Internet
Voda
Vodovod
Garáž
Lodžie
Výtah
Bezbarierový přístup
Převod do OV
Parkování

Kontaktovat makléře

Máte zájem o tento byt?

Tímto, v souladu s nařízením Evropského parlamentu a Rady (EU) 2016/679, v platném znění, prohlašuji, že mi je alespoň 16 let a uděluji tak svůj souhlas se zpracováním zadaných údajů (jméno, telefon, e-mail, ip adresa) společnosti B3 Technology, s.r.o., IČ: 07330600, se sídlem Novostavby 126/23, 435 11 Lom (správce dat), za účelem předání dotazu z tohoto formuláře Vámi vybranému inzerentovi a zpětného kontaktování mé osoby. Osobní údaje bude správce zpracovávat manuálně i automaticky přímo prostřednictvím svých zaměstnanců. Informace předané tímto formulářem budou uloženy v databázi správce maximálně po dobu 10 let. Odvolání souhlasu s uložením a zpracováním poskytnutých dat lze e-mailem na info@videobydleni.cz. V případě podezření na neoprávněné použití Vámi poskytnutých údajů máte právo předat podnět k šetření Úřadu pro ochranu osobních údajů. Více informací
Chystáte se prodat nemovitost?
Pomůžeme Vám!

Inzerát si prohlédlo 0 lidí

Prodejce

Tomáš Kučera

Tomáš Kučera

Hlídací pes

Chcete dostávat emailem podobné nabídky prodeje bytů 2+kk v Praze 4?

Podobné nemovitosti


Nevyhovuje Vám typ bytu? Podívejte se na jiné kategorie bytů.


Vybrané články z našeho blogu