Prodej bytu 3+kk, Šlapanice, 96 m2 (ID: 4188050)

Šlapanice

12 378 787 Kč /za nemovitost HYPOTÉKA od 55 326 Kč /za měsíc

(včetně DPH, včetně poplatků, včetně provize, včetně právního servisu)

Prémioví partneři v Šlapanicích

Informace k bytu

V rámci projektu Nové Šlapanice, který vyrůstá na okraji města Šlapanic si Vám dovolujeme představit výjimečné a na danou lokalitu ojedinělé bydlení.
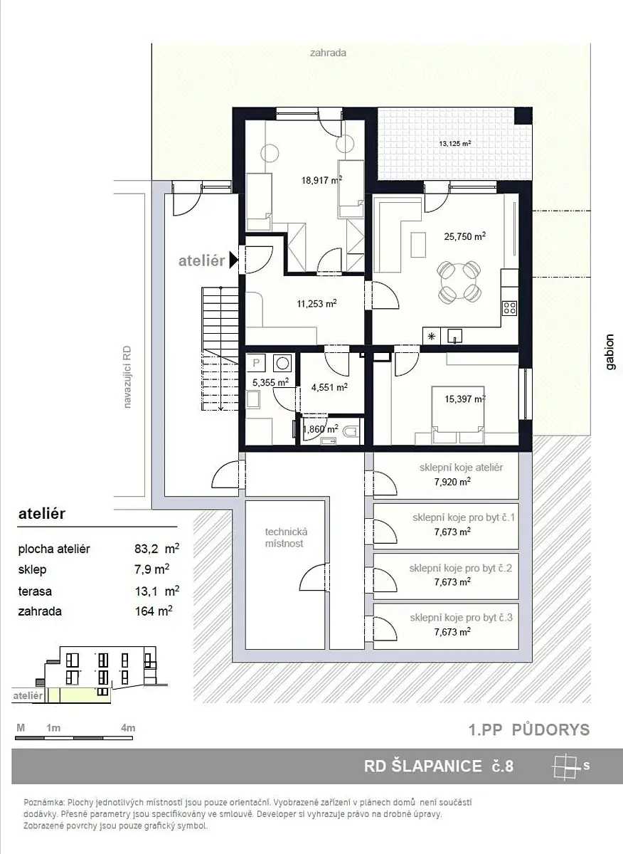
Představujeme Vám 3.etapu, která je zaměřena na výstavbu 4 viladomů, se 3 bytovými jednotkami a ateliérem. Je to ideální místo pro ty, kteří hledají kvalitní, moderní, prostorné a dispozičně chytře řešené bydlení.
V tomto projektu nabízíme k prodeji ateliér 3+KK s terasou 13,12m2, zahradou 164m2, sklepem 7,9m2 a 1 parkovacím stáním vše je součástí kupní ceny.
Možnost dokoupení dalšího parkovacího stání za cenu 300.000,-Kč.

První tři kupující v tomto projektu mají BONUS - KUCHYŃSKOU LINKU VČETNĚ VŠECH SPOTŘEBIČŮ Zn. ELECTROLUX V HODNOTĚ 650.000,-Kč ZDARMA.
V celém bytě jsou venkovní žaluzie.

Viladům č.8 na ulici Stanislava Hanzla
Byt č.3 o celkové ploše je umístěn v 1.PP

Dispozice: chodba 11,25m2, obývací pokoj s kuchyňským koutem 25,75m2, ložnice 18,91m2, dětský pokoj 15,39m2, koupelna se sprchovým koutem včetně WC 6,75m2, technická místnost 5,01m2. Z obývacího pokoje přes terasu o výměře 13,12m2 na zahradu 164m2.


Standarty bytu, které jsou součástí kupní ceny:
- podlahy vinyl, keramická dlažba
- koupelna - sanitární technika, 1x umyvadlo včetně baterie, sprchový kout, včetně WC, zrcadla, obklady - mramor
- interiérové dveře + obložkové zárubně, vstupní dveře
- podlahové vytápění, topné těleso
- venkovní světla
- kuchyňská linka

Samotná lokalita nabízí širokou škálu pracovních možností a veškerou potřebnou občanskou vybavenost a výbornou dojezdnost díky dálnici D1 a D2. Také zde v docházkové vzdálenosti nalezneme školu, školku, řadu obchodů, restaurací a služeb, trolejbusovou zastávku, ale především vlakové nádraží, z kterého jste na Hlavním vlakovém nádraží v Brně va 15 min.
Dokončení bytů je plánované na 3Q roku 2026. Výhodou je model financování nemovitosti.
Pokud by Vás nabídka tohoto či jakéhokoliv jiného bytu v tomto projektu zaujala, kontaktujte prosím makléře, u kterého se dozvíte více.
Děláme moderní bydlení dostupnější.

Parametry bytu

Cena
12 378 787 Kč /za nemovitost Spočítat hypotéku
Poznámka k ceně
včetně DPH, včetně poplatků, včetně provize, včetně právního servisu
Aktualizováno
21. 2. 2026
Adresa
Šlapanice
ID
00021
Stavba
Cihlová
Stav objektu
Ve výstavbě
Patro
1. z 2
Vybaveno
Ne
Lokalita objektu
Klidná část obce
Vlastnictví
Osobní
Užitná plocha
96 m2
Podlahová plocha
104 m2
Plocha zahrady
157 m2
Třída energetické náročnosti
B - Velmi úsporná
Ukazatel energetické náročnosti
73 kWh/m2 za rok
Sklep
Terasa
Výtah
Parkování

Kontaktovat makléře

Realitní kancelář

LUX Real s.r.o

Moravské náměstí 754/13, Brno

Chystáte se prodat nemovitost?
Pomůžeme Vám!

Máte zájem o tento byt?

Tímto, v souladu s nařízením Evropského parlamentu a Rady (EU) 2016/679, v platném znění, prohlašuji, že mi je alespoň 16 let a uděluji tak svůj souhlas se zpracováním zadaných údajů (jméno, telefon, e-mail, ip adresa) společnosti B3 Technology, s.r.o., IČ: 07330600, se sídlem Novostavby 126/23, 435 11 Lom (správce dat), za účelem předání dotazu z tohoto formuláře Vámi vybranému inzerentovi a zpětného kontaktování mé osoby. Osobní údaje bude správce zpracovávat manuálně i automaticky přímo prostřednictvím svých zaměstnanců. Informace předané tímto formulářem budou uloženy v databázi správce maximálně po dobu 10 let. Odvolání souhlasu s uložením a zpracováním poskytnutých dat lze e-mailem na info@videobydleni.cz. V případě podezření na neoprávněné použití Vámi poskytnutých údajů máte právo předat podnět k šetření Úřadu pro ochranu osobních údajů. Více informací
Chystáte se prodat nemovitost?
Pomůžeme Vám!

Inzerát si prohlédlo 0 lidí

Prodejce

Jana Krejčí

Jana Krejčí

Hlídací pes

Chcete dostávat emailem podobné nabídky prodeje bytů 3+kk v Šlapanicích (okr. Brno-venkov)?

Podobné nemovitosti


Nevyhovuje Vám typ bytu? Podívejte se na jiné kategorie bytů.


Vybrané články z našeho blogu