Soccer reality

Prodej bytu 2+kk, Praha - Vysočany, Kolbenova, 49 m2

Kolbenova, Praha, Vysočany

10 990 000 Kč /za nemovitost HYPOTÉKA od 49 119 Kč /za měsíc
Prémioví partneři v Praze 9

Stěhovací služby

Výkup a prodej starého nábytku

Informace k bytu

Nabízíme k prodeji designový loftový byt 2+kk v projektu Lofty Kolbenova, Praha 9. Byt se nachází ve 3. nadzemním podlaží na jižní straně budovy, hned u výtahu. Velkoformátová okna jsou orientována na západ, díky čemuž je byt velmi světlý zejména v odpoledních a večerních hodinách.

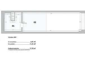
Dominantou bytu je velkorysá výška stropu cca 5 metrů a loftové řešení s galerií. Spodní podlaží tvoří vstupní chodba s vestavěnými skříněmi na míru, obývací pokoj s kuchyní, samostatné WC a vstup na prostorný hluboký balkon. V horní části bytu se nachází ložnice, koupelna s pračkou a druhé WC. Byt tak nabízí komfort dvou toalet.

Byt se prodává kompletně vybavený nábytkem a je připraven k okamžitému nastěhování nebo pronájmu. Součástí je nová kuchyňská linka včetně spotřebičů a lednice, klimatizace, rekuperace, podlahové vytápění a dřevěná podlaha v dekoru běleného dubu. V celém bytě je instalováno designové osvětlení, na oknech jsou dálkově ovládané záclony a předokenní žaluzie.

Velkým benefitem je prostorný balkon vhodný pro relax i posezení.

Projekt Lofty Kolbenova nabízí moderní bydlení s industriálním charakterem a skvělou dopravní dostupností – metro B (Kolbenova) a zastávka tramvaje (6, 10, 12, 17, 31) v pěší vzdálenosti a kompletní občanská vybavenost v okolí.

Byt je ideální jak pro vlastní bydlení, tak jako investice k pronájmu.

Parametry bytu

Cena
10 990 000 Kč /za nemovitost Spočítat hypotéku
Aktualizováno
23. 2. 2026
Adresa
Kolbenova, Praha, Vysočany
ID
972836
Stavba
Smíšená
Stav objektu
Novostavba
Patro
3. z 6
Vlastnictví
Osobní
Užitná plocha
49 m2
Podlahová plocha
53 m2
Třída energetické náročnosti
B - Velmi úsporná
Ukazatel energetické náročnosti
75 kWh/m2 za rok
Elektřina
230V
Odpad
Veřejná kanalizace
Komunikace
Asfaltová
Telekomunikace
Telefon, Internet, Kabelová televize
Voda
Vodovod
Balkon
Výtah
Bezbarierový přístup

Kontaktovat makléře

Máte zájem o tento byt?

Tímto, v souladu s nařízením Evropského parlamentu a Rady (EU) 2016/679, v platném znění, prohlašuji, že mi je alespoň 16 let a uděluji tak svůj souhlas se zpracováním zadaných údajů (jméno, telefon, e-mail, ip adresa) společnosti B3 Technology, s.r.o., IČ: 07330600, se sídlem Novostavby 126/23, 435 11 Lom (správce dat), za účelem předání dotazu z tohoto formuláře Vámi vybranému inzerentovi a zpětného kontaktování mé osoby. Osobní údaje bude správce zpracovávat manuálně i automaticky přímo prostřednictvím svých zaměstnanců. Informace předané tímto formulářem budou uloženy v databázi správce maximálně po dobu 10 let. Odvolání souhlasu s uložením a zpracováním poskytnutých dat lze e-mailem na info@videobydleni.cz. V případě podezření na neoprávněné použití Vámi poskytnutých údajů máte právo předat podnět k šetření Úřadu pro ochranu osobních údajů. Více informací
Chystáte se prodat nemovitost?
Pomůžeme Vám!

Inzerát si prohlédlo 0 lidí

Prodejce

Erika Mezková

Erika Mezková

Hlídací pes

Chcete dostávat emailem podobné nabídky prodeje bytů 2+kk v Praze 9?

Top nabídky

Podobné nemovitosti


Nevyhovuje Vám typ bytu? Podívejte se na jiné kategorie bytů.


Vybrané články z našeho blogu