Prodej rodinného domu, Havířov, Farská, 106 m2

Farská, Havířov

5 990 000 Kč /za nemovitost HYPOTÉKA od 26 772 Kč /za měsíc
Prémioví partneři v Havířově

Informace k domu

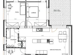
Prostorné rodinné bydlení Grandis: Váš domov na klíč!Hledáte skutečně velkorysý prostor, moderní design a bydlení bez kompromisů.
Představujeme vám rodinný dům Grandis (v dokumentaci RD 120) – patrový dům s čistými liniemi a pultovou střechou, který nabízí luxusní dispozice pro celou rodinu.
Hlavní parametry domu Grandis:Dispozice 5+kk: Ideální řešení pro početnou rodinu se čtyřmi ložnicemi a velkým obývacím pokojem.
Užitná plocha 120 m²: Velkorysý vnitřní prostor navržený pro maximální komfort a soukromí.
Chytré využití plochy: Zastavěná plocha činí pouze 78 m², což díky patrovému řešení šetří místo na vašem pozemku.
Vybavení a technologie: V ceně je zahrnuta klimatizace, příprava pro krbová kamna (třísložkový komín), moderní podlahy, obklady a kompletní sanita.
Servis bez starostí: Od projektové dokumentace přes stavební povolení až po finální kolaudaci – vše zajistíme za vás.
Technické specifikace:
Konstrukce: Kvalitní zdicí systém z pórobetonu.
Střecha: Moderní pultová střecha se sklonem 5 stupňů
Výška hřebene: 6,8 m.
Orientace: Variabilní možnosti orientace vstupu (sever/západ).Cena domu na klíč: 5 990 000 Kč
(Tato cena je za kompletní výstavbu domu na klíč a nezahrnuje cenu pozemku.)

Parametry domu

Cena
5 990 000 Kč /za nemovitost Spočítat hypotéku
Aktualizováno
25. 2. 2026
Adresa
Farská, Havířov
Stavba
Cihlová
Stav objektu
Projekt
Užitná plocha
106 m2

Kontaktovat makléře

Máte zájem o tento dům?

Tímto, v souladu s nařízením Evropského parlamentu a Rady (EU) 2016/679, v platném znění, prohlašuji, že mi je alespoň 16 let a uděluji tak svůj souhlas se zpracováním zadaných údajů (jméno, telefon, e-mail, ip adresa) společnosti B3 Technology, s.r.o., IČ: 07330600, se sídlem Novostavby 126/23, 435 11 Lom (správce dat), za účelem předání dotazu z tohoto formuláře Vámi vybranému inzerentovi a zpětného kontaktování mé osoby. Osobní údaje bude správce zpracovávat manuálně i automaticky přímo prostřednictvím svých zaměstnanců. Informace předané tímto formulářem budou uloženy v databázi správce maximálně po dobu 10 let. Odvolání souhlasu s uložením a zpracováním poskytnutých dat lze e-mailem na info@videobydleni.cz. V případě podezření na neoprávněné použití Vámi poskytnutých údajů máte právo předat podnět k šetření Úřadu pro ochranu osobních údajů. Více informací
Chystáte se prodat nemovitost?
Pomůžeme Vám!

Inzerát si prohlédlo 1 lidí

Prodejce

Daniel Lang

Daniel Lang

Hlídací pes

Chcete dostávat emailem podobné nabídky prodeje rodinných domů v Havířově?

Podobné nemovitosti


Nevyhovuje Vám typ domu? Podívejte se na jiné kategorie domů.


Vybrané články z našeho blogu