Prodej pozemku pro bydlení, Jeníkovice, 2633 m2

Jeníkovice

5 790 000 Kč /za nemovitost HYPOTÉKA od 25 878 Kč /za měsíc
Prémioví partneři v Jeníkovicích

Informace k pozemku

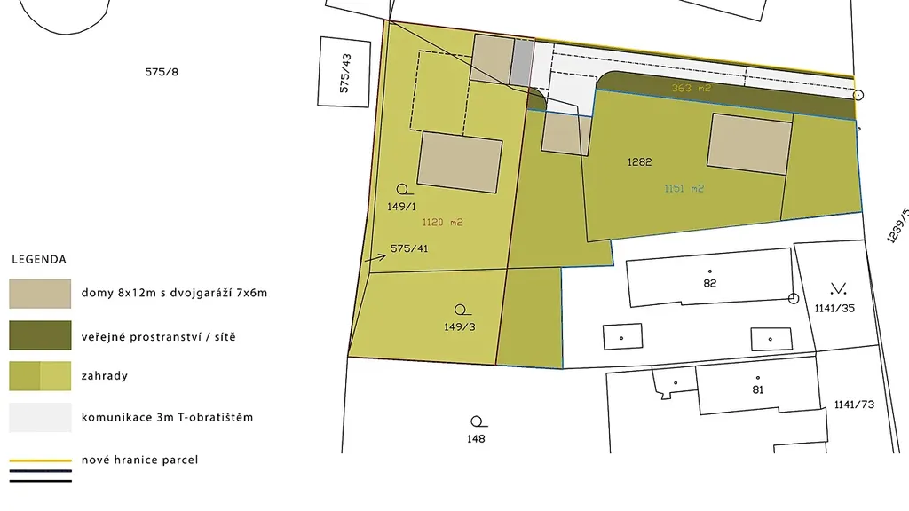
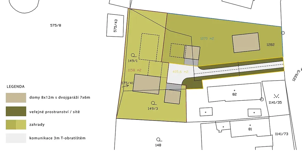
Nabízíme k prodeji stavební pozemek o celkové rozloze 2 633 m2 v obci Jeníkovice, nedaleko Třebechovic pod Orebem a jen 15 minut jízdy od Hradce Králové.

Pozemek se nachází kousek od centra obce, přímo u komunikace protínající obec. Je mírně svažitý, veškeré sítě jsou k dispozici u hranice pozemku s místní komunikací.

Pozemek je dle územního plánu určen k zastavění stavbou rodinného domu s maximálně dvěma nadzemními podlažími + podkroví. Vzhledem k jeho celkové ploše se nabízí i rozdělení na dvě stavební parcely, jehož možné řešení vám také nabízíme.

Obec Jeníkovice u Třebechovic pod Orebem je klidná vesnice s přibližně 520 obyvateli, která nabízí základní občanskou vybavenost včetně mateřské školy, pošty, obchodu s potravinami, knihovny a hostince. V obci fungují aktivní spolky a k dispozici je sportovní hřiště i kulturní zázemí. Dopravní spojení zajišťuje autobusová linka do Třebechovic a Hradce Králové, odkud je dostupná širší infrastruktura včetně základních a středních škol. Jeníkovice jsou ideálním místem pro rodinné bydlení v dosahu města, ale s venkovským klidem.

Více informací vám rádi sdělíme v realitní kanceláři.

Parametry pozemku

Cena
5 790 000 Kč /za nemovitost Spočítat hypotéku
Aktualizováno
24. 2. 2026
Adresa
Jeníkovice
ID
342
Plocha pozemku
2633 m2
Komunikace
Dlážděná
Doprava
Silnice, Autobus

Kontaktovat makléře

Máte zájem o tento pozemek?

Tímto, v souladu s nařízením Evropského parlamentu a Rady (EU) 2016/679, v platném znění, prohlašuji, že mi je alespoň 16 let a uděluji tak svůj souhlas se zpracováním zadaných údajů (jméno, telefon, e-mail, ip adresa) společnosti B3 Technology, s.r.o., IČ: 07330600, se sídlem Novostavby 126/23, 435 11 Lom (správce dat), za účelem předání dotazu z tohoto formuláře Vámi vybranému inzerentovi a zpětného kontaktování mé osoby. Osobní údaje bude správce zpracovávat manuálně i automaticky přímo prostřednictvím svých zaměstnanců. Informace předané tímto formulářem budou uloženy v databázi správce maximálně po dobu 10 let. Odvolání souhlasu s uložením a zpracováním poskytnutých dat lze e-mailem na info@videobydleni.cz. V případě podezření na neoprávněné použití Vámi poskytnutých údajů máte právo předat podnět k šetření Úřadu pro ochranu osobních údajů. Více informací
Chystáte se prodat nemovitost?
Pomůžeme Vám!

Inzerát si prohlédlo 0 lidí

Prodejce

Lukáš Horský

Lukáš Horský

Hlídací pes

Chcete dostávat emailem podobné nabídky prodeje pozemků pro bydlení v Jeníkovicích (okr. Hradec Králové)?

Podobné nemovitosti


Nevyhovuje Vám typ pozemku? Podívejte se na jiné kategorie pozemků.


Vybrané články z našeho blogu