Prodej bytu 2+1, Brno, Bayerova, 122 m2 (ID: 4189632)

Bayerova, Brno, Veveří

11 000 000 Kč /za nemovitost HYPOTÉKA od 49 163 Kč /za měsíc

(včetně provize)

Prémioví partneři v Brně

Informace k bytu

Velkorysý podkrovní byt 2+1 (122 m²) v srdci vyhledávané čtvrti Veveří

Nabízíme k prodeji unikátní, prostornou bytovou jednotku o dispozici 2+1, situovanou v klidné, a přesto centrální části Brna na ulici Bayerova. Tento byt je ideální volbou pro ty, kteří hledají kombinaci bydlení v historické cihlové zástavbě s moderním komfortem podkrovního prostoru a nadstandardní metráží.

Dispozice a interiér

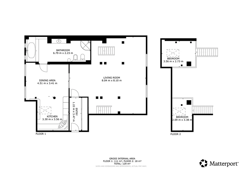
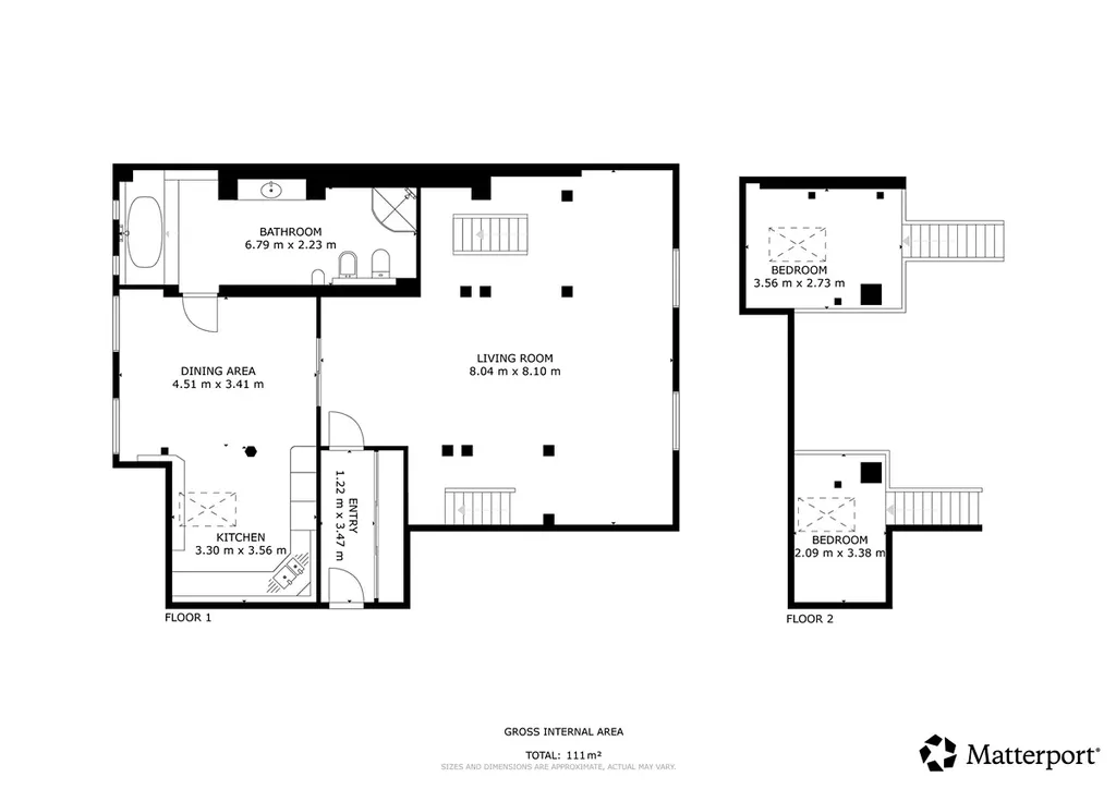
Byt o celkové užitné ploše 122,23 m² se nachází v 7. nadzemním podlaží (půdní vestavba z roku 2004) a nabízí neobvykle vzdušné prostory:
Dominantní obývací pokoj (53,90 m²): Skutečné srdce bytu, které díky své rozloze nabízí nepřeberné možnosti uspořádání.
Prostorná kuchyně s jídelnou (26,95 m²): Místnost s dostatkem prostoru pro velký jídelní stůl i moderní kuchyňskou linku.
Nadstandardní koupelna (18,41 m²): Velkoryse řešená koupelna vybavená vanou, sprchovým koutem, umyvadlem, toaletou i bidetem.
Dvě spací galerie (12,36 m²): Praktické nástavby přístupné po dřevěném schodišti, které efektivně využívají vysoké stropy a mohou sloužit jako ložnice nebo úložné prostory.
Vybavení: Byt je vybaven klimatizací, vestavěnými skříněmi a bezpečnostními vstupními dveřmi. Ohřev vody a vytápění zajišťuje vlastní plynový kotel přímo v bytě.
O domě

Cihlový bytový dům prošel v posledních letech rozsáhlou revitalizací, která zaručuje nízké náklady na údržbu a vysoký komfort bydlení:
Nová zateplená fasáda (2022).
Moderní výtah a nové rozvody elektroinstalace (2012).
Výměna stoupaček, rozvodů vody a odpadů (2009).
Okna jsou kombinací dřevěných EURO oken a střešních oken, která zajišťují dostatek denního světla. K bytu náleží sklepní kóje v 1. PP.
Lokalita – bydlení na dobré adrese
Ulice Bayerova v k.ú. Veveří patří k nejžádanějším brněnským adresám.
Relaxace: Jen pár minut chůze od vyhlášeného parku Lužánky.
Dostupnost: Výborné spojení MHD a docházková vzdálenost do samotného centra města (náměstí Svobody, Moravské náměstí).

Občanská vybavenost: V bezprostředním okolí najdete kavárny, drobné provozovny, restaurace i školy.

Tato nemovitost kombinuje kouzlo širšího centra Brna s klidem a soukromím nejvyššího patra. Je vhodná jak pro náročné vlastní bydlení, tak jako prestižní investiční příležitost.

Parametry bytu

Cena
11 000 000 Kč /za nemovitost Spočítat hypotéku
Poznámka k ceně
včetně provize
Aktualizováno
24. 2. 2026
Adresa
Bayerova, Brno, Veveří
ID
00033
Stavba
Cihlová
Stav objektu
Velmi dobrý
Patro
7.
Vlastnictví
Osobní
Užitná plocha
122 m2
Třída energetické náročnosti
G - Mimořádně nehospodárná
Ukazatel energetické náročnosti
1 kWh/m2 za rok
Balkon
Sklep

Kontaktovat makléře

Realitní kancelář

Prokonzulta.cz

Křenová 299/26, Brno, Trnitá

Chystáte se prodat nemovitost?
Pomůžeme Vám!

Máte zájem o tento byt?

Tímto, v souladu s nařízením Evropského parlamentu a Rady (EU) 2016/679, v platném znění, prohlašuji, že mi je alespoň 16 let a uděluji tak svůj souhlas se zpracováním zadaných údajů (jméno, telefon, e-mail, ip adresa) společnosti B3 Technology, s.r.o., IČ: 07330600, se sídlem Novostavby 126/23, 435 11 Lom (správce dat), za účelem předání dotazu z tohoto formuláře Vámi vybranému inzerentovi a zpětného kontaktování mé osoby. Osobní údaje bude správce zpracovávat manuálně i automaticky přímo prostřednictvím svých zaměstnanců. Informace předané tímto formulářem budou uloženy v databázi správce maximálně po dobu 10 let. Odvolání souhlasu s uložením a zpracováním poskytnutých dat lze e-mailem na info@videobydleni.cz. V případě podezření na neoprávněné použití Vámi poskytnutých údajů máte právo předat podnět k šetření Úřadu pro ochranu osobních údajů. Více informací
Chystáte se prodat nemovitost?
Pomůžeme Vám!

Inzerát si prohlédlo 0 lidí

Prodejce

Tomáš Zvěřina

Tomáš Zvěřina

Hlídací pes

Chcete dostávat emailem podobné nabídky prodeje bytů 2+1 v Brně?

Podobné nemovitosti


Nevyhovuje Vám typ bytu? Podívejte se na jiné kategorie bytů.


Vybrané články z našeho blogu