Prodej chaty, Jasenná, 50 m2

Jasenná

2 100 000 Kč /za nemovitost HYPOTÉKA od 9 386 Kč /za měsíc

(za nemovitost)

Prémioví partneři v Jasenné

Informace k domu

Prodej chaty k trvalému bydlení i rekreaci – Jasenná na Moravě.

Hledáte klidné místo v přírodě, kde si odpočinete od ruchu města, budete moci grilovat, zahradničit nebo jen relaxovat na slunné terase s výhledem do krajiny? Nabízíme k prodeji útulnou, z části zděnou chatu v oblíbené chatové oblasti obce Jasenná na Moravě.

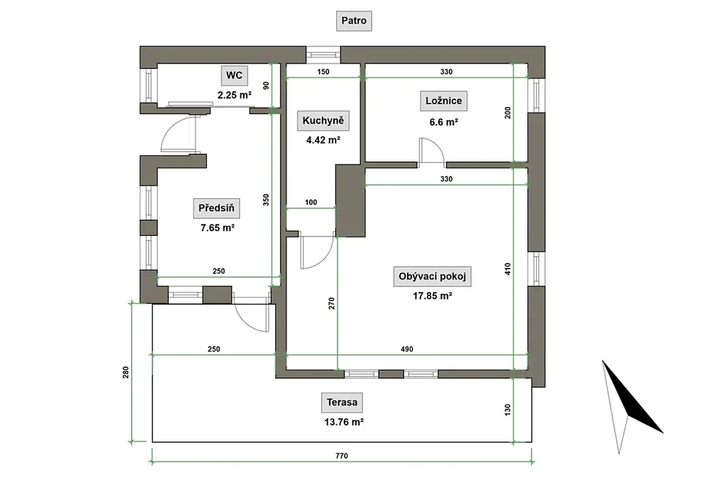
Chata se nachází v prosluněné stráni na vlastním pozemku o celkové výměře 400 m². Zastavěná plocha činí přibližně 50 m². Díky své dispozici je vhodná nejen k rekreaci, ale i k trvalému bydlení.

Dispozice nemovitosti:
V přízemí se nachází skladovací prostor, koupelna, samostatné WC a chodba. V patře je situován obývací pokoj, ložnice, předsíň, druhé WC a menší kuchyně. Dominantou patra je krásná terasa s příjemným výhledem na okolní přírodu.

Součástí pozemku je také ohniště a praktická dřevárka.
Vytápění je zajištěno krbem, který nabízí tradiční a efektivní způsob vytápění s příjemnou atmosférou. Ohřev vody zajišťuje elektrický bojler. Chata je napojena na inženýrské sítě, kanalizace je řešena trativodem.

Přístup k nemovitosti je zajištěn kombinací asfaltové a částečně nezpevněné komunikace na základě věcného břemene, což zajišťuje právně ošetřený příjezd až k pozemku.

Tato nemovitost je ideální volbou pro ty, kteří hledají kombinaci klidu, přírody a dostupnosti zázemí.

Pro více informací či sjednání prohlídky Vás ráda kontaktuje makléřka Martina.

Parametry domu

Cena
2 100 000 Kč /za nemovitost Spočítat hypotéku
Poznámka k ceně
za nemovitost
Aktualizováno
25. 2. 2026
Adresa
Jasenná
Stavba
Cihlová
Stav objektu
Dobrý
Vybaveno
Částečně
Druh objektu
Samostatný
Lokalita objektu
Klidná část obce
Užitná plocha
50 m2
Plocha pozemku
400 m2
Třída energetické náročnosti
G - Mimořádně nehospodárná
Elektřina
230V
Odpad
Trativod
Komunikace
Asfaltová, Neupravená
Doprava
Silnice, Autobus
Voda
Místní zdroj vody
Topné těleso
Krbová kamna
Sklep
Výtah
Bezbarierový přístup

Kontaktovat makléře

Realitní kancelář

MS reality

třída Tomáše Bati 385, Zlín

Chystáte se prodat nemovitost?
Pomůžeme Vám!

Máte zájem o tento dům?

Tímto, v souladu s nařízením Evropského parlamentu a Rady (EU) 2016/679, v platném znění, prohlašuji, že mi je alespoň 16 let a uděluji tak svůj souhlas se zpracováním zadaných údajů (jméno, telefon, e-mail, ip adresa) společnosti B3 Technology, s.r.o., IČ: 07330600, se sídlem Novostavby 126/23, 435 11 Lom (správce dat), za účelem předání dotazu z tohoto formuláře Vámi vybranému inzerentovi a zpětného kontaktování mé osoby. Osobní údaje bude správce zpracovávat manuálně i automaticky přímo prostřednictvím svých zaměstnanců. Informace předané tímto formulářem budou uloženy v databázi správce maximálně po dobu 10 let. Odvolání souhlasu s uložením a zpracováním poskytnutých dat lze e-mailem na info@videobydleni.cz. V případě podezření na neoprávněné použití Vámi poskytnutých údajů máte právo předat podnět k šetření Úřadu pro ochranu osobních údajů. Více informací
Chystáte se prodat nemovitost?
Pomůžeme Vám!

Inzerát si prohlédlo 1 lidí

Prodejce

Martina Sušňová

Martina Sušňová

Hlídací pes

Chcete dostávat emailem podobné nabídky prodeje chat v Jasenné (okr. Zlín)?

Podobné nemovitosti


Nevyhovuje Vám typ domu? Podívejte se na jiné kategorie domů.


Vybrané články z našeho blogu