Pronájem bytu 2+kk, Praha - Kobylisy, Kyselova, 45 m2 (ID: 4190857)

Kyselova, Praha, Kobylisy

18 900 Kč /za měsíc Získejte výhodnou HYPOTÉKU

(+ 3500 kč zálohy na služby + elektřina, vratná kauce 22400 kč, provize 18900 kč + DPH)

Prémioví partneři v Praze 8

Stěhovací služby

Výkup a prodej starého nábytku

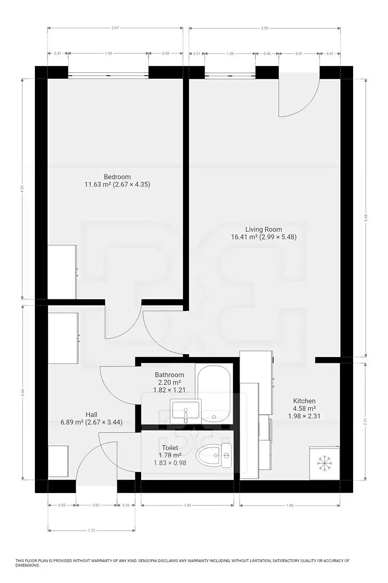
Informace k bytu

K nastěhování od 1.4.2026.

Nabízíme k pronájmu byt o dispozici 2+kk, s plochou 45 m², který se nachází ve 3. nadzemním podlaží dobře udržované budovy situované v blízkosti metra Ládví.


Byt je vybaven kuchyňskou linkou se spotřebiči (lednice s mrazákem, sporák).
Obývací část je nevybavený. V ložnici se nachází šatní skříň. Další úložný prostor je v předsíni bytu.
Koupelna je vybavena vanou. Toaleta je umístěna samostatně.



V místě je výborná občanská vybavenost - obchody, služby, restaurace, pošta, lékárna.
V docházkové vzdálenosti od domu je autobusová, tramvajová zastávka a stanice metra Ládví.



Měsíční nájem - 18900 Kč, záloha za služby spojené s užíváním bytu 3500 Kč + elektřina, kauce 22400 kč, provize 18900 kč + dph.



Velkou výhodou pro potenciální nájemce je, že objekt je v profesionální správě společnosti Bohemian Estates, jenž správu pro majitele tohoto objektu vykonává. Nájemci je k dispozici kontaktní osoba, která obratem řeší veškeré záležitosti s nájmem spojené (pravidelná údržba i havarijní zásahy vlastními techniky, vyúčtování, dodatky, apod.). Nájemci je tak zajištěno bezproblémové užívání bytu s kompletním servisem.

Parametry bytu

Cena
18 900 Kč /za měsíc
Poznámka k ceně
+ 3500 kč zálohy na služby + elektřina, vratná kauce 22400 kč, provize 18900 kč + DPH
Aktualizováno
25. 2. 2026
Adresa
Kyselova, Praha, Kobylisy
ID
N08877
Stavba
Panelová
Stav objektu
Velmi dobrý
Patro
3. z 8
Vybaveno
Částečně
Lokalita objektu
Klidná část obce
Vlastnictví
Osobní
Užitná plocha
45 m2
Třída energetické náročnosti
C - Úsporná
Ukazatel energetické náročnosti
114 kWh/m2 za rok
Elektřina
230V
Doprava
Vlak, Dálnice, Silnice, MHD, Autobus
Voda
Vodovod
Topné těleso
Radiátory
Zdroj topení
Centrální dálkové
Zdroj teplé vody
Centrální dálkový ohřev
Sklep
Výtah

Kontaktovat makléře

Máte zájem o tento byt?

Tímto, v souladu s nařízením Evropského parlamentu a Rady (EU) 2016/679, v platném znění, prohlašuji, že mi je alespoň 16 let a uděluji tak svůj souhlas se zpracováním zadaných údajů (jméno, telefon, e-mail, ip adresa) společnosti B3 Technology, s.r.o., IČ: 07330600, se sídlem Novostavby 126/23, 435 11 Lom (správce dat), za účelem předání dotazu z tohoto formuláře Vámi vybranému inzerentovi a zpětného kontaktování mé osoby. Osobní údaje bude správce zpracovávat manuálně i automaticky přímo prostřednictvím svých zaměstnanců. Informace předané tímto formulářem budou uloženy v databázi správce maximálně po dobu 10 let. Odvolání souhlasu s uložením a zpracováním poskytnutých dat lze e-mailem na info@videobydleni.cz. V případě podezření na neoprávněné použití Vámi poskytnutých údajů máte právo předat podnět k šetření Úřadu pro ochranu osobních údajů. Více informací
Chystáte se prodat nemovitost?
Pomůžeme Vám!

Inzerát si prohlédlo 0 lidí

Prodejce

Lukáš Kubát

Lukáš Kubát

Hlídací pes

Chcete dostávat emailem podobné nabídky pronájmu bytů 2+kk v Praze 8?

Podobné nemovitosti


Nevyhovuje Vám typ bytu? Podívejte se na jiné kategorie bytů.


Vybrané články z našeho blogu