Soccer reality

Pronájem bytu 4+kk, Praha - Kbely, Semilská, 112 m2

Semilská, Kbely - Praha 19

33 500 Kč /za měsíc Získejte výhodnou HYPOTÉKU

(vratná jistota, náklady na bydlení 7.200,-Kč poplatek za podnájem)

Prémioví partneři v Praze 9

Stěhovací služby

Výkup a prodej starého nábytku

Pojištění a finance

Informace k bytu

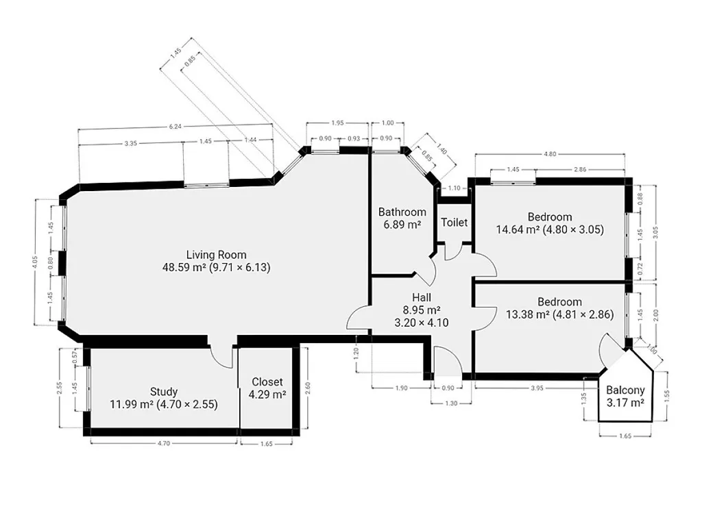
K dlouhodobému podnájmu Vám nabízíme krásný, plně vybavený byt o dispozici 4kk a výměrou nadstandartních 112m2 s vlastním garážovým stáním.

Byt se nachází ve 2. patře cihlového domu v pražských Kbelích. Skládá se z velké centrální chodby, ložnice se vstupem na balkón, dětského pokoje, velmi prostorné, samostatné koupelny s vanou, dvěma umyvadly a pračkou a oddělenou toaletou.

V bytě je dále velký obývací pokoj společný s kuchyňským koutem a pracovna / pokoj pro hosty, který navazuje na velmi prostornou šatnu.

Prakticky řešená kuchyně ve tvaru "U" je zařízena ve vysokém standardu, všemi vestavnými spotřebiči - myčka, lednice, varná deska, trouba, mikrovlnná trouba a digestoř. Kuchyně je velmi prakticky řešená s nadstandartním množstvím úložného prostoru.

K bytu také náleží garážové parkovací stání.

Byt se nachází ve velmi klidné lokalitě, s veškerou občanskou vybaveností na dosah. Základní i mateřská škola je od domu necelých 5 minut chůze. Autobusová zastávka poté dvě minuty.

Ve Kbelích také najdete kompletní občanskou vybavenost, několik menších obchodů s potravinami, dětská hřiště, sportovní i turistické vyžití.

Byt je k dispozici od 1.5.

Zálohové platby už obsahují zálohy na elektřinu a pojištění domácnosti.

Parametry bytu

Cena
33 500 Kč /za měsíc
Poznámka k ceně
vratná jistota, náklady na bydlení 7.200,-Kč poplatek za podnájem
Aktualizováno
5. 5. 2026
Adresa
Semilská, Kbely - Praha 19
ID
N5243
Stavba
Cihlová
Stav objektu
Velmi dobrý
Patro
2. z 4
Vybaveno
Ano
Typ objektu
Patrový
Lokalita objektu
Okraj obce
Vlastnictví
Osobní
Užitná plocha
112 m2
Podlahová plocha
112 m2
Třída energetické náročnosti
C - Úsporná
Elektřina
230V
Topení
Ústřední dálkové
Doprava
Vlak, Dálnice, Silnice, MHD, Autobus
Balkon
Garáž
Výtah
Bezbarierový přístup
Parkování

Kontaktovat makléře

Realitní kancelář

Logo Ideální nájemce

Ideální nájemce

Milady Horákové 1957/13, Brno

Chystáte se prodat nemovitost?
Pomůžeme Vám!

Máte zájem o tento byt?

Tímto, v souladu s nařízením Evropského parlamentu a Rady (EU) 2016/679, v platném znění, prohlašuji, že mi je alespoň 16 let a uděluji tak svůj souhlas se zpracováním zadaných údajů (jméno, telefon, e-mail, ip adresa) společnosti B3 Technology, s.r.o., IČ: 07330600, se sídlem Novostavby 126/23, 435 11 Lom (správce dat), za účelem předání dotazu z tohoto formuláře Vámi vybranému inzerentovi a zpětného kontaktování mé osoby. Osobní údaje bude správce zpracovávat manuálně i automaticky přímo prostřednictvím svých zaměstnanců. Informace předané tímto formulářem budou uloženy v databázi správce maximálně po dobu 10 let. Odvolání souhlasu s uložením a zpracováním poskytnutých dat lze e-mailem na info@videobydleni.cz. V případě podezření na neoprávněné použití Vámi poskytnutých údajů máte právo předat podnět k šetření Úřadu pro ochranu osobních údajů. Více informací
Chystáte se prodat nemovitost?
Pomůžeme Vám!
Theleadway banner

Inzerát si prohlédlo 10 lidí

Prodejce

Dana Oralová

Dana Oralová

Hlídací pes

Chcete dostávat emailem podobné nabídky pronájmu bytů 4+kk v Praze 9?

Podobné nemovitosti


Nevyhovuje Vám typ bytu? Podívejte se na jiné kategorie bytů.


Vybrané články z našeho blogu