Pronájem bytu 1+kk, Brno, Křepelčí, 39 m2 (ID: 4191628)

Křepelčí, Brno, Žebětín

13 800 Kč /za měsíc Získejte výhodnou HYPOTÉKU

(+ služby, + kauce)

Prémioví partneři v Brně

Informace k bytu

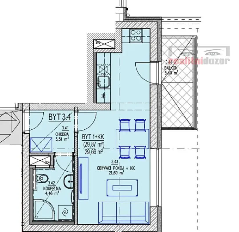
Nabízím k pronájmu krásný, světlý byt 1+kk s balkonem, nacházející se ve velmi žádané lokalitě na ulici Křepelčí v Žebětíně, novostavba z roku 2024. Byt je umístěn ve 3.NP domu s výtahem a bezbariérovým přístupem. CP bytu činí 39 m², z toho obytná plocha 29,87 m², balkon 5,4 m² a sklep 3,45 m². Sklepní kóje č. 3.4 se nachází přímo v domě ve 2.PP. Orientace bytu je JV. K nastěhování 1.4.2026.

Dispozice:
– chodba 3,51 m²
– pokoj s kuchyňským koutem 21,69 m²
– koupelna s WC 4,46 m²
– balkon/terasa 5,40 m²
– sklep 3,45 m²
Orientace bytu je na jihovýchod.

Součástí je kuchyňská linka s indukční deskou, myčkou, digestoří, troubou a lednicí s mrazákem, stropní světla. V koupelně se nachází skříňka se zrcadlem a osvětlením. V předsíni a koupelně jsou keramické obklady a dlažba, v obytné části plovoucí podlaha. Okna jsou plastová trojskla.
Teplo i ohřev vody zajišťují Brněnské teplárny.
Byt je vhodný maximálně pro dvě osoby – pracující či studenty, nekuřáci, bez zvířat.

Měsíční nájemné činí 13 800 Kč + zálohy na služby 2.100,- Kč.
Elektřinu (firma REKO) a internet (Vodafone nebo Netbox) a TV si nájemník sjednává samostatně.
Vratná kauce ve výši 16.000,- Kč.

Parkování je bezproblémové díky rozsáhlým parkovacím plochám u domu. Lokalita je klidná, s přírodou na dosah a výbornou dostupností do centra Brna – MHD i napojením na D1. V okolí se nachází školky, sportoviště, velkoobchod Albert a restaurace Kam jinam. K Brněnské přehradě je to přibližně 20 minut pěšky a k Žebětínskému rybníku asi 5 minut.

Těšíme se na setkání při prohlídkách.

Parametry bytu

Cena
13 800 Kč /za měsíc
Poznámka k ceně
+ služby, + kauce
Aktualizováno
26. 2. 2026
Adresa
Křepelčí, Brno, Žebětín
ID
9
Stavba
Cihlová
Stav objektu
Novostavba
Patro
3. z 5
Lokalita objektu
Klidná část obce
Vlastnictví
Osobní
Užitná plocha
39 m2
Třída energetické náročnosti
B - Velmi úsporná
Elektřina
230V
Odpad
Veřejná kanalizace
Topení
Ústřední dálkové
Komunikace
Betonová
Telekomunikace
Internet, Kabelová televize
Doprava
Dálnice, Silnice, MHD
Voda
Vodovod
Topné těleso
Radiátory
Zdroj topení
Centrální dálkové
Balkon
Sklep
Terasa
Výtah
Bezbarierový přístup

Kontaktovat makléře

Realitní kancelář

REALITNÍ DOZOR

Malinovského náměstí 603/4, Brno-město

Chystáte se prodat nemovitost?
Pomůžeme Vám!

Máte zájem o tento byt?

Tímto, v souladu s nařízením Evropského parlamentu a Rady (EU) 2016/679, v platném znění, prohlašuji, že mi je alespoň 16 let a uděluji tak svůj souhlas se zpracováním zadaných údajů (jméno, telefon, e-mail, ip adresa) společnosti B3 Technology, s.r.o., IČ: 07330600, se sídlem Novostavby 126/23, 435 11 Lom (správce dat), za účelem předání dotazu z tohoto formuláře Vámi vybranému inzerentovi a zpětného kontaktování mé osoby. Osobní údaje bude správce zpracovávat manuálně i automaticky přímo prostřednictvím svých zaměstnanců. Informace předané tímto formulářem budou uloženy v databázi správce maximálně po dobu 10 let. Odvolání souhlasu s uložením a zpracováním poskytnutých dat lze e-mailem na info@videobydleni.cz. V případě podezření na neoprávněné použití Vámi poskytnutých údajů máte právo předat podnět k šetření Úřadu pro ochranu osobních údajů. Více informací
Chystáte se prodat nemovitost?
Pomůžeme Vám!

Inzerát si prohlédlo 0 lidí

Prodejce

Věra Kostková

Věra Kostková

Hlídací pes

Chcete dostávat emailem podobné nabídky pronájmu bytů 1+kk v Brně?

Podobné nemovitosti


Nevyhovuje Vám typ bytu? Podívejte se na jiné kategorie bytů.


Vybrané články z našeho blogu