Prodej bytu 4+kk, Znojmo, Jarošova, 110 m2 (ID: 4191672)

Jarošova, Znojmo

8 449 365 Kč /za nemovitost HYPOTÉKA od 37 764 Kč /za měsíc

(včetně DPH, včetně provize)

Prémioví partneři v Znojmu

Informace k bytu

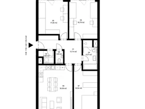
Nabízíme moderní byt 4+kk, kde má každý člen rodiny svůj prostor a společné chvíle dostanou nový rozměr. Byt má výměru 110,1 m² , lodžii o velikosti 13,6 m², balkon s plochou 10,7 m² a je situován ve 3. NP moderního bytového domu Rezidence Jarošova. Bytový dům byl zkolaudován v létě roku 2025 a již se těší na své nové obyvatele.

Byt zaujme velkorysou dispozicí s třemi samostatnými ložnicemi, velkým obývacím prostorem s kuchyňským koutem a přímým vstupem z každého pokoje na balkon či lodžii. Nechybí prostorná předsíň, komora přípravou pro pračku a sušičku, samostatné WC a komfortní koupelna. V koupelně najdete prostornou vanu, sprchový kout i WC. Byt tedy disponuje dvěma WC. Celková užitná plocha činí 134,4 m² včetně venkovních ploch. V každé místnosti je klimatizace se samostatným ovládáním.

Rezidence Jarošova se nachází v klidné části Znojma s výbornou dostupností do centra. V domě je k dispozici kolárna, kočárkárna, diskrétní sklepní kóje, či krásné atrium. K bytu lze dokoupit až dvě parkovací místa v podzemní garáži. Pohodlně tak vyjedete výtahem přímo z garáže až ke svému bytu.

AKCE: při koupi bytu získáváte dárkový poukaz na 8% slevy na kuchyně ORESI!

Více informací a kompletní nabídku nás kontaktujte.

Parametry bytu

Cena
8 449 365 Kč /za nemovitost Spočítat hypotéku
Poznámka k ceně
včetně DPH, včetně provize
Aktualizováno
26. 2. 2026
Adresa
Jarošova, Znojmo
ID
RJ308
Stavba
Cihlová
Stav objektu
Novostavba
Patro
3. z 6
Lokalita objektu
Centrum obce
Vlastnictví
Osobní
Užitná plocha
110 m2
Podlahová plocha
134 m2
Třída energetické náročnosti
B - Velmi úsporná
Ukazatel energetické náročnosti
90 kWh/m2 za rok
Odpad
Veřejná kanalizace
Doprava
Silnice, MHD
Topné těleso
Podlahové vytápění
Zdroj topení
Ústřední dálkové
Zdroj teplé vody
Centrální dálkový ohřev
Balkon
Sklep
Lodžie
Výtah
Bezbarierový přístup

Kontaktovat makléře

Máte zájem o tento byt?

Tímto, v souladu s nařízením Evropského parlamentu a Rady (EU) 2016/679, v platném znění, prohlašuji, že mi je alespoň 16 let a uděluji tak svůj souhlas se zpracováním zadaných údajů (jméno, telefon, e-mail, ip adresa) společnosti B3 Technology, s.r.o., IČ: 07330600, se sídlem Novostavby 126/23, 435 11 Lom (správce dat), za účelem předání dotazu z tohoto formuláře Vámi vybranému inzerentovi a zpětného kontaktování mé osoby. Osobní údaje bude správce zpracovávat manuálně i automaticky přímo prostřednictvím svých zaměstnanců. Informace předané tímto formulářem budou uloženy v databázi správce maximálně po dobu 10 let. Odvolání souhlasu s uložením a zpracováním poskytnutých dat lze e-mailem na info@videobydleni.cz. V případě podezření na neoprávněné použití Vámi poskytnutých údajů máte právo předat podnět k šetření Úřadu pro ochranu osobních údajů. Více informací
Chystáte se prodat nemovitost?
Pomůžeme Vám!

Inzerát si prohlédlo 0 lidí

Prodejce

Veronika Plíšková

Veronika Plíšková

Hlídací pes

Chcete dostávat emailem podobné nabídky prodeje bytů 4+kk v Znojmu?

Podobné nemovitosti


Nevyhovuje Vám typ bytu? Podívejte se na jiné kategorie bytů.


Vybrané články z našeho blogu