Prodej pozemku pro bydlení, Vrčeň, 13327 m2 (ID: 4192460)

Vrčeň

5 980 000 Kč /za nemovitost HYPOTÉKA od 26 727 Kč /za měsíc

(Cena je vč. kompletního právního servisu. K ceně bude připočteno DPH.)

Prémioví partneři v Vrčeni

Podlahy

Stěhovací služby

Informace k pozemku

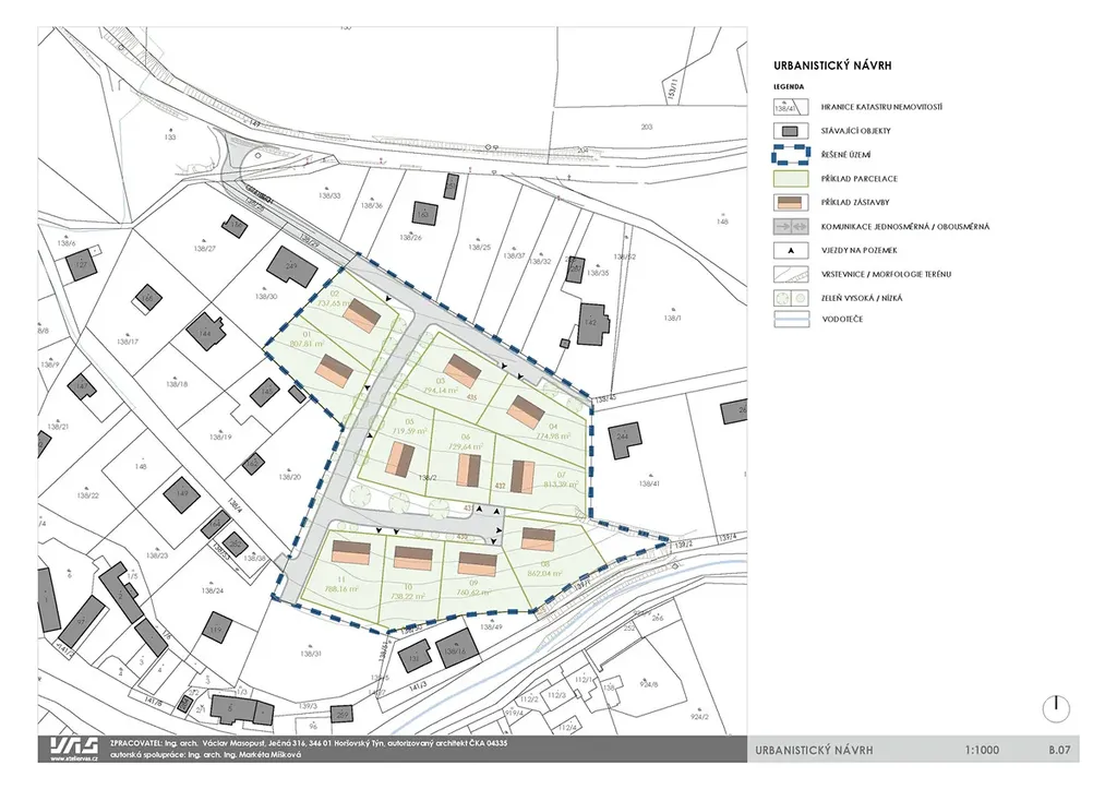
Představujeme nově vzniklou lokalitu určenou pro výstavbu 11. rodinných domů o celkové výměře 13.327 m2!

Jedná se o zcela novou lokalitu o 11 parcelách v obci Vrčeň, ležící cca 3km od Nepomuka.

Dle územního plánu je lokalita Vrčeň Z03 určena pro výstavbu rodinných domů. Předmětem prodeje jsou pozemky p.č.: 139/1, 138/2, 138/29,138/28, 139/34 o celkové výměře 13.327 m2.

V lokalitě již byla zpracována územní studie, která je schválená zastupitelstvem obce. Dále pak stanovisko Povodí Vltavy a vyjádření od Kanalizace a Vodovody Starý Plzenec a.s., ohledně dostatečné kapacity vodovodu.
V lokalitě je také naplánována obecní kanalizace, do její realizace bude využívána k rodinným domům DČOV se zásakem (viz. stanovisko Povodí Vltavy).

Na budoucím investorovi bude lokalitu zasíťovat a tyto pozemky prodat nebo na nich postavit nové RD, případně investici kombinovat.

Pro jakékoliv další informace kontaktujte makléře nebo si zavolejte rovnou o prohlídku. Uvedená cena v inzerci nezahrnuje DPH. Prodej od plátce DPH.

Jedinečná investice, DOPORUČUJEME!

Parametry pozemku

Cena
5 980 000 Kč /za nemovitost Spočítat hypotéku
Poznámka k ceně
Cena je vč. kompletního právního servisu. K ceně bude připočteno DPH.
Aktualizováno
26. 2. 2026
Adresa
Vrčeň
ID
239
Lokalita objektu
Klidná část obce
Plocha pozemku
13327 m2
Elektřina
230V
Plyn
Plynovod
Odpad
Veřejná kanalizace, ČOV pro celý objekt
Voda
Vodovod

Kontaktovat makléře

Máte zájem o tento pozemek?

Tímto, v souladu s nařízením Evropského parlamentu a Rady (EU) 2016/679, v platném znění, prohlašuji, že mi je alespoň 16 let a uděluji tak svůj souhlas se zpracováním zadaných údajů (jméno, telefon, e-mail, ip adresa) společnosti B3 Technology, s.r.o., IČ: 07330600, se sídlem Novostavby 126/23, 435 11 Lom (správce dat), za účelem předání dotazu z tohoto formuláře Vámi vybranému inzerentovi a zpětného kontaktování mé osoby. Osobní údaje bude správce zpracovávat manuálně i automaticky přímo prostřednictvím svých zaměstnanců. Informace předané tímto formulářem budou uloženy v databázi správce maximálně po dobu 10 let. Odvolání souhlasu s uložením a zpracováním poskytnutých dat lze e-mailem na info@videobydleni.cz. V případě podezření na neoprávněné použití Vámi poskytnutých údajů máte právo předat podnět k šetření Úřadu pro ochranu osobních údajů. Více informací
Chystáte se prodat nemovitost?
Pomůžeme Vám!

Inzerát si prohlédlo 0 lidí

Prodejce

Zdeněk Polesný M.R.E.

Zdeněk Polesný M.R.E.

Hlídací pes

Chcete dostávat emailem podobné nabídky prodeje pozemků pro bydlení v Vrčeni?

Podobné nemovitosti


Nevyhovuje Vám typ pozemku? Podívejte se na jiné kategorie pozemků.


Vybrané články z našeho blogu