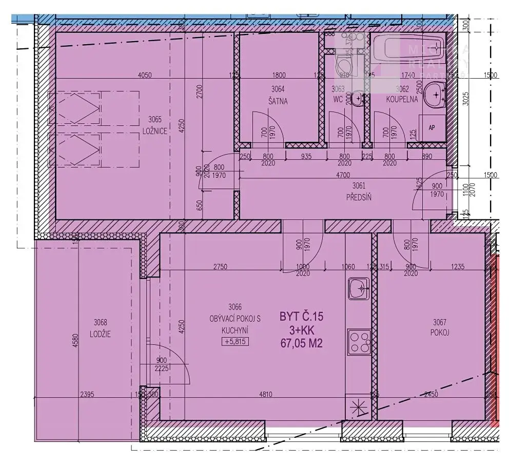
Vaše cesta k vysněnému bydlení je zase o něco kratší. Teď už stačí si jen vybrat jeden z prodejů bytů 3+kk v Holubicích (okr. Vyškov).
Holubice

Holubice