Prodej domu na klíč, Zahnašovice, 100 m2

Zahnašovice

Cena na vyžádání /za nemovitost Získejte výhodnou HYPOTÉKU

(cena u makléře)

Prémioví partneři v Zahnašovicích

Informace k domu

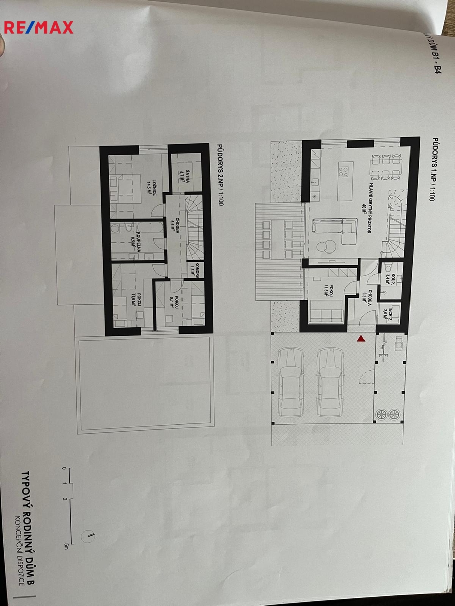
Nabízíme k prodeji moderní novostavby rodinných domů na klíč v moderním rezidenčním projektu komorní zástavby samostatných a řadových domů v klidné lokalitě obce.
Zahnašovice.

Projekt spojuje nadčasovou architekturu, funkční dispozici a dostatek soukromí. Domy jsou navrženy s důrazem na komfortní rodinné bydlení a efektivní využití prostoru.

Dispozice domu dle domluvy. Jedná se o přímého developera, jenž plánuje zahájit stavbu na podzim. Z toho důvodu je možná individuální konzultace výstavby. Dům bude prodáván včetně pozemku.
Hlavní výhody:

✔ moderní architektura
✔ vlastní zahrada
✔ parkování na pozemku
✔ energeticky úsporné řešení
✔ klidná lokalita s dobrou dostupností

Cena: 10.000.000 RD včetně pozemku, Mezonet-řadovka- 10.000 včetně pozemku.


Projekt je ideální pro rodiny hledající kombinaci moderního bydlení, soukromí a příjemného okolí.

Pro více informací o standardech, ceně a možnostech financování mě neváhejte kontaktovat

Parametry domu

Cena
Cena na vyžádání Spočítat hypotéku
Poznámka k ceně
cena u makléře
Aktualizováno
27. 2. 2026
Adresa
Zahnašovice
ID
223-NP02990
Stavba
Cihlová
Stav objektu
Novostavba
Typ objektu
Patrový
Druh objektu
Řadový
Lokalita objektu
Klidná část obce
Užitná plocha
100 m2
Plocha pozemku
200 m2
Třída energetické náročnosti
B - Velmi úsporná
Elektřina
120V, 230V
Odpad
Veřejná kanalizace
Voda
Vodovod
Garáž
Převod do OV
Parkování

Kontaktovat makléře

Máte zájem o tento dům?

Tímto, v souladu s nařízením Evropského parlamentu a Rady (EU) 2016/679, v platném znění, prohlašuji, že mi je alespoň 16 let a uděluji tak svůj souhlas se zpracováním zadaných údajů (jméno, telefon, e-mail, ip adresa) společnosti B3 Technology, s.r.o., IČ: 07330600, se sídlem Novostavby 126/23, 435 11 Lom (správce dat), za účelem předání dotazu z tohoto formuláře Vámi vybranému inzerentovi a zpětného kontaktování mé osoby. Osobní údaje bude správce zpracovávat manuálně i automaticky přímo prostřednictvím svých zaměstnanců. Informace předané tímto formulářem budou uloženy v databázi správce maximálně po dobu 10 let. Odvolání souhlasu s uložením a zpracováním poskytnutých dat lze e-mailem na info@videobydleni.cz. V případě podezření na neoprávněné použití Vámi poskytnutých údajů máte právo předat podnět k šetření Úřadu pro ochranu osobních údajů. Více informací
Chystáte se prodat nemovitost?
Pomůžeme Vám!

Inzerát si prohlédlo 0 lidí

Prodejce

Mgr. Jitka Černíčková, MBA

Mgr. Jitka Černíčková, MBA

Hlídací pes

Chcete dostávat emailem podobné nabídky prodeje domů na klíč v Zahnašovicích?

Top nabídky

Nevyhovuje Vám typ domu? Podívejte se na jiné kategorie domů.


Vybrané články z našeho blogu