Prodej bytu 2+1, Brno - Černá Pole, Merhautova, 55 m2

Merhautova, Brno, Černá Pole

5 350 000 Kč /za nemovitost HYPOTÉKA od 23 911 Kč /za měsíc

(včetně DPH, včetně poplatků, včetně provize, včetně právního servisu, cena k jednání)

Prémioví partneři v Brně

Informace k bytu

Hledáte byt v širším centru Brna s výbornou dostupností, kompletní občanskou vybaveností a potenciálem k úpravám podle vlastních představ? Pak by vás mohl zaujmout tento jižně orientovaný byt 2+1 o ploše 53,95 m² v oblíbené lokalitě Brno–Černá Pole, ulice Merhautova.

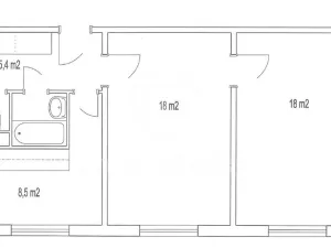
Byt se nachází v 1. nadzemním podlaží osmipodlažního panelového domu s výtahem. Dispozičně nabízí dva prostorné průchozí pokoje (2× cca 18 m²), kuchyni (8,5 m²), předsíň, koupelnu s vanou a samostatné WC. K bytu náleží dva sklepy – jeden standardní sklepní kóje o rozměrech cca 1,25 × 0,63 × 2,10 m a druhý menší sklep umístěný pod schodištěm.

Rekonstrukce bytového jádra a elektroinstalace proběhla v roce 2010/2011 – zděné jádro, nové rozvody elektřiny v mědi, plastová okna s bezpečnostními skly a kováním (okna byla zvětšena). Vytápění i ohřev teplé vody jsou řešeny dálkově.

Podlahy tvoří původní dřevěné parkety v obytných místnostech, v kuchyni a chodbě linoleum, v koupelně a na WC keramická dlažba.

Černá Pole patří dlouhodobě mezi vyhledávané rezidenční části Brna díky kombinaci dobré dostupnosti do centra, blízkosti zeleně (např. park Lužánky) a kompletní občanské vybavenosti. V okolí se nachází školy, obchody, lékaři i zastávky MHD. Centrum Brna je dostupné zhruba do 10 minut, výhodou je také rychlé napojení na městský okruh a dálnice D1 a D2.

HLAVNÍ VÝHODY
vyhledávaná lokalita Brno–Černá Pole
výborná dopravní dostupnost
jižní orientace bytu, okna obytných pokojů směřují do vnitrobloku
rekonstrukce jádra a elektroinstalace
plastová okna s bezpečnostními skly, zděné jádro
dva sklepy k bytu
vhodné k vlastnímu bydlení i jako investice

CO JE DOBRÉ VĚDĚT
byt je v 1. NP (přízemí)
průchozí pokoje
rušnější ulice
starší podlahy a kuchyňská linka
bez balkonu/lodžie
omezené parkování v okolí

Byt je ideální volbou pro ty, kteří chtějí bydlet v oblíbené části Brna s perfektní dostupností a zároveň si vytvořit domov podle vlastních představ – nebo hledají zajímavou investiční příležitost.

Zaujalo vás nabídka? Ozvěte se a domluvte si prohlídku. Tenhle byt má potenciál!

Parametry bytu

Cena
5 350 000 Kč /za nemovitost Spočítat hypotéku
Poznámka k ceně
včetně DPH, včetně poplatků, včetně provize, včetně právního servisu, cena k jednání
Aktualizováno
27. 2. 2026
Adresa
Merhautova, Brno, Černá Pole
ID
00243
Stavba
Panelová
Stav objektu
Dobrý
Patro
1.
Vybaveno
Částečně
Druh objektu
V bloku
Lokalita objektu
Sídliště
Vlastnictví
Osobní
Užitná plocha
55 m2
Třída energetické náročnosti
D - Méně úsporná
Ukazatel energetické náročnosti
93 kWh/m2 za rok
Sklep
Výtah

Kontaktovat makléře

Máte zájem o tento byt?

Tímto, v souladu s nařízením Evropského parlamentu a Rady (EU) 2016/679, v platném znění, prohlašuji, že mi je alespoň 16 let a uděluji tak svůj souhlas se zpracováním zadaných údajů (jméno, telefon, e-mail, ip adresa) společnosti B3 Technology, s.r.o., IČ: 07330600, se sídlem Novostavby 126/23, 435 11 Lom (správce dat), za účelem předání dotazu z tohoto formuláře Vámi vybranému inzerentovi a zpětného kontaktování mé osoby. Osobní údaje bude správce zpracovávat manuálně i automaticky přímo prostřednictvím svých zaměstnanců. Informace předané tímto formulářem budou uloženy v databázi správce maximálně po dobu 10 let. Odvolání souhlasu s uložením a zpracováním poskytnutých dat lze e-mailem na info@videobydleni.cz. V případě podezření na neoprávněné použití Vámi poskytnutých údajů máte právo předat podnět k šetření Úřadu pro ochranu osobních údajů. Více informací
Chystáte se prodat nemovitost?
Pomůžeme Vám!

Inzerát si prohlédlo 0 lidí

Prodejce

Mgr. Renata Dundáčková

Mgr. Renata Dundáčková

Hlídací pes

Chcete dostávat emailem podobné nabídky prodeje bytů 2+1 v Brně?

Podobné nemovitosti


Nevyhovuje Vám typ bytu? Podívejte se na jiné kategorie bytů.


Vybrané články z našeho blogu