Pronájem bytu 2+1, Praha - Nusle, Na Jezerce, 49 m2

Na Jezerce, Nusle - Praha 4

21 500 Kč /za měsíc Získejte výhodnou HYPOTÉKU

(vratná jistota, náklady na bydlení 3 700 Kč, poplatek za podnájem)

Prémioví partneři v Praze 4

Stěhovací služby

Výkup a prodej starého nábytku

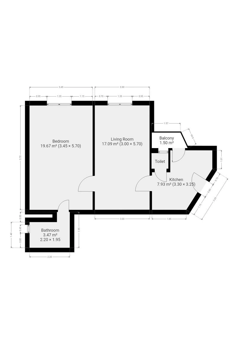
Informace k bytu

Nabízíme k dlouhodobému podnájmu příjemně světlý byt o dispozici 2+1, situovaný v srdci klidné rezidenční čtvrti pražských Nuslí. Tento byt o celkové výměře 49 m² se nachází ve druhém patře pečlivě udržovaného domu a jeho velkým benefitem je vlastní balkon i praktický sklepní prostor. Interiér je nabízen jako částečně vybavený, což vám dává ideální příležitost zařídit si nový domov přesně podle vlastního vkusu a potřeb.

Kuchyně disponuje vším potřebným včetně lednice s mrazákem, elektrické trouby a sporáku. Prostorný obývací pokoj je v současnosti vybaven jídelním koutem, zatímco zbytek místnosti zůstává otevřený pro váš nábytek. Druhý samostatný pokoj pak skvěle poslouží jako klidná ložnice nebo inspirativní pracovna. Komfort doplňuje koupelna se sprchovým koutem a pračkou, přičemž toaleta je pro větší soukromí řešena samostatně.

Lokalita vyniká perfektní občanskou vybaveností i skvělou dostupností do centra. V docházkové vzdálenosti najdete OC Arkády Pankrác, supermarkety Lidl a Tesco, poštu i širokou síť lékařských služeb a restaurací. Pro milovníky aktivního odpočinku a zeleně je doslova pár kroků od domu malebný park Jezerka. Spojení s městem zajišťují blízké zastávky tramvají a autobusů s rychlou návazností na metro. 

Byt je volný a připravený k nastěhování ihned,

Energetická třída: G (průkaz nedodán).

Parametry bytu

Cena
21 500 Kč /za měsíc
Poznámka k ceně
vratná jistota, náklady na bydlení 3 700 Kč, poplatek za podnájem
Aktualizováno
27. 2. 2026
Adresa
Na Jezerce, Nusle - Praha 4
ID
N7348
Stavba
Cihlová
Stav objektu
Velmi dobrý
Patro
2. z 4
Vybaveno
Částečně
Typ objektu
Patrový
Lokalita objektu
Klidná část obce
Vlastnictví
Osobní
Užitná plocha
49 m2
Podlahová plocha
49 m2
Třída energetické náročnosti
G - Mimořádně nehospodárná
Elektřina
230V
Topení
Lokální plynové
Doprava
Silnice, MHD, Autobus
Balkon
Sklep
Výtah

Kontaktovat makléře

Máte zájem o tento byt?

Tímto, v souladu s nařízením Evropského parlamentu a Rady (EU) 2016/679, v platném znění, prohlašuji, že mi je alespoň 16 let a uděluji tak svůj souhlas se zpracováním zadaných údajů (jméno, telefon, e-mail, ip adresa) společnosti B3 Technology, s.r.o., IČ: 07330600, se sídlem Novostavby 126/23, 435 11 Lom (správce dat), za účelem předání dotazu z tohoto formuláře Vámi vybranému inzerentovi a zpětného kontaktování mé osoby. Osobní údaje bude správce zpracovávat manuálně i automaticky přímo prostřednictvím svých zaměstnanců. Informace předané tímto formulářem budou uloženy v databázi správce maximálně po dobu 10 let. Odvolání souhlasu s uložením a zpracováním poskytnutých dat lze e-mailem na info@videobydleni.cz. V případě podezření na neoprávněné použití Vámi poskytnutých údajů máte právo předat podnět k šetření Úřadu pro ochranu osobních údajů. Více informací
Chystáte se prodat nemovitost?
Pomůžeme Vám!

Inzerát si prohlédlo 0 lidí

Prodejce

Miloslava Kačerová

Miloslava Kačerová

Hlídací pes

Chcete dostávat emailem podobné nabídky pronájmu bytů 2+1 v Praze 4?

Podobné nemovitosti


Nevyhovuje Vám typ bytu? Podívejte se na jiné kategorie bytů.


Vybrané články z našeho blogu