Soccer reality

Prodej bytu 3+1, Nupaky, Slunečná, 75 m2

Slunečná, Nupaky

9 997 000 Kč /za nemovitost HYPOTÉKA od 44 681 Kč /za měsíc
Prémioví partneři v Nupakách

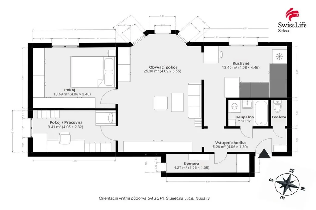
Informace k bytu

Připravil jsem pro vás k prodeji udržovaný byt 3+1 o užitné ploše 75 m v 1. patře bytového domu s velkou garáží v obci Nupaky u Prahy, který je ideální volbou pro mladou rodinu hledající klidné bydlení s výbornou dostupností do hlavního města a bezstarostným parkováním. Nemovitost se prodává s veškerými nábytkem vyrobeným na míru.

Byt je v standardním provedení a ve stavu, který umožňuje okamžité bydlení. Velkým benefitem je jihozápadní orientace bytu s dostatkem světla po celý den, dále dřevěné podlahy ve všech pokojích, které působí teple a útulně, a také okna s izolačními trojskly, díky nimž je v interiéru příjemný tepelný komfort a klid. Rozšíření možností úložného prostoru v bytě nabízí větší komora, kterou můžete využít i k jinému účelu. O bezpečí domova se starají kvalitní bezpečnostní vstupní dveře značky NEXT. Byt má vlastní vytápění plynovým kotlem s ohřevem teplé vody, což zajišťuje stabilní komfort a kontrolu nad provozními náklady.
Dům je po částečném zateplení fasády a připravuje se druhá etapa, která může do budoucna přinést další zlepšení energetických parametrů domu.

Základní měsíční platby byt 3.773 Kč, platby garáž 335 Kč, měsíční záloha za elektřinu 1.200 Kč, měsíční záloha za plyn 1.000 Kč.

K bytu náleží prostorná garáž o ploše 24 m, která kromě parkování skvěle poslouží i jako místo pro uskladnění kočárku, kol, sportovního vybavení nebo sezónních věcí, a další praktickou výhodou je možnost druhého stání přímo před garáží, takže pohodlně zaparkujete jedno až dvě auta bez hledání místa.

Nupaky jsou oblíbenou lokalitou pro rodinné bydlení díky poklidnému prostředí, blízkosti přírody a současně rychlému napojení na Prahu, což oceníte při každodenním dojíždění do práce i při cestách za službami a zábavou. Obec nabízí příjemnou atmosféru, základní občanskou vybavenost a v těsné blízkosti najdete další služby, školy, školky, obchody i volnočasové aktivity, takže máte vše potřebné prakticky po ruce.
Pokud hledáte byt, který kombinuje klid, bezpečné a komfortní bydlení, garáž a výhodu dvou parkovacích míst s výbornou dostupností Prahy, tenhle byt v Nupakách je velmi zajímavá příležitost.
Zavolejte, řekne si všechny detaily a můžeme dohodnout vhodný termín prohlídky. Prodávající si vyhrazuje právo výběru kupujícího a určení způsobu prodeje. Radim Macháček

Parametry bytu

Cena
9 997 000 Kč /za nemovitost Spočítat hypotéku
Aktualizováno
27. 2. 2026
Adresa
Slunečná, Nupaky
ID
25015
Stavba
Panelová
Stav objektu
Dobrý
Patro
2. z 3
Vybaveno
Ano
Typ objektu
Patrový
Vlastnictví
Osobní
Užitná plocha
75 m2
Podlahová plocha
75 m2
Třída energetické náročnosti
D - Méně úsporná
Elektřina
230V
Plyn
Plynovod
Odpad
Veřejná kanalizace
Topení
Ústřední plynové
Komunikace
Asfaltová
Telekomunikace
Internet
Doprava
Silnice
Voda
Vodovod
Garáž
Bezbarierový přístup
Parkování

Kontaktovat makléře

Máte zájem o tento byt?

Tímto, v souladu s nařízením Evropského parlamentu a Rady (EU) 2016/679, v platném znění, prohlašuji, že mi je alespoň 16 let a uděluji tak svůj souhlas se zpracováním zadaných údajů (jméno, telefon, e-mail, ip adresa) společnosti B3 Technology, s.r.o., IČ: 07330600, se sídlem Novostavby 126/23, 435 11 Lom (správce dat), za účelem předání dotazu z tohoto formuláře Vámi vybranému inzerentovi a zpětného kontaktování mé osoby. Osobní údaje bude správce zpracovávat manuálně i automaticky přímo prostřednictvím svých zaměstnanců. Informace předané tímto formulářem budou uloženy v databázi správce maximálně po dobu 10 let. Odvolání souhlasu s uložením a zpracováním poskytnutých dat lze e-mailem na info@videobydleni.cz. V případě podezření na neoprávněné použití Vámi poskytnutých údajů máte právo předat podnět k šetření Úřadu pro ochranu osobních údajů. Více informací
Chystáte se prodat nemovitost?
Pomůžeme Vám!

Inzerát si prohlédlo 0 lidí

Prodejce

Radim Macháček

Radim Macháček

Hlídací pes

Chcete dostávat emailem podobné nabídky prodeje bytů 3+1 v Nupakách?

Podobné nemovitosti


Nevyhovuje Vám typ bytu? Podívejte se na jiné kategorie bytů.


Vybrané články z našeho blogu