Prodej pozemku pro bydlení, Šaratice, 544 m2 (ID: 4193688)

Šaratice

Cena na vyžádání /za nemovitost Získejte výhodnou HYPOTÉKU
Prémioví partneři v Šaraticích

Informace k pozemku

Nabízíme k prodeji pozemek určený pro bydlení ve vyhledávané lokalitě Šaratice. Tento pozemek se rozprostírá na ploše 544 m² a poskytuje ideální příležitost pro výstavbu vašeho vysněného domu.

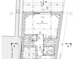
Orientace pozemku je SV a JZ. Asfaltová komunikace a inženýrské sítě se nacházejí na hranici pozemku.
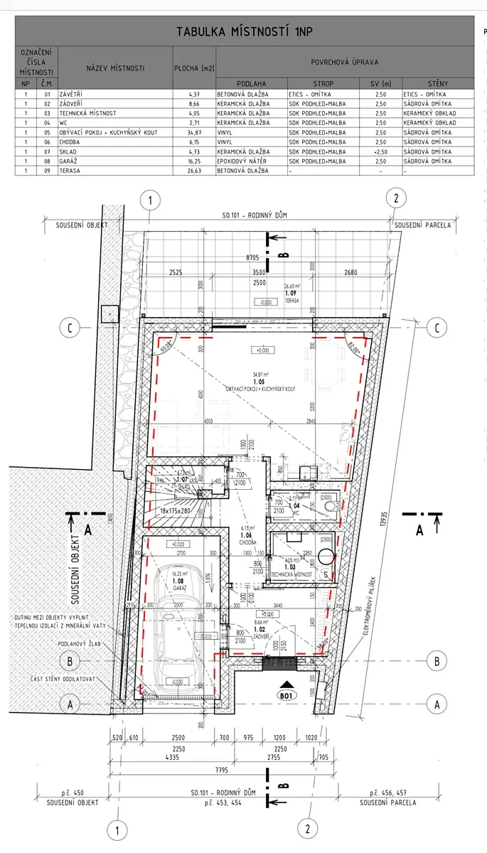
Dispozice RD podle projektové dokumentace je 4 + kk o obytné ploše 145m2 + garáž 16,25 + terasa 26,6m2.

Pokud vás nabídka zaujala a máte zájem o další informace nebo byste si chtěli naplánovat prohlídku, neváhejte nás kontaktovat. Rádi vám poskytneme veškeré potřebné informace a pomůžeme vám uskutečnit vaši představu o budoucím bydlení.

Parametry pozemku

Cena
Cena na vyžádání Spočítat hypotéku
Aktualizováno
28. 2. 2026
Adresa
Šaratice
ID
LS1Sar
Plocha pozemku
544 m2

Kontaktovat makléře

Realitní kancelář

Logo Lucas - Reality, s.r.o.

Lucas - Reality, s.r.o.

Příční 120/12, Brno, Zábrdovice

Chystáte se prodat nemovitost?
Pomůžeme Vám!

Máte zájem o tento pozemek?

Tímto, v souladu s nařízením Evropského parlamentu a Rady (EU) 2016/679, v platném znění, prohlašuji, že mi je alespoň 16 let a uděluji tak svůj souhlas se zpracováním zadaných údajů (jméno, telefon, e-mail, ip adresa) společnosti B3 Technology, s.r.o., IČ: 07330600, se sídlem Novostavby 126/23, 435 11 Lom (správce dat), za účelem předání dotazu z tohoto formuláře Vámi vybranému inzerentovi a zpětného kontaktování mé osoby. Osobní údaje bude správce zpracovávat manuálně i automaticky přímo prostřednictvím svých zaměstnanců. Informace předané tímto formulářem budou uloženy v databázi správce maximálně po dobu 10 let. Odvolání souhlasu s uložením a zpracováním poskytnutých dat lze e-mailem na info@videobydleni.cz. V případě podezření na neoprávněné použití Vámi poskytnutých údajů máte právo předat podnět k šetření Úřadu pro ochranu osobních údajů. Více informací
Chystáte se prodat nemovitost?
Pomůžeme Vám!

Inzerát si prohlédlo 0 lidí

Prodejce

Lukáš Šíma

Lukáš Šíma

Hlídací pes

Chcete dostávat emailem podobné nabídky prodeje pozemků pro bydlení v Šaraticích?

Podobné nemovitosti


Nevyhovuje Vám typ pozemku? Podívejte se na jiné kategorie pozemků.


Vybrané články z našeho blogu