Prodej atypického bytu, Mikulov, Nádražní, 220 m2

Nádražní, Mikulov

9 009 840 Kč /za nemovitost HYPOTÉKA od 40 269 Kč /za měsíc
Prémioví partneři v Mikulově

Informace k bytu

Nabízíme k prodeji reprezentativní komerční objekt v centru Mikulova, ul. Nádražní, ideální pro firmy hledající nové sídlo, kanceláře nebo obchodní prostory.

Tento cihlový objekt ve výborném technickém stavu nabízí široké možnosti využití – od firemního zázemí, showroomu, administrativních prostor či kombinace kanceláří a skladu, až po obchodní provoz. Díky strategické poloze v centru Mikulova je zaručena skvělá dopravní dostupnost, viditelnost i pohodlný přístup pro klienty či zaměstnance.

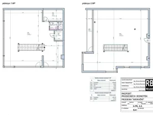
Objekt je rozvržen do dvou podlaží a poskytuje dostatek prostoru pro variabilní uspořádání podle potřeb budoucího vlastníka. Nemovitost je napojena na všechny inženýrské sítě, což umožňuje okamžité a bezproblémové využívání prostorů bez nutnosti zásadních investic.

Druhotná možnost využití – investiční potenciál:
Součástí nabídky je také možnost požádat o rekolaudaci na výstavbu čtyř bytových jednotek. Tato alternativa nabízí zajímavý způsob, jak v budoucnu nemovitost zhodnotit, a otevírá dveře kombinaci komerčního a rezidenčního využití.

Díky své poloze, technickému stavu a širokým možnostem využití se jedná o atraktivní příležitost jak pro firmy, tak pro investory hledající stabilní a výnosnou nemovitost v srdci Mikulova.

V případě zájmu o podrobnosti či domluvu prohlídky mě neváhejte kontaktovat.

Parametry bytu

Cena
9 009 840 Kč /za nemovitost Spočítat hypotéku
Aktualizováno
21. 4. 2026
Adresa
Nádražní, Mikulov
ID
0099
Stavba
Cihlová
Stav objektu
Velmi dobrý
Patro
1.
Vlastnictví
Osobní
Užitná plocha
220 m2
Třída energetické náročnosti
G - Mimořádně nehospodárná
Plyn
Plynovod
Odpad
Veřejná kanalizace

Kontaktovat makléře

Realitní kancelář

Pirogov&Sons

Brněnská 91/4, Mikulov

Chystáte se prodat nemovitost?
Pomůžeme Vám!

Máte zájem o tento byt?

Tímto, v souladu s nařízením Evropského parlamentu a Rady (EU) 2016/679, v platném znění, prohlašuji, že mi je alespoň 16 let a uděluji tak svůj souhlas se zpracováním zadaných údajů (jméno, telefon, e-mail, ip adresa) společnosti B3 Technology, s.r.o., IČ: 07330600, se sídlem Novostavby 126/23, 435 11 Lom (správce dat), za účelem předání dotazu z tohoto formuláře Vámi vybranému inzerentovi a zpětného kontaktování mé osoby. Osobní údaje bude správce zpracovávat manuálně i automaticky přímo prostřednictvím svých zaměstnanců. Informace předané tímto formulářem budou uloženy v databázi správce maximálně po dobu 10 let. Odvolání souhlasu s uložením a zpracováním poskytnutých dat lze e-mailem na info@videobydleni.cz. V případě podezření na neoprávněné použití Vámi poskytnutých údajů máte právo předat podnět k šetření Úřadu pro ochranu osobních údajů. Více informací
Chystáte se prodat nemovitost?
Pomůžeme Vám!

Inzerát si prohlédlo 28 lidí

Prodejce

Ota Pirogov

Ota Pirogov

Hlídací pes

Chcete dostávat emailem podobné nabídky prodeje atypických bytů v Mikulově (okr. Břeclav)?

Podobné nemovitosti


Nevyhovuje Vám typ bytu? Podívejte se na jiné kategorie bytů.


Vybrané články z našeho blogu