Prodej rodinného domu, Jenišovice, 283 m2

Jenišovice

5 499 000 Kč /za nemovitost HYPOTÉKA od 24 577 Kč /za měsíc
Prémioví partneři v Jenišovicích

Rekonstrukce

Úklidové služby

Informace k domu

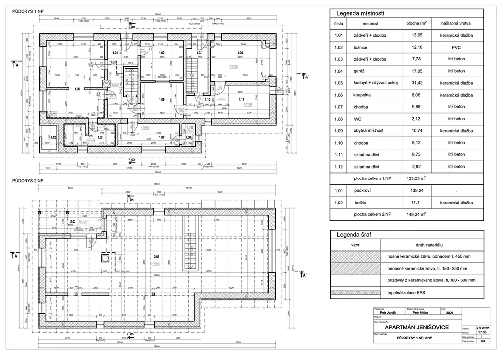
Prodej souboru nemovitostí (rodinný dům + pozemek s možností výstavby). Dům se nachází ve velmi klidné lokalitě na okraji obce Jenišovice. Jde o lokalitu s řídkou zástavbou a rekreačním potenciálem - na hranici Českého ráje (vhodné i pro investory - zpracovaná studie na apartmánové bydlení). Jenišovice jsou menší obcí se základní občanskou vybaveností (MŠ, ZŠ, pošta, potraviny, kavárna apod.). Kompletní občanská vybavenost se pak nachází ve vedlejších městech. Díky rychlému dopravnímu napojení na silnici R35 je dobře dostupný Turnov i Liberec. Výhodou je navazující dálniční spojení na Prahu, která je vzdálena cca 80 km. Aktuálně jde o starší rodinný dům (typově spíše chalupa) s pozemky v údolí o celkové ploše cca 4 400 m2. Na pozemky dále navazuje les.

Dům je určený k rekonstrukci / modernizaci a nabízí širokou škálu budoucího využití. Může sloužit jako velkorysý rodinný dům, vícegenerační dům, chalupa nebo apartmánový dům. Na pozemku lze stavět ještě další stavbu. Možností je další rodinný dům, garáž, stodola apod. V současném stavu má dům jedno nadzemní podlaží, částečné podsklepení a podkroví vhodné k vestavbě dalších obytných místností. Celková plocha domu je cca 283 m2 vč. podkroví. Sklep cca 21 m2. Obytná je aktuálně pouze část přízemí. Dům je připojen na elektřinu a obecní vodovod. Odpady jsou svedeny do septiku s filtrem a vsakováním. Vytápění krbovými kamny. Ohřev vody přes el. bojler. Ve fotogalerii je pro představu uvedena jedna z možných podob domu.

Dům je aktuálně pronajatý. Výpověď možná. Zajistíme Vám výhodné financování s možností převodu stávající hypotéky za výhodnějších podmínek. Bližší informace u makléře.

Parametry domu

Cena
5 499 000 Kč /za nemovitost Spočítat hypotéku
Aktualizováno
28. 2. 2026
Adresa
Jenišovice
Stavba
Cihlová
Stav objektu
Před rekonstrukcí
Druh objektu
Samostatný
Lokalita objektu
Polosamota
Užitná plocha
283 m2
Zastavěná plocha
185 m2
Plocha pozemku
4371 m2
Plocha zahrady
4186 m2
Elektřina
230V
Odpad
Septik
Komunikace
Asfaltová
Doprava
Dálnice, Silnice, Autobus
Voda
Vodovod
Topné těleso
Krbová kamna
Zdroj topení
Kamna
Zdroj teplé vody
Bojler - elektro
Garáž
Sklep

Kontaktovat makléře

Máte zájem o tento dům?

Tímto, v souladu s nařízením Evropského parlamentu a Rady (EU) 2016/679, v platném znění, prohlašuji, že mi je alespoň 16 let a uděluji tak svůj souhlas se zpracováním zadaných údajů (jméno, telefon, e-mail, ip adresa) společnosti B3 Technology, s.r.o., IČ: 07330600, se sídlem Novostavby 126/23, 435 11 Lom (správce dat), za účelem předání dotazu z tohoto formuláře Vámi vybranému inzerentovi a zpětného kontaktování mé osoby. Osobní údaje bude správce zpracovávat manuálně i automaticky přímo prostřednictvím svých zaměstnanců. Informace předané tímto formulářem budou uloženy v databázi správce maximálně po dobu 10 let. Odvolání souhlasu s uložením a zpracováním poskytnutých dat lze e-mailem na info@videobydleni.cz. V případě podezření na neoprávněné použití Vámi poskytnutých údajů máte právo předat podnět k šetření Úřadu pro ochranu osobních údajů. Více informací
Chystáte se prodat nemovitost?
Pomůžeme Vám!

Inzerát si prohlédlo 0 lidí

Prodejce

Miloslav Čapek

Miloslav Čapek

Hlídací pes

Chcete dostávat emailem podobné nabídky prodeje rodinných domů v Jenišovicích (okr. Jablonec nad Nisou)?

Podobné nemovitosti


Nevyhovuje Vám typ domu? Podívejte se na jiné kategorie domů.


Vybrané články z našeho blogu