Prodej chaty, Horní Kalná, 126 m2 (ID: 4194019)

Horní Kalná

5 900 000 Kč /za nemovitost HYPOTÉKA od 26 369 Kč /za měsíc
Prémioví partneři v Horní Kalné

Informace k domu

Nabízíme k prodeji výjimečnou roubenou chalupu po citlivé a kompletní rekonstrukci, situovanou v malebné obci Horní Kalná, v kouzelném podhůří Krkonoš. Tato nemovitost představuje dokonalé spojení tradiční horské architektury, moderního komfortu a autentické atmosféry venkovského života.

Chalupa stojí na pečlivě udržovaném pozemku o rozloze 505 m² a poskytuje maximální soukromí, klid a harmonii s okolní přírodou. Je ideální jak pro celoroční bydlení, tak jako stylové rekreační útočiště.

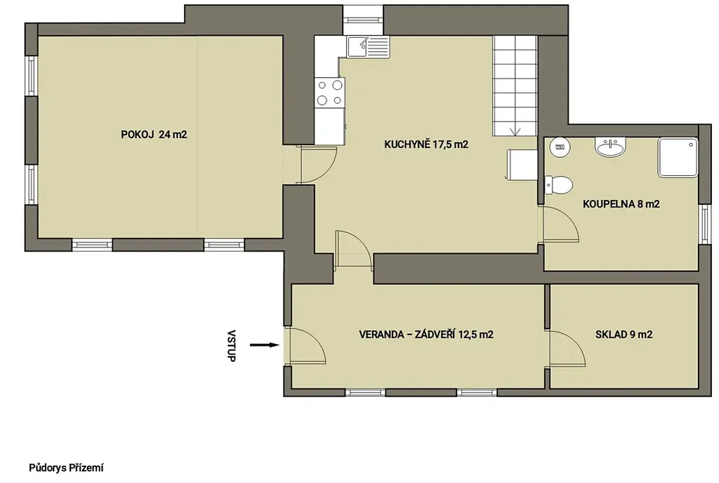
DISPOZICE A INTERIÉR

Dispozice 3+1 je navržena s důrazem na pohodlí i zachování původního charakteru stavby.

V přízemí se nachází útulná kuchyně, která přirozeně navazuje na světlý obývací pokoj s dominantními kachlovými kamny – srdcem celého domu, vytvářejícím neopakovatelnou atmosféru tepla a domova. Dále je zde koupelna, vstupní veranda a praktický dřevník s navazující kůlnou.

Podkroví nabízí dva romantické pokoje s výhledem do okolní zeleně, které poskytují klidné zázemí pro rodinu i hosty.

TECHNICKÉ ZÁZEMÍ A VYBAVENÍ

Nemovitost je připravena k okamžitému užívání a nabízí funkční technické řešení:

• elektřina včetně výhodného nízkého tarifu
• vlastní zdroj vody ze studny, s možností napojení na obecní vodovod (přípojka na pozemku)
• vytápění kamny na dřevo a kachlovými kamny s průduchem pro efektivní vytápění podkroví
• odpad řešen jímkou
• svah nad chalupou stabilizován svahovými tvárnicemi pro dlouhodobou bezpečnost a stabilitu

Chalupa je situována přibližně 150 metrů od hlavní komunikace, což zajišťuje naprostý klid, minimální provoz a ničím nerušené soukromí.

LOKALITA

Horní Kalná je vyhledávanou lokalitou v podhůří Krkonoš, ceněnou pro svou autentickou atmosféru, krásnou přírodu a výbornou dostupnost.

• Vrchlabí – 12 minut jízdy
• Praha – přibližně 90 minut jízdy
• kompletní občanská vybavenost v blízkém okolí

Nemovitost je vedena jako rodinný dům, což umožňuje její využití jak pro rekreaci, tak pro plnohodnotné celoroční bydlení.

OKOLÍ A VOLNOČASOVÉ AKTIVITY

Okolní krajina nabízí bohaté možnosti aktivního i klidového odpočinku během celého roku:

• turistické a cyklistické trasy v bezprostředním okolí
• lyžařská střediska Vrchlabí, Herlíkovice, Benecko, Černý Důl a Špindlerův Mlýn
• kulturní a společenské vyžití ve Vrchlabí a Trutnově

CHARAKTER A ATMOSFÉRA

Tato roubená chalupa není pouze nemovitostí – je místem s jedinečnou atmosférou a příběhem. Nabízí prostor, kde můžete zpomalit, nadechnout se čistého horského vzduchu a znovu objevit rovnováhu mezi komfortem a přírodou.

Je ideální volbou pro ty, kteří hledají autentické bydlení s duší, soukromím a nadčasovou hodnotou.

V případě zájmu o více informací nebo sjednání soukromé prohlídky mě prosím kontaktujte. Ráda Vám tuto výjimečnou nemovitost osobně představím.

Parametry domu

Cena
5 900 000 Kč /za nemovitost Spočítat hypotéku
Aktualizováno
16. 4. 2026
Adresa
Horní Kalná
Stavba
Dřevěná
Stav objektu
Velmi dobrý
Užitná plocha
126 m2
Plocha pozemku
505 m2

Kontaktovat makléře

Máte zájem o tento dům?

Tímto, v souladu s nařízením Evropského parlamentu a Rady (EU) 2016/679, v platném znění, prohlašuji, že mi je alespoň 16 let a uděluji tak svůj souhlas se zpracováním zadaných údajů (jméno, telefon, e-mail, ip adresa) společnosti B3 Technology, s.r.o., IČ: 07330600, se sídlem Novostavby 126/23, 435 11 Lom (správce dat), za účelem předání dotazu z tohoto formuláře Vámi vybranému inzerentovi a zpětného kontaktování mé osoby. Osobní údaje bude správce zpracovávat manuálně i automaticky přímo prostřednictvím svých zaměstnanců. Informace předané tímto formulářem budou uloženy v databázi správce maximálně po dobu 10 let. Odvolání souhlasu s uložením a zpracováním poskytnutých dat lze e-mailem na info@videobydleni.cz. V případě podezření na neoprávněné použití Vámi poskytnutých údajů máte právo předat podnět k šetření Úřadu pro ochranu osobních údajů. Více informací
Chystáte se prodat nemovitost?
Pomůžeme Vám!

Inzerát si prohlédlo 6 lidí

Prodejce

Ing. Stanislava Tremlová

Ing. Stanislava Tremlová

Hlídací pes

Chcete dostávat emailem podobné nabídky prodeje chat v Horní Kalné?

Podobné nemovitosti


Nevyhovuje Vám typ domu? Podívejte se na jiné kategorie domů.


Vybrané články z našeho blogu