Prodej bytu 2+kk, Praha - Dubeč, Winklerova, 44 m2 (ID: 4194168)

Winklerova, Praha, Dubeč

6 900 000 Kč /za nemovitost HYPOTÉKA od 30 839 Kč /za měsíc
Prémioví partneři v Praze 10

Stěhovací služby

Výkup a prodej starého nábytku

Informace k bytu

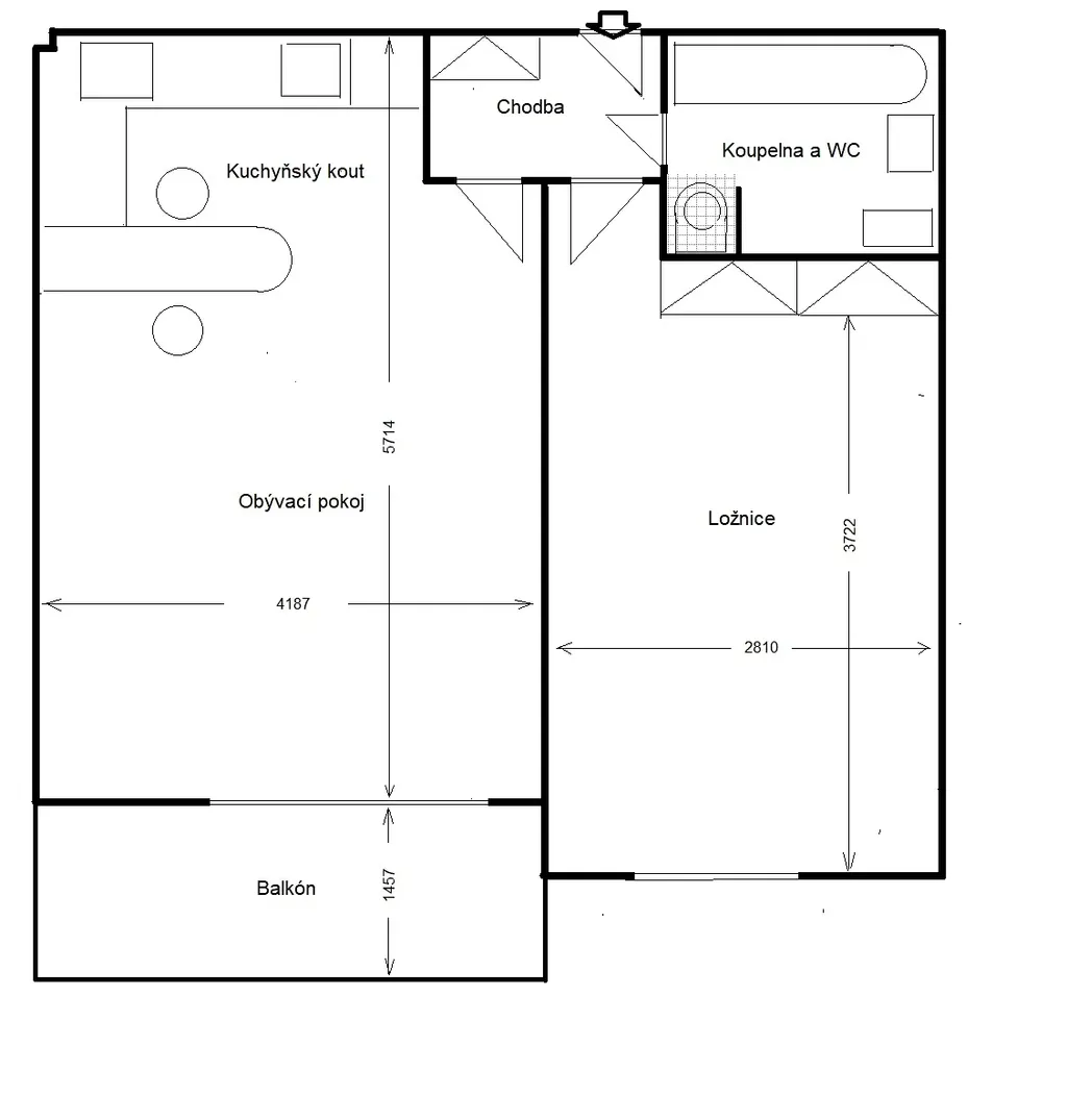
Ve výhradním zastoupení majitele nabízíme byt 2kk (43,5m2) s velkým balkonem (6m2) ve 2. nadzemním patře a venkovním parkovacím stáním na Praze 10 - Dubeč, v cihlovém domě z roku 2007. 

Byt sestává z předsíně s vestavěnou skříní, obývacího pokoje s kuchyní (lednice s mrazákem, trouba, mikrovlnka, varná deska s digestoří), ložnicí s vestavěnou skříní, koupelna s vanou, wc a pračkou.

Obývací pokoj i ložnice je orientována jihozápadně, byt je tak velmi slunný. Úžasný výhled do jabloňového sadu, v bytě uslyšíte jen zpěv ptáků.

Byt je připraven k okamžitému nastěhování (čerstvě vymalován a vystěhován nábytek mimo kuchyň a vestavěné skříně) nebo menšímu upgrade dle Vašich představ (umíme zařídit za výhodných podmínek naší stavební firmou nebo ověřenými truhláři).

Okna plastová, na podlaze v předsíni a koupelně dlažba, laminátová podlaha v obývacím pokoji a v ložnici koberec. Vytápění a ohřev teplé vody je řešeno vlastním plynovým kondenzačním kotlem. Dům samotný je v dobrém stavu a SVJ velmi dobře funguje, bydlení je velmi příjemné, menšího rodinného rázu.

Byt ideální na vlastní bydlení nebo investici (dlouhodobý pronájem odhad 19.000 plus poplatky), nízké provozní náklady. 

Zálohy na služby SVJ činí 3.179 CZK (již zahrnující příspěvek na dlouhodobou zálohu/fond oprav 1.305 CZK)
+ vlastní spotřeba elektrické energie (nyní záloha 800 CZK)
a plynu (nyní záloha 1.060 CZK) 

Praha 10 - Dubeč je velmi příjemné místo k bydlení, které kombinuje vesnický ráz ale s kompletní občanskou vybaveností Prahy.

Například základní škola nebo Tesco Express jsou dostupná pěšky nebo 1 zastávka autobusu. Hned za domem začíná krásný přírodní park Říčanka, s dětským hřištěm, vodními prvky. Zastávka autobusu přímo u domu, do centra se dostanete MHD nebo autem do 30 min, 5 min autem do OC Štěrboholy. 

PENB C

Parametry bytu

Cena
6 900 000 Kč /za nemovitost Spočítat hypotéku
Aktualizováno
1. 3. 2026
Adresa
Winklerova, Praha, Dubeč
ID
Dubeč
Stavba
Cihlová
Stav objektu
Novostavba
Patro
2.
Lokalita objektu
Klidná část obce
Vlastnictví
Osobní
Užitná plocha
44 m2
Třída energetické náročnosti
C - Úsporná
Doprava
Dálnice, Silnice, MHD, Autobus
Balkon
Parkování

Kontaktovat makléře

Realitní kancelář

love your estate

Stroupežnického 3191/17, Praha

Chystáte se prodat nemovitost?
Pomůžeme Vám!

Máte zájem o tento byt?

Tímto, v souladu s nařízením Evropského parlamentu a Rady (EU) 2016/679, v platném znění, prohlašuji, že mi je alespoň 16 let a uděluji tak svůj souhlas se zpracováním zadaných údajů (jméno, telefon, e-mail, ip adresa) společnosti B3 Technology, s.r.o., IČ: 07330600, se sídlem Novostavby 126/23, 435 11 Lom (správce dat), za účelem předání dotazu z tohoto formuláře Vámi vybranému inzerentovi a zpětného kontaktování mé osoby. Osobní údaje bude správce zpracovávat manuálně i automaticky přímo prostřednictvím svých zaměstnanců. Informace předané tímto formulářem budou uloženy v databázi správce maximálně po dobu 10 let. Odvolání souhlasu s uložením a zpracováním poskytnutých dat lze e-mailem na info@videobydleni.cz. V případě podezření na neoprávněné použití Vámi poskytnutých údajů máte právo předat podnět k šetření Úřadu pro ochranu osobních údajů. Více informací
Chystáte se prodat nemovitost?
Pomůžeme Vám!

Inzerát si prohlédlo 0 lidí

Prodejce

Šárka Horáková

Šárka Horáková

Hlídací pes

Chcete dostávat emailem podobné nabídky prodeje bytů 2+kk v Praze 10?

Podobné nemovitosti


Nevyhovuje Vám typ bytu? Podívejte se na jiné kategorie bytů.


Vybrané články z našeho blogu