Prodej rodinného domu, Sadská, Karla Viky, 138 m2 (ID: 4194210)

Karla Viky, Sadská

13 900 000 Kč /za nemovitost HYPOTÉKA od 62 125 Kč /za měsíc
Prémioví partneři v Sadské

Informace k domu

Prodej rodinného domu, 138 m², Sadská, ul. Karla Viky

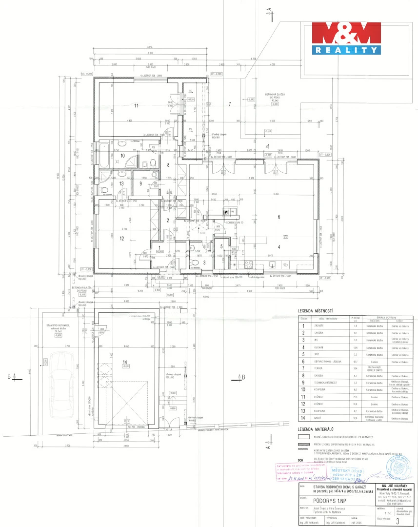
Nabízíme exkluzivní rodinný dům v klidné lokalitě Sadská, ideální pro ty, kteří hledají komfort a moderní technologie. Tento cihlový dům je téměř jako novostavba a nabízí dispozici 3(4)+KK s užitnou plochou 138 m². Nachází se na samostatném pozemku o rozloze 1148 m² na okraji obce. Dům je ve špičkovém stavu a nebyl téměř vůbec používán. Moderní vybavení zahrnuje tepelné čerpadlo země-voda, požární hlásiče, venkovní žaluzie, centrální vysavač a anténní rozvod do všech místností. Zahrada v TOP stavu je automaticky zavlažována vodou z kopané studny, která také zásobuje solární sprchu a zastřešený bazén vyhřívaný tepelným čerpadlem. Bezpečnost zajišťuje elektronický zabezpečovací systém a Wi-Fi. Vynikající dopravní spojení: Praha Černý Most je pouhých 30 minut jízdy. Jezero Sadská je vzdálené 1 km a rekreační oblast Kersko 6 km.

Parametry domu

Cena
13 900 000 Kč /za nemovitost Spočítat hypotéku
Aktualizováno
26. 3. 2026
Adresa
Karla Viky, Sadská
ID
927076
Stavba
Cihlová
Stav objektu
Novostavba
Vybaveno
Ano
Druh objektu
Samostatný
Lokalita objektu
Okraj obce
Vlastnictví
Osobní
Užitná plocha
138 m2
Plocha pozemku
1148 m2

Kontaktovat makléře

Realitní kancelář

Logo M&M reality

M&M reality

ulice Krakovská 583/9, Praha

Chystáte se prodat nemovitost?
Pomůžeme Vám!

Máte zájem o tento dům?

Tímto, v souladu s nařízením Evropského parlamentu a Rady (EU) 2016/679, v platném znění, prohlašuji, že mi je alespoň 16 let a uděluji tak svůj souhlas se zpracováním zadaných údajů (jméno, telefon, e-mail, ip adresa) společnosti B3 Technology, s.r.o., IČ: 07330600, se sídlem Novostavby 126/23, 435 11 Lom (správce dat), za účelem předání dotazu z tohoto formuláře Vámi vybranému inzerentovi a zpětného kontaktování mé osoby. Osobní údaje bude správce zpracovávat manuálně i automaticky přímo prostřednictvím svých zaměstnanců. Informace předané tímto formulářem budou uloženy v databázi správce maximálně po dobu 10 let. Odvolání souhlasu s uložením a zpracováním poskytnutých dat lze e-mailem na info@videobydleni.cz. V případě podezření na neoprávněné použití Vámi poskytnutých údajů máte právo předat podnět k šetření Úřadu pro ochranu osobních údajů. Více informací
Chystáte se prodat nemovitost?
Pomůžeme Vám!

Inzerát si prohlédlo 4 lidí

Prodejce

Tomáš Jantač

Tomáš Jantač

Hlídací pes

Chcete dostávat emailem podobné nabídky prodeje rodinných domů v Sadské?

Podobné nemovitosti


Nevyhovuje Vám typ domu? Podívejte se na jiné kategorie domů.


Vybrané články z našeho blogu