Soccer reality

Prodej rodinného domu, Kunice, Járy Cimrmana, 252 m2 (ID: 4194666)

Járy Cimrmana, Kunice

18 600 000 Kč /za nemovitost HYPOTÉKA od 83 131 Kč /za měsíc

(Neplatíte provizi. Nízké měsíční náklady - cca 300 Kč/1 osoba + el. energie cca 4.000 Kč/měsíc)

Prémioví partneři v Kunicích

Informace k domu

Nabízíme k prodeji rodinný dům, který je ideální volbou pro ty, kteří hledají kvalitní a poctivě postavené bydlení. Dům si stavěl majitel pro sebe a svoji rodinu. Díky tomu bylo při výstavbě prováděno vše s maximální péčí a důrazem na dlouhou životnost. Byly použity výhradně jen kvalitní stavební materiály a poctivé řemeslné zpracování. Dům má promyšlené detaily včetně komfortní dispozice navržené tak, aby měla rodina své zázemí a každý člen rodiny své pohodlí i soukromí.

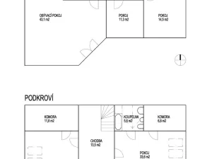
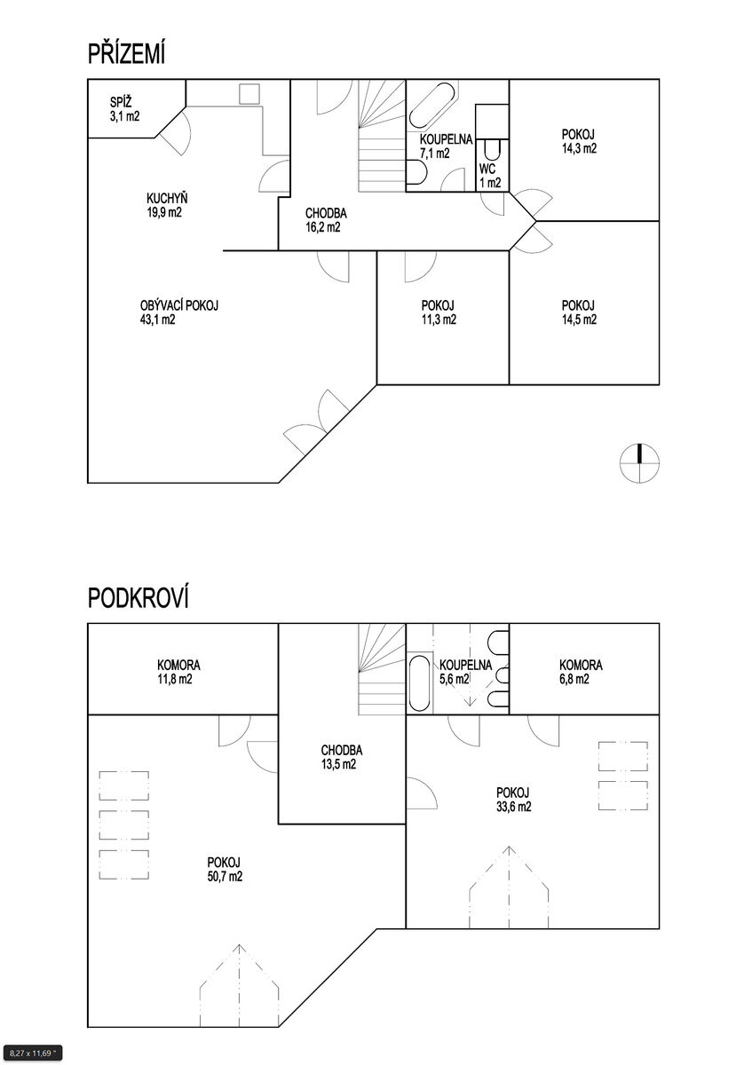
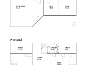
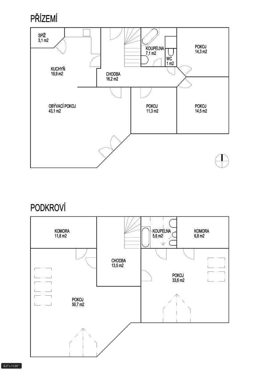
Prostorný dům stojí na velkorysém pozemku 1150 m2. Je samostatný, dvoupodlažní, o dispozici 6+kk, velikosti 252 m2 + terasa + garáž 33 m2. Nachází se v klidné části obce Kunice - Vidovice, okres Praha - Východ, v ulici Járy Cimrmana. Součástí pozemku je krásná, udržovaná zahrada o velikosti 955 m2. Orientace domu je na slunný západ - 5 pokojů, terasa je na jih, kuchyně, spíž a koupelny jsou na sever a 1 ložnice je na východ. V přízemí domu se nachází vstupní chodba, obývací pokoj s jídelnou, kuchyně, prostorná spíž, 3 neprůchozí ložnice, hlavní koupelna s umývadlem, rohovou vanou i sprchovým koutem a samostatné WC. V patře jsou 2 velké samostatné pokoje - jeden se vstupem do vlastní samostatné šatny a do vlastní koupelny (vana, umývadlo, WC, pisoár) a druhý prostorný pokoj se vstupem do samostatné šatny.

Dům je částečně zařízený nábytkem - jedná se převážně o úložné prostory, stoly a cca 3 postele. Kuchyňská linka zn. Sýkora je vybavena novou indukční varnou deskou, el. troubou, digestoří, myčkou a malou lednicí. V domě byly použity jen kvalitní a drahé materiály - dubové dřevěné podlahy, keramická dlažba, obklady v hlavní koupelně od firmy Villeroy & Boch, skříně, dveře, zárubně a schody jsou výhradně jen z masivu, kvalitní dřevěná eurookna TWW, funkční kachlová kamna v kuchyni z Kamnářství Jan Janoušek, nové osvětlení v obývacím pokoji a kuchyni, nejtišší tepelné čerpadlo na trhu Acond Pro R, centrální vysavač Electrolux, elektronický zabezpečovací systém Rokonet Orbit-Pro apod. Na pozemku je vlastní studna vhodná k zalévání zahrady a závlaha Hunter Pro - C. Kanalizace je obecní. Parkování je možné v prostorné garáži i na pozemku za bránou, která je kovaná, s el. pohony a na dálkové ovládání.

Dům se nachází ve velmi klidné části obce. Díky velkorysému pozemku a sousednímu pozemku, který není užíván a náleží stejnému majiteli, je zaručené maximální soukromí a klid. V okolí je krásná příroda - pro milovníky turistiky a cyklosportu ideální. Poblíž domu je možné se napojit na cyklotrasu s příznačným názvem Krajem Josefa Lady.
Obec Kunice - Vidovice se nachází 10 km od Říčan. Napojení na D1 je necelých 6 km od domu a do centra Prahy je to pouhých 20 min autem. Cca 3 min chůze je zastávka busu č. 461 s přímým spojením na 5 km vzdálené vlakové nádraží Strančice, odkud jezdí přímé spoje do několika částí Prahy až na samotné Hlavní nádraží (34 min).

Dům je ve výborném technickém stavu, je kompletně nově vymalován a připraven k okamžitému nastěhování bez nutnosti dalších investic.

Parametry domu

Cena
18 600 000 Kč /za nemovitost Spočítat hypotéku
Poznámka k ceně
Neplatíte provizi. Nízké měsíční náklady - cca 300 Kč/1 osoba + el. energie cca 4.000 Kč/měsíc
Aktualizováno
26. 3. 2026
Adresa
Járy Cimrmana, Kunice
ID
P018153
Stavba
Cihlová
Stav objektu
Velmi dobrý
Vybaveno
Částečně
Typ objektu
Patrový
Druh objektu
Samostatný
Užitná plocha
252 m2
Zastavěná plocha
195 m2
Podlahová plocha
285 m2
Plocha pozemku
1150 m2
Plocha zahrady
955 m2
Třída energetické náročnosti
C - Úsporná
Odpad
Veřejná kanalizace
Doprava
Dálnice, Autobus
Voda
Vodovod, Studna
Garáž
Převod do OV
Parkování

Kontaktovat makléře

Realitní kancelář

Logo KUZO Partners s.r.o.

KUZO Partners s.r.o.

Olbrachtova 599/8, Mladá Boleslav II

Chystáte se prodat nemovitost?
Pomůžeme Vám!

Máte zájem o tento dům?

Tímto, v souladu s nařízením Evropského parlamentu a Rady (EU) 2016/679, v platném znění, prohlašuji, že mi je alespoň 16 let a uděluji tak svůj souhlas se zpracováním zadaných údajů (jméno, telefon, e-mail, ip adresa) společnosti B3 Technology, s.r.o., IČ: 07330600, se sídlem Novostavby 126/23, 435 11 Lom (správce dat), za účelem předání dotazu z tohoto formuláře Vámi vybranému inzerentovi a zpětného kontaktování mé osoby. Osobní údaje bude správce zpracovávat manuálně i automaticky přímo prostřednictvím svých zaměstnanců. Informace předané tímto formulářem budou uloženy v databázi správce maximálně po dobu 10 let. Odvolání souhlasu s uložením a zpracováním poskytnutých dat lze e-mailem na info@videobydleni.cz. V případě podezření na neoprávněné použití Vámi poskytnutých údajů máte právo předat podnět k šetření Úřadu pro ochranu osobních údajů. Více informací
Chystáte se prodat nemovitost?
Pomůžeme Vám!

Inzerát si prohlédlo 3 lidí

Prodejce

Soňa Kutnohorská

Soňa Kutnohorská

Hlídací pes

Chcete dostávat emailem podobné nabídky prodeje rodinných domů v Kunicích (okr. Praha-východ)?

Podobné nemovitosti


Nevyhovuje Vám typ domu? Podívejte se na jiné kategorie domů.


Vybrané články z našeho blogu