Prodej obchodního prostoru, Čebín, 500 m2

Čebín

23 000 000 Kč /za nemovitost HYPOTÉKA od 102 796 Kč /za měsíc

(Cena za nemovitost)

Prémioví partneři v Čebíně

Informace k nemovitosti

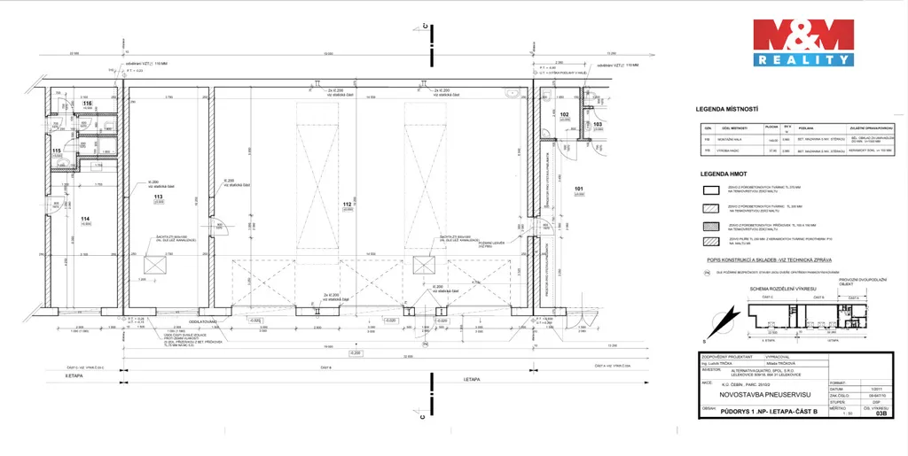
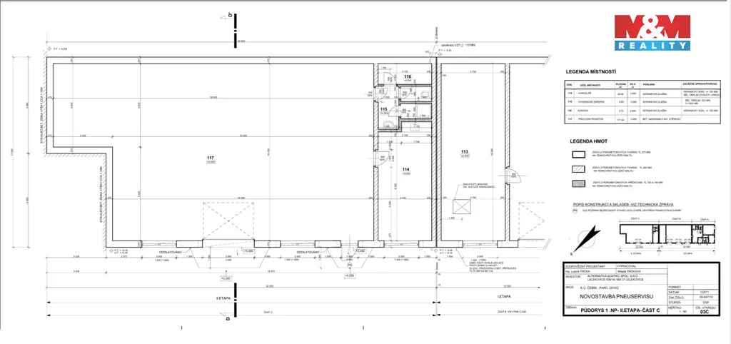
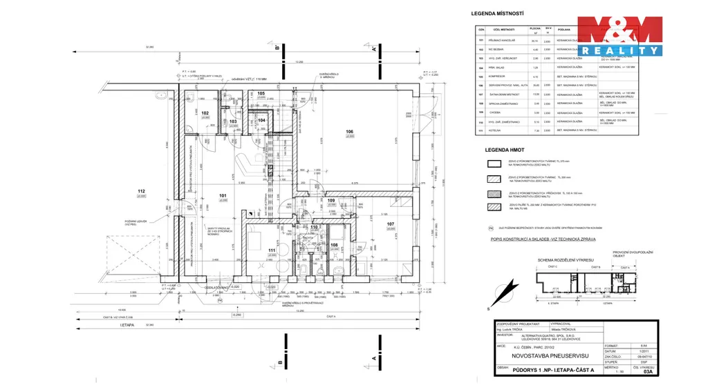
Komerční objekt v Čebíně

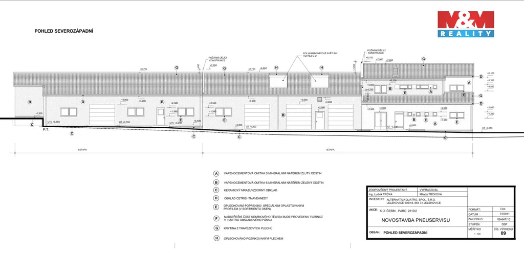
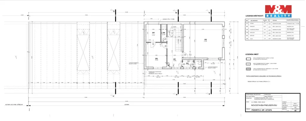
Nabízíme k prodeji atraktivní komerční objekt v obci Čebín, který ideálně kombinuje prostor pro podnikání i vlastní bydlení. Součástí nemovitosti je prostorný a světlý byt o dispozici 2+kk v horním patře, který poskytuje komfortní zázemí pro majitele nebo nabízí možnost dalšího pronájmu. V přízemí se nachází plně funkční a zavedený autoservis s dílnami, skladovými prostory, kanceláří pro kontakt se zákazníky a administrativu a také se zázemím pro zaměstnance. Velkou výhodou je, že objekt se prodává včetně kompletního vybavení autoservisu, což umožňuje okamžité pokračování v podnikání bez nutnosti dalších investic. Nemovitost je ve velmi dobrém technickém stavu a připravena k okamžitému provozu. Nachází se na strategickém místě s dobrou dopravní dostupností a výbornou viditelností, což je velkou výhodou pro podnikání. Ideální příležitost pro automechaniky hledající vlastní zázemí nebo pro investory, kteří hledají nemovitost s kombinací podnikání a bydlení.

Parametry nemovitosti

Cena
23 000 000 Kč /za nemovitost Spočítat hypotéku
Poznámka k ceně
Cena za nemovitost
Aktualizováno
14. 4. 2026
Adresa
Čebín
ID
934227
Stavba
Cihlová
Stav objektu
Dobrý
Vybaveno
Ne
Lokalita objektu
Okraj obce
Vlastnictví
Osobní
Užitná plocha
500 m2
Plocha pozemku
649 m2

Kontaktovat makléře

Realitní kancelář

Logo M&M reality

M&M reality

ulice Krakovská 583/9, Praha

Chystáte se prodat nemovitost?
Pomůžeme Vám!

Máte zájem o tuto nemovistost?

Tímto, v souladu s nařízením Evropského parlamentu a Rady (EU) 2016/679, v platném znění, prohlašuji, že mi je alespoň 16 let a uděluji tak svůj souhlas se zpracováním zadaných údajů (jméno, telefon, e-mail, ip adresa) společnosti B3 Technology, s.r.o., IČ: 07330600, se sídlem Novostavby 126/23, 435 11 Lom (správce dat), za účelem předání dotazu z tohoto formuláře Vámi vybranému inzerentovi a zpětného kontaktování mé osoby. Osobní údaje bude správce zpracovávat manuálně i automaticky přímo prostřednictvím svých zaměstnanců. Informace předané tímto formulářem budou uloženy v databázi správce maximálně po dobu 10 let. Odvolání souhlasu s uložením a zpracováním poskytnutých dat lze e-mailem na info@videobydleni.cz. V případě podezření na neoprávněné použití Vámi poskytnutých údajů máte právo předat podnět k šetření Úřadu pro ochranu osobních údajů. Více informací
Chystáte se prodat nemovitost?
Pomůžeme Vám!

Inzerát si prohlédlo 7 lidí

Prodejce

Lukáš Závodník

Lukáš Závodník

Hlídací pes

Chcete dostávat emailem podobné nabídky prodeje obchodních prostor v Čebíně?

Podobné nemovitosti


Nevyhovuje Vám typ nemovitosti? Podívejte se na jiné kategorie komerčních.


Vybrané články z našeho blogu