Prodej výrobních prostor, Bohumín, Šunychelská, 1082 m2 (ID: 4195422)

Šunychelská, Bohumín, Šunychl

15 900 000 Kč /za nemovitost HYPOTÉKA od 71 063 Kč /za měsíc

(včetně poplatků, včetně provize, včetně právního servisu)

Prémioví partneři v Bohumíně

Informace k nemovitosti

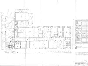
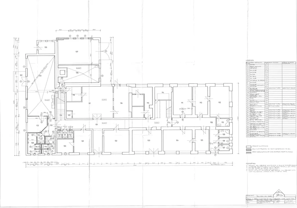
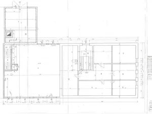
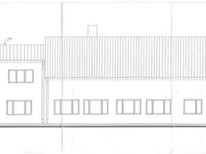
Exkluzivní prodej komerčního objektu s rozlehlým pozemkem v atraktivní podnikatelské lokalitě na ulici Šunychelská v Bohumíně v okrese Karviná. Nemovitost se nachází přímo u sjezdu z dálnice D1 (exit 372), pouhé 4 km od hranic s Polskem a 10 km od Ostravy. Strategická poloha zajišťuje vynikající dostupnost v rámci ČR i Polska, což ji činí ideální volbou pro podnikatele a firmy hledající prostory pro další rozvoj. Objekt byl původně postaven v letech 1979–1980 jako administrativní budova pro vedení Státního Statku Bohumín. V roce 2000 prošel rozsáhlou rekonstrukcí, která zahrnovala přeměnu části přízemí a patra na moderní GASTROCENTRUM s potravinářským provozem, výrobními prostory, prodejnou a společenským sálem. Sál je i dnes využíván pro plesy, oslavy a jiné společenské akce. Budovy nabízejí široké možnosti využití – lze je rekonstruovat a přizpůsobit specifickým potřebám podnikání nebo zcela přestavět a vybudovat moderní provoz odpovídající současným standardům podnikání. Celková plocha pozemku činí 4 376 m², z čehož zastavěná plocha je 925 m² a volná plocha 3 451 m². Rovinatý pozemek spadá do zóny V-3, která je určena pro lehkou výrobu a skladování. Maximální koeficient zastavění je 0,6 a výšková hladina budov může dosahovat až 12 m nad terénem. Budovy nabízejí užitnou plochu 604 m² v přízemí a 479 m² v patře. Technické zázemí zahrnuje hlavní jistič s kapacitou 160 A, kotelnu o výkonu 2x50 kW a dostatečné zpevněné plochy pro parkování nebo manipulaci. Tato nemovitost představuje jedinečnou příležitost pro firmy, které chtějí využít její výborné dopravní napojení, flexibilitu a potenciál pro rozvoj podnikání. Perfektní pro polské firmy expandující do ČR nebo firmy hledající prostor pro výrobu, skladování či další podnikatelské aktivity. Neváhejte a domluvte si prohlídku ještě dnes – tato nabídka je připravena pro vaše podnikatelské plány.

Parametry nemovitosti

Cena
15 900 000 Kč /za nemovitost Spočítat hypotéku
Poznámka k ceně
včetně poplatků, včetně provize, včetně právního servisu
Aktualizováno
2. 3. 2026
Adresa
Šunychelská, Bohumín, Šunychl
ID
00053
Stavba
Cihlová
Stav objektu
Dobrý
Vybaveno
Ne
Lokalita objektu
Okraj obce
Užitná plocha
1082 m2
Zastavěná plocha
925 m2
Třída energetické náročnosti
G - Mimořádně nehospodárná
Elektřina
230V, 400V
Plyn
Plynovod
Odpad
Septik
Komunikace
Asfaltová
Telekomunikace
Internet
Doprava
Vlak, Dálnice, Silnice, MHD, Autobus
Voda
Místní zdroj vody
Zdroj topení
Plynový kotel
Zdroj teplé vody
Plynový kotel
Garáž
Výtah
Bezbarierový přístup
Parkování

Kontaktovat makléře

Máte zájem o tuto nemovistost?

Tímto, v souladu s nařízením Evropského parlamentu a Rady (EU) 2016/679, v platném znění, prohlašuji, že mi je alespoň 16 let a uděluji tak svůj souhlas se zpracováním zadaných údajů (jméno, telefon, e-mail, ip adresa) společnosti B3 Technology, s.r.o., IČ: 07330600, se sídlem Novostavby 126/23, 435 11 Lom (správce dat), za účelem předání dotazu z tohoto formuláře Vámi vybranému inzerentovi a zpětného kontaktování mé osoby. Osobní údaje bude správce zpracovávat manuálně i automaticky přímo prostřednictvím svých zaměstnanců. Informace předané tímto formulářem budou uloženy v databázi správce maximálně po dobu 10 let. Odvolání souhlasu s uložením a zpracováním poskytnutých dat lze e-mailem na info@videobydleni.cz. V případě podezření na neoprávněné použití Vámi poskytnutých údajů máte právo předat podnět k šetření Úřadu pro ochranu osobních údajů. Více informací
Chystáte se prodat nemovitost?
Pomůžeme Vám!

Inzerát si prohlédlo 0 lidí

Prodejce

Pavel Kozar

Pavel Kozar

Hlídací pes

Chcete dostávat emailem podobné nabídky prodeje výrobních prostor v Bohumíně?

Podobné nemovitosti


Nevyhovuje Vám typ nemovitosti? Podívejte se na jiné kategorie komerčních.


Vybrané články z našeho blogu