Pronájem obchodního prostoru, Praha - Libeň, Zenklova, 123 m2

Zenklova, Praha, Libeň

35 000 Kč /za měsíc Získejte výhodnou HYPOTÉKU

(+ poplatky 6.000,- Kč + elektrika )

Prémioví partneři v Praze 8

Stěhovací služby

Výkup a prodej starého nábytku

Informace k nemovitosti

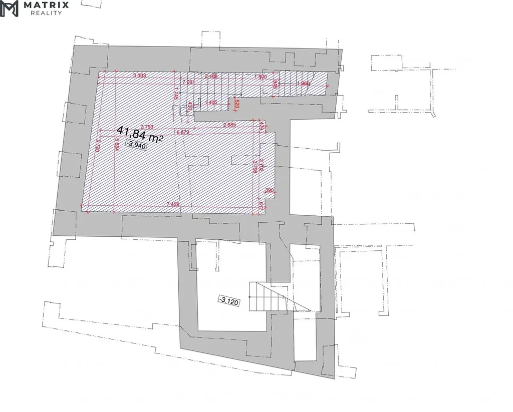
Zprostředkujeme Vám pronájem hezkého obchodního prostoru na frekventované ulice Zenklova, u tramvajové zastávky. Vstup přímo z ulice, výloha, do nabídky v prodejně prosklené skříňky. Obchodní prostor o velikosti 123m2, dispozičně řešený - prodejna, kuchyňka, WC a sprcha. V suterénu sklad o velikosti 42m2. Obchodní prostor je jednu zastávku tramvají od metra Palmovka. Prostor je například vhodný na prodejnu se skladen, internový obchod s výdejnou, kosmetický salón, květinářství. K využití ihned.

Parametry nemovitosti

Cena
35 000 Kč /za měsíc
Poznámka k ceně
+ poplatky 6.000,- Kč + elektrika
Aktualizováno
3. 3. 2026
Adresa
Zenklova, Praha, Libeň
ID
264
Stavba
Cihlová
Stav objektu
Velmi dobrý
Užitná plocha
123 m2
Třída energetické náročnosti
D - Méně úsporná
Plyn
Plynovod
Odpad
Veřejná kanalizace
Topení
Ústřední plynové
Telekomunikace
Internet
Doprava
MHD
Voda
Vodovod
Bezbarierový přístup

Kontaktovat makléře

Realitní kancelář

Matrix Reality, a.s.

Václavské náměstí 846/1, Praha

Chystáte se prodat nemovitost?
Pomůžeme Vám!

Máte zájem o tuto nemovistost?

Tímto, v souladu s nařízením Evropského parlamentu a Rady (EU) 2016/679, v platném znění, prohlašuji, že mi je alespoň 16 let a uděluji tak svůj souhlas se zpracováním zadaných údajů (jméno, telefon, e-mail, ip adresa) společnosti B3 Technology, s.r.o., IČ: 07330600, se sídlem Novostavby 126/23, 435 11 Lom (správce dat), za účelem předání dotazu z tohoto formuláře Vámi vybranému inzerentovi a zpětného kontaktování mé osoby. Osobní údaje bude správce zpracovávat manuálně i automaticky přímo prostřednictvím svých zaměstnanců. Informace předané tímto formulářem budou uloženy v databázi správce maximálně po dobu 10 let. Odvolání souhlasu s uložením a zpracováním poskytnutých dat lze e-mailem na info@videobydleni.cz. V případě podezření na neoprávněné použití Vámi poskytnutých údajů máte právo předat podnět k šetření Úřadu pro ochranu osobních údajů. Více informací
Chystáte se prodat nemovitost?
Pomůžeme Vám!

Inzerát si prohlédlo 0 lidí

Prodejce

Dagmar  Damková

Dagmar Damková

Hlídací pes

Chcete dostávat emailem podobné nabídky pronájmu obchodních prostor v Praze 8?

Podobné nemovitosti


Nevyhovuje Vám typ nemovitosti? Podívejte se na jiné kategorie komerčních.


Vybrané články z našeho blogu