Pronájem bytu 1+1, Praha - Kobylisy, Bořanovická, 32 m2

Bořanovická, Praha, Kobylisy

15 500 Kč /za měsíc Získejte výhodnou HYPOTÉKU
Prémioví partneři v Praze 8

Stěhovací služby

Výkup a prodej starého nábytku

Informace k bytu

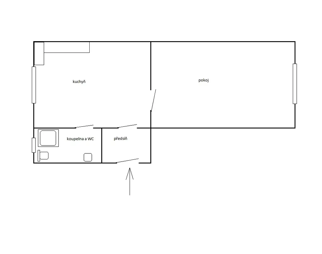
Nabízíme k pronájmu pěkný byt 1+1 v prvním patře cihlového domu v ulici Bořanovická, cca 5 minut chůze od metra Kobylisy. V bytě jsou v pokoji a kuchyni plovoucí podlahy, v koupelně je dlažba, kuchyň má okno uzavřené do zahrady, kterou je možno využívat, pokoj má okno do klidné ulice, koupelna je se sprchovým koutem. Topení a ohřev vody je zajištěn vlastním plynovým kotlem, zařízený je kuchyňskou linkou se sporákem a pračkou, v případě zájmu je po domluvě možno přenechat další nábytek. Byt bude nově vymalován. Výborná lokalita, v okolí je veškerá občanská vybavenost.

Parametry bytu

Cena
15 500 Kč /za měsíc
Náklady na bydlení
Služby 1300 Kč/osoba, el. 1500 Kč/měsíc, plyn cca 1000 Kč/měsíc
Aktualizováno
18. 4. 2026
Adresa
Bořanovická, Praha, Kobylisy
Stavba
Cihlová
Stav objektu
Dobrý
Patro
1.
Vlastnictví
Osobní
Užitná plocha
32 m2

Kontaktovat makléře

Realitní kancelář

PROFI-TEN

Vodičkova 682/20, Praha

Chystáte se prodat nemovitost?
Pomůžeme Vám!

Máte zájem o tento byt?

Tímto, v souladu s nařízením Evropského parlamentu a Rady (EU) 2016/679, v platném znění, prohlašuji, že mi je alespoň 16 let a uděluji tak svůj souhlas se zpracováním zadaných údajů (jméno, telefon, e-mail, ip adresa) společnosti B3 Technology, s.r.o., IČ: 07330600, se sídlem Novostavby 126/23, 435 11 Lom (správce dat), za účelem předání dotazu z tohoto formuláře Vámi vybranému inzerentovi a zpětného kontaktování mé osoby. Osobní údaje bude správce zpracovávat manuálně i automaticky přímo prostřednictvím svých zaměstnanců. Informace předané tímto formulářem budou uloženy v databázi správce maximálně po dobu 10 let. Odvolání souhlasu s uložením a zpracováním poskytnutých dat lze e-mailem na info@videobydleni.cz. V případě podezření na neoprávněné použití Vámi poskytnutých údajů máte právo předat podnět k šetření Úřadu pro ochranu osobních údajů. Více informací
Chystáte se prodat nemovitost?
Pomůžeme Vám!

Inzerát si prohlédlo 10 lidí

Prodejce

František Cakl

František Cakl

Hlídací pes

Chcete dostávat emailem podobné nabídky pronájmu bytů 1+1 v Praze 8?

Podobné nemovitosti


Nevyhovuje Vám typ bytu? Podívejte se na jiné kategorie bytů.


Vybrané články z našeho blogu