Pronájem bytu 2+1, Brno, Nejedlého, 50 m2

Nejedlého, Brno, Lesná

16 500 Kč /za měsíc Získejte výhodnou HYPOTÉKU

(+ Inkaso ve výši 4 500,-Kč měs. /2os., zálohově. Vyúčtování je dle skutečné spotřeby.)

Prémioví partneři v Brně

Informace k bytu

Nabízíme k pronájmu velmi pěkný byt 2+1 po částečné rekonstrukci, s šatnou, balkonem a sklepem.
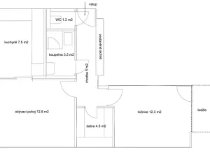
Byt je situovaný v 1. NP/4 bytového domu. Celková obytná plocha činí cca 50 m² + lodžie 3 m² + sklep 2 m². Byt je částečně zařízený a bude připravený k nastěhování k 1. dubnu (po dohodě i dříve).
Dispozice a vybavení:
Koupelna se sprchovým koutem a pračkou, samostatné WC. Ve vstupní chodbě je prostorná vestavná skříň. Kuchyň je vybavena linkou se spotřebiči (lednice s mrazákem, mikrovlnná trouba, sporák), jídelním stolem a židlemi. Obývací pokoj disponuje pohovkou, psacím stolem, skříňkou a klimatizací. Součástí bytu je také praktická šatna s policovým a závěsným systémem.

Orientační výměry místností:
• obývací pokoj 12,8 m²
• ložnice 12,3 m²
• kuchyně 7,5 m²
• chodba 5 m²
• šatna 4,5 m²
• koupelna 3,2 m²
• WC 1,2 m²

Byt je vhodný maximálně pro 3 osoby. Majitel požaduje vratnou kauci. Z důvodu dočasné nedostupnosti PENB je uvedena energetická třída G – po dodání bude aktualizováno.
Ideální volba pro pracující pár či jednotlivce, kteří hledají klidné bydlení v přírodě s výbornou dostupností do centra města.

Parametry bytu

Cena
16 500 Kč /za měsíc
Poznámka k ceně
+ Inkaso ve výši 4 500,-Kč měs. /2os., zálohově. Vyúčtování je dle skutečné spotřeby.
Náklady na bydlení
4500
Aktualizováno
4. 3. 2026
Adresa
Nejedlého, Brno, Lesná
Stavba
Panelová
Stav objektu
Velmi dobrý
Patro
1. z 4
Vybaveno
Částečně
Lokalita objektu
Klidná část obce
Vlastnictví
Osobní
Užitná plocha
50 m2
Podlahová plocha
55 m2
Elektřina
230V
Odpad
Veřejná kanalizace
Komunikace
Betonová
Doprava
MHD
Voda
Vodovod
Topné těleso
Radiátory
Zdroj topení
Ústřední dálkové
Zdroj teplé vody
Centrální dálkový ohřev
Balkon
Sklep
Výtah
Bezbarierový přístup

Kontaktovat makléře

Máte zájem o tento byt?

Tímto, v souladu s nařízením Evropského parlamentu a Rady (EU) 2016/679, v platném znění, prohlašuji, že mi je alespoň 16 let a uděluji tak svůj souhlas se zpracováním zadaných údajů (jméno, telefon, e-mail, ip adresa) společnosti B3 Technology, s.r.o., IČ: 07330600, se sídlem Novostavby 126/23, 435 11 Lom (správce dat), za účelem předání dotazu z tohoto formuláře Vámi vybranému inzerentovi a zpětného kontaktování mé osoby. Osobní údaje bude správce zpracovávat manuálně i automaticky přímo prostřednictvím svých zaměstnanců. Informace předané tímto formulářem budou uloženy v databázi správce maximálně po dobu 10 let. Odvolání souhlasu s uložením a zpracováním poskytnutých dat lze e-mailem na info@videobydleni.cz. V případě podezření na neoprávněné použití Vámi poskytnutých údajů máte právo předat podnět k šetření Úřadu pro ochranu osobních údajů. Více informací
Chystáte se prodat nemovitost?
Pomůžeme Vám!

Inzerát si prohlédlo 1 lidí

Prodejce

Jana Holcner Makešová

Jana Holcner Makešová

Hlídací pes

Chcete dostávat emailem podobné nabídky pronájmu bytů 2+1 v Brně?

Podobné nemovitosti


Nevyhovuje Vám typ bytu? Podívejte se na jiné kategorie bytů.


Vybrané články z našeho blogu