Pronájem kanceláře, Praha - Smíchov, Nádražní, 98 m2 (ID: 4197520)

Nádražní, Praha 5

38 875 Kč /za měsíc Získejte výhodnou HYPOTÉKU

(+ služby 20 444 Kč/měs. + DPH)

Prémioví partneři v Praze 5

Stěhovací služby

Výkup a prodej starého nábytku

Informace k nemovitosti

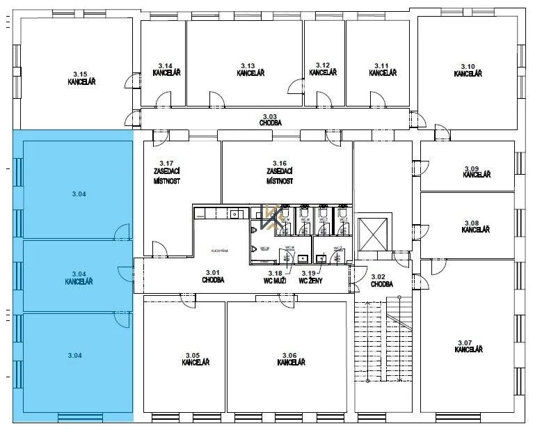
Neplatíte provizi ! Nabízíme k pronájmu kancelář o výměře 98m2 v 2. patře administrativní budovy Business Centrum Smíchov v ul. Nádražní, Praha 5 Smíchov. V březnu 2024 byla dokončena zdařilá rekonstrukce interierů (podhledy, světla, koberce, dlažba, kuchyňky vč. spotřebičů, toalety, dveře, vstupní recepce). Nájemcům je k dispozici centrální recepce s provozem Po Pá 7:00 19:00, neomezený přístup 24/7, security, kolárna, sprcha, střešní terasa 90m2 s výhledem na řeku, sdílená zasedací místnost, klimatizace, otevíratelná okna, výtah.

Možnost parkování přímo u budovy (3 500 Kč/měs.)

Pouze pár kroků od stanice metra (B) Smíchovské nádražní + Tram + Bus + Vlak.

Zdarma pro Vás připravíme nabídku kanceláří z více jak 300 budov po celé Praze.

Parametry nemovitosti

Cena
38 875 Kč /za měsíc
Poznámka k ceně
+ služby 20 444 Kč/měs. + DPH
Aktualizováno
9. 3. 2026
Adresa
Nádražní, Praha 5
ID
975644
Stavba
Smíšená
Stav objektu
Velmi dobrý
Patro
3. z 4
Typ objektu
Patrový
Vlastnictví
Osobní
Užitná plocha
98 m2
Plocha nebytových prostor
98 m2
Třída energetické náročnosti
D - Méně úsporná
Elektřina
230V
Topení
Jiné
Doprava
Vlak, Silnice, MHD
Výtah
Parkování

Kontaktovat makléře

Realitní kancelář

Logo FF Reality 2014, s.r.o.

FF Reality 2014, s.r.o.

Pernerova 697/35, Praha, Karlín

Chystáte se prodat nemovitost?
Pomůžeme Vám!

Máte zájem o tuto nemovistost?

Tímto, v souladu s nařízením Evropského parlamentu a Rady (EU) 2016/679, v platném znění, prohlašuji, že mi je alespoň 16 let a uděluji tak svůj souhlas se zpracováním zadaných údajů (jméno, telefon, e-mail, ip adresa) společnosti B3 Technology, s.r.o., IČ: 07330600, se sídlem Novostavby 126/23, 435 11 Lom (správce dat), za účelem předání dotazu z tohoto formuláře Vámi vybranému inzerentovi a zpětného kontaktování mé osoby. Osobní údaje bude správce zpracovávat manuálně i automaticky přímo prostřednictvím svých zaměstnanců. Informace předané tímto formulářem budou uloženy v databázi správce maximálně po dobu 10 let. Odvolání souhlasu s uložením a zpracováním poskytnutých dat lze e-mailem na info@videobydleni.cz. V případě podezření na neoprávněné použití Vámi poskytnutých údajů máte právo předat podnět k šetření Úřadu pro ochranu osobních údajů. Více informací
Chystáte se prodat nemovitost?
Pomůžeme Vám!

Inzerát si prohlédlo 12 lidí

Prodejce

Martin Vacek

Martin Vacek

Hlídací pes

Chcete dostávat emailem podobné nabídky pronájmu kanceláří v Praze 5?

Podobné nemovitosti


Nevyhovuje Vám typ nemovitosti? Podívejte se na jiné kategorie komerčních.


Vybrané články z našeho blogu