Pronájem bytu 3+1, Praha - Kamýk, Pšenčíkova, 68 m2

Pšenčíkova, Praha, Kamýk

23 600 Kč /za měsíc Získejte výhodnou HYPOTÉKU

(+ poplatky + provize RK)

Prémioví partneři v Praze 4

Stěhovací služby

Výkup a prodej starého nábytku

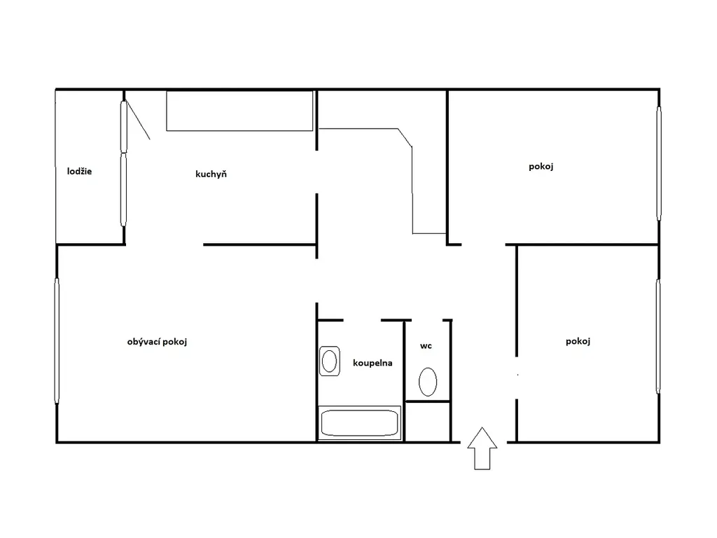
Informace k bytu

Nabízíme k dlouhodobému pronájmu byt 3+1 v 10. patře panelového domu s výtahem. Byt je po kompletní rekonstrukci – zděné jádro, nová kuchyňská linka se spotřebiči (plynový sporák, el. trouba, digestoř, myčka, lednice s mrazákem), plastová okna osázená venkovními roletami. Koupelna s vanou, toaleta zvlášť. Byt je částečně zařízen, k dispozici pračka i lednice. V chodbě jsou vestavěné skříně. Součástí bytu je lodžie a sklípek. Dům je zateplen a disponuje solárními panely (vlastní levnější elektřina). Nachází se v klidné lokalitě pár metrů od autobusové zastávky, 11 min. autobusem na stanici metra Kačerov. V okolí veškerá občanská vybavenost - školka, škola, obchody. Pře domem je parkoviště bez omezení parkování.

Parametry bytu

Cena
23 600 Kč /za měsíc
Poznámka k ceně
+ poplatky + provize RK
Aktualizováno
4. 3. 2026
Adresa
Pšenčíkova, Praha, Kamýk
Stavba
Panelová
Stav objektu
Po rekonstrukci
Patro
11.
Vybaveno
Částečně
Lokalita objektu
Sídliště
Vlastnictví
Osobní
Užitná plocha
68 m2
Zdroj topení
Ústřední dálkové
Sklep
Lodžie
Výtah
Bezbarierový přístup

Kontaktovat makléře

Realitní kancelář

ALARES Reality

Radlická 2000/3, Praha, Smíchov

Chystáte se prodat nemovitost?
Pomůžeme Vám!

Máte zájem o tento byt?

Tímto, v souladu s nařízením Evropského parlamentu a Rady (EU) 2016/679, v platném znění, prohlašuji, že mi je alespoň 16 let a uděluji tak svůj souhlas se zpracováním zadaných údajů (jméno, telefon, e-mail, ip adresa) společnosti B3 Technology, s.r.o., IČ: 07330600, se sídlem Novostavby 126/23, 435 11 Lom (správce dat), za účelem předání dotazu z tohoto formuláře Vámi vybranému inzerentovi a zpětného kontaktování mé osoby. Osobní údaje bude správce zpracovávat manuálně i automaticky přímo prostřednictvím svých zaměstnanců. Informace předané tímto formulářem budou uloženy v databázi správce maximálně po dobu 10 let. Odvolání souhlasu s uložením a zpracováním poskytnutých dat lze e-mailem na info@videobydleni.cz. V případě podezření na neoprávněné použití Vámi poskytnutých údajů máte právo předat podnět k šetření Úřadu pro ochranu osobních údajů. Více informací
Chystáte se prodat nemovitost?
Pomůžeme Vám!

Inzerát si prohlédlo 0 lidí

Prodejce

Jiří Černý

Jiří Černý

Hlídací pes

Chcete dostávat emailem podobné nabídky pronájmu bytů 3+1 v Praze 4?

Podobné nemovitosti


Nevyhovuje Vám typ bytu? Podívejte se na jiné kategorie bytů.


Vybrané články z našeho blogu